Your email has been sent.
00 Industry Center - Prime Industrial Assemblage – Industry Center 3.98 Acres of Industrial Land Offered at £1,264,667 in Saint Augustine, FL 32084



INVESTMENT HIGHLIGHTS
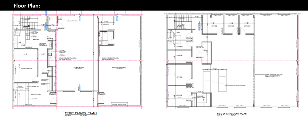
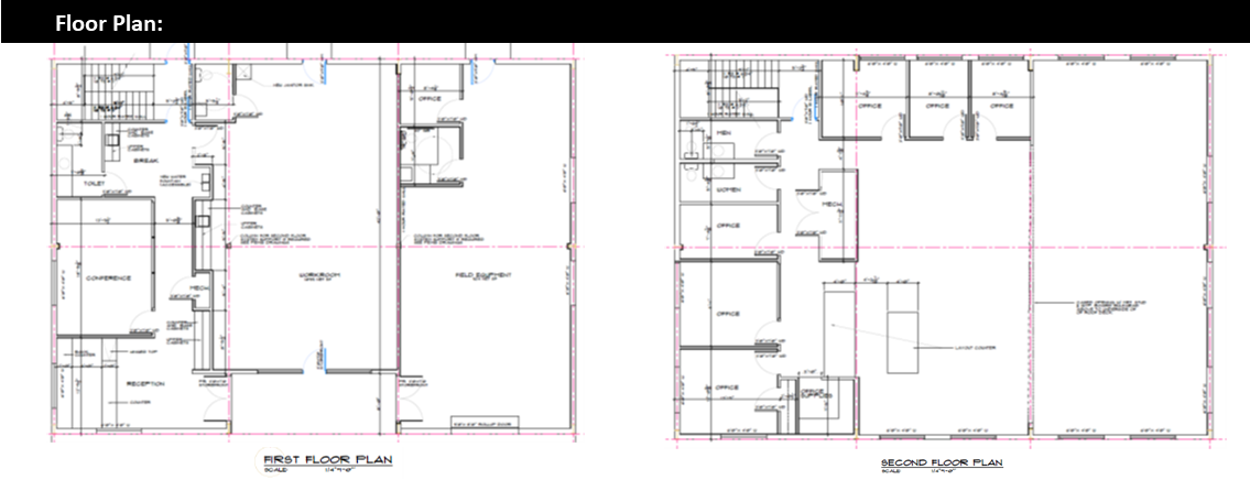
- -Engineering and Approved Plans
- - Two ingress/egress points on Industry Center Rd for enhanced public and fire-service access
- - Utilities available along Industry Center Rd
- - Paved road with direct access to FL State Road 16
- - New traffic signals pending at Industry Center Rd & Stratton Rd / SR-16
- - Plans, surveys, and concept layouts available
EXECUTIVE SUMMARY
Now Available – 3.98± Acres | Up to 49,029± SF Proposed Buildout
Positioned at Industry Center Road and Comet Drive with access via Star Gate Drive, this rare assemblage offers an exceptional opportunity for owner-users, developers, and investors in one of St. Johns County’s most active growth corridors. Featuring Industrial Warehouse (IW) and Open Rural (OR) zoning, the site supports a wide range of commercial and light industrial uses, including:
• Light Manufacturing & Distribution
• Warehouse / Business & Commerce Park
• Outside or Contractor Storage
• Boat & RV Storage
• Veterinary / Boarding Facilities
• Trade & Technical Schools, and more
Located just off SR-16, with new traffic signals pending at Industry Center Road and Stratton Road, the property benefits from excellent access and visibility. Utilities are available along Industry Center Road, and the assembled property includes two ingress/egress points on Industry Center Road, allowing for improved access for the public and fire services.
Plans, surveys, and concept layouts are available upon request. This site represents a rare infill opportunity to secure flexible industrial land in the St. Augustine market — ideal for owner-occupants, build-to-suit projects, or long-term hold.
Explore the opportunity: www.resgcommercial.com/featured
PROPERTY FACTS
1 PLOT AVAILABLE
Plot
| Price | £1,264,667 | Total Plot Size | 3.98 ac |
| Price Per ac | £317,755.49 |
| Price | £1,264,667 |
| Price Per ac | £317,755.49 |
| Total Plot Size | 3.98 ac |
Prime 3.98± Acre Industrial Assemblage on Industry Center Road — Utilities, Dual Access & Flexible Zoning in St. Johns County.
DESCRIPTION
Prime Industrial Assemblage – Industry Center Road | St. Augustine, FL Now Available – 3.98± Acres | Up to 49,029± SF Proposed Buildout Positioned at Industry Center Road and Comet Drive with access via Star Gate Drive, this rare assemblage offers an exceptional opportunity for owner-users, developers, and investors in one of St. Johns County’s most active growth corridors. Featuring Industrial Warehouse (IW) and Open Rural (OR) zoning, the site supports a wide range of commercial and light industrial uses, including: • Light Manufacturing & Distribution • Warehouse / Business & Commerce Park • Outside or Contractor Storage • Boat & RV Storage • Veterinary / Boarding Facilities • Trade & Technical Schools, and more Located just off SR-16, with new traffic signals pending at Industry Center Road and Stratton Road, the property benefits from excellent access and visibility. Utilities are available along Industry Center Road, and the assembled property includes two ingress/egress points on Industry Center Road, allowing for improved access for the public and fire services. Plans, surveys, and concept layouts are available upon request. This site represents a rare infill opportunity to secure flexible industrial land in the St. Augustine market — ideal for owner-occupants, build-to-suit projects, or long-term hold. Explore the opportunity: www.resgcommercial.com/featured
PROPERTY TAXES
| Parcel Number | 088280-0010 | Improvements Assessment | £10,352 |
| Land Assessment | £146,556 | Total Assessment | £156,908 |
PROPERTY TAXES
Presented by
00 Industry Center - Prime Industrial Assemblage – Industry Center
Hmm, there seems to have been an error sending your message. Please try again.
Thanks! Your message was sent.
