Your email has been sent.
100 High St 1,065 sq ft of Retail Space Available in Canvey Island SS8 7SQ

HIGHLIGHTS
- Prominent corner position
- Neighboured by restaurants, tattoo studio and convenience stores
- Large shop front
SPACE AVAILABILITY (1)
Display Rent as
- SPACE
- SIZE
- TERM
- RATE
- TYPE
| Space | Size | Term | Rate | Type | ||
| Ground | 1,065 sq ft | Negotiable | £15.49 /sq ft pa £1.29 /sq ft pcm £16,500 pa £1,375 pcm | Fully Repairing & Insuring |
Ground
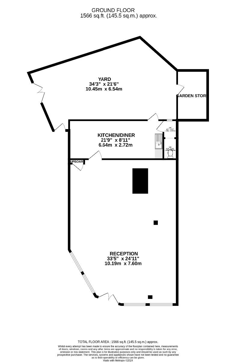
This retail space is complete with a kitchenette and WC facilities. The property further benefits from a yard to the rear with gated access for a vehicle and pedestrians alike.
- Use Class: E
- Partially Fit-Out as Standard Retail Unit
- Located in-line with other retail
- Exclusive WC facilities
- Yard
- Previously used as office
- Recently refurbished
- External lock up with water and electricity
Service Types
The rent amount and service type that the tenant (lessee) will be responsible to pay to the landlord (lessor) throughout the lease term is negotiated prior to both parties signing a lease agreement. The service type will vary depending upon the services provided. Contact the listing agent for a full understanding of any associated costs or additional expenses for each service type.
1. Fully Repairing & Insuring: All obligations for repairing and insuring the property (or their share of the property) both internally and externally.
2. Internal Repairing Only: The tenant is responsible for internal repairs only. The landlord is responsible for structural and external repairs.
3. Internal Repairing & Insuring: The tenant is responsible for internal repairs and insurance for internal parts of the property only. The landlord is responsible for structural and external repairs.
4. Negotiable or TBD: This is used when the leasing contact does not provide the service type.
PROPERTY FACTS
| Total Space Available | 1,065 sq ft | Net Internal Area (NIA) | 1,065 sq ft |
| Property Type | Retail | Year Built | 1970 |
| Property Subtype | Shopfront Retail / Residential |
| Total Space Available | 1,065 sq ft |
| Property Type | Retail |
| Property Subtype | Shopfront Retail / Residential |
| Net Internal Area (NIA) | 1,065 sq ft |
| Year Built | 1970 |
ABOUT THE PROPERTY
This E Class space is highly visible and benefits from being located on Canvey Island's busy high street, near the town centre and on public transport routes.
- Signage
NEARBY MAJOR RETAILERS
Presented by
100 High St
Hmm, there seems to have been an error sending your message. Please try again.
Thanks! Your message was sent.


