Your email has been sent.
PARK HIGHLIGHTS
- Strategically located immediately off I-15 (Camino Del Norte and Carmel Mountain Road exits)
- Potential for roll-up doors and lab-ready configurations
- Suites feature polished concrete floors and exposed ceilings
- Eight-building campus designed for office, R&D, and biotech
PARK FACTS
| Total Space Available | 157,729 sq ft | Max. Contiguous | 51,200 sq ft |
| Min. Divisible | 3,300 sq ft | Park Type | Industrial Park |
| Total Space Available | 157,729 sq ft |
| Min. Divisible | 3,300 sq ft |
| Max. Contiguous | 51,200 sq ft |
| Park Type | Industrial Park |
ALL AVAILABLE SPACES(9)
Display Rent as
- SPACE
- SIZE
- TERM
- RATE
- USE
- CONDITION
- AVAILABLE
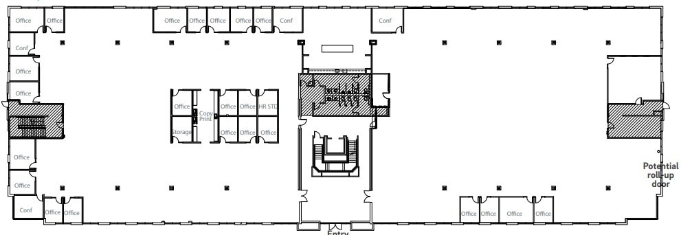
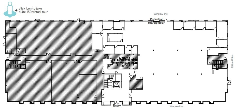
Prominent double-door entrance directly off lobby with 29 private offices, Conference room, Storage room, IT room, and Break area. Partial exposed ceiling with polished concrete and remainder of the space is 11’ drop ceilings. Potential to add loading.
- Lease rate does not include utilities, property expenses or building services
- Mostly Open Floor Plan Layout
- 1 Conference Room
- Secure Storage
- Fully Fit-Out as Standard Office
- 29 Private Offices
- Space is in Excellent Condition
4 Private offices, 2 Meeting rooms, IT room, Break area, and open cube space. 11’ ceilings, double-door glass entrance and ample natural light.
- Lease rate does not include utilities, property expenses or building services
- Open Floor Plan Layout
- 3 Conference Rooms
- Fully Fit-Out as Standard Office
- 4 Private Offices
| Space | Size | Term | Rate | Space Use | Condition | Available |
| 1st Floor, Ste 100 | 17,000-36,617 sq ft | Negotiable | £22.72 /sq ft pa £1.89 /sq ft pcm £831,811 pa £69,318 pcm | Office | Full Fit-Out | Now |
| 2nd Floor, Ste 250 | 8,441 sq ft | Negotiable | £22.72 /sq ft pa £1.89 /sq ft pcm £191,750 pa £15,979 pcm | Office | Full Fit-Out | Now |
15333 Avenue Of Science - 1st Floor - Ste 100
15333 Avenue Of Science - 2nd Floor - Ste 250
- SPACE
- SIZE
- TERM
- RATE
- USE
- CONDITION
- AVAILABLE
Coming Available. Reception, 9 Offices, Conference room, Large training room, 7 Huddle rooms, 2 Phone rooms, Kitchen/cafeteria, 3 Storage rooms, IT/IT storage, Copy center.
- Lease rate does not include utilities, property expenses or building services
- 9 Private Offices
- Can be combined with additional space(s) for up to 51,200 sq ft of adjacent space
- Partially Fit-Out as Standard Office
- 1 Conference Room
Coming Available. 30 Offices, 2 Conference rooms, 4 Huddle rooms, Break area, Production room, Storage room.
- Lease rate does not include utilities, property expenses or building services
- 30 Private Offices
- Can be combined with additional space(s) for up to 51,200 sq ft of adjacent space
- Partially Fit-Out as Standard Office
- 2 Conference Rooms
| Space | Size | Term | Rate | Space Use | Condition | Available |
| 1st Floor, Ste 100 | 25,600 sq ft | Negotiable | £22.72 /sq ft pa £1.89 /sq ft pcm £581,543 pa £48,462 pcm | Office | Partial Fit-Out | 30 Days |
| 2nd Floor, Ste 200 | 25,600 sq ft | Negotiable | £22.72 /sq ft pa £1.89 /sq ft pcm £581,543 pa £48,462 pcm | Office | Partial Fit-Out | 30 Days |
15445 Innovation Dr - 1st Floor - Ste 100
15445 Innovation Dr - 2nd Floor - Ste 200
- SPACE
- SIZE
- TERM
- RATE
- USE
- CONDITION
- AVAILABLE
Reception, 30 Offices, 2 Break areas, 4 Conference rooms, IT room, IT lab, Electric room, File room, 3 Phone booths, Copy room, Storage and Open area. Divisible down to 7,105 rsf.
- Lease rate does not include utilities, property expenses or building services
- 30 Private Offices
- Partially Fit-Out as Standard Office
- 4 Conference Rooms
Reception, 12 Offices, Break area, IT/Storage and Open area for ±30-40 Cubicles.
- Lease rate does not include utilities, property expenses or building services
- Mostly Open Floor Plan Layout
- 35 Workstations
- Reception Area
- Fully Fit-Out as Standard Office
- 12 Private Offices
- Can be combined with additional space(s) for up to 18,145 sq ft of adjacent space
Coming Available. 8 Offices, Huddle room.
- Lease rate does not include utilities, property expenses or building services
- 8 Private Offices
- Partially Fit-Out as Standard Office
- Can be combined with additional space(s) for up to 18,145 sq ft of adjacent space
Coming Available. 4 Offices, 2 Huddle rooms, Break/Copy room
- Lease rate does not include utilities, property expenses or building services
- 4 Private Offices
- Partially Fit-Out as Standard Office
- Can be combined with additional space(s) for up to 18,145 sq ft of adjacent space
| Space | Size | Term | Rate | Space Use | Condition | Available |
| 1st Floor, Ste 100 | 7,105-25,177 sq ft | Negotiable | £22.72 /sq ft pa £1.89 /sq ft pcm £571,934 pa £47,661 pcm | Office | Partial Fit-Out | 30 Days |
| 2nd Floor, Ste 200 | 11,130 sq ft | Negotiable | £22.72 /sq ft pa £1.89 /sq ft pcm £252,835 pa £21,070 pcm | Office | Full Fit-Out | Now |
| 2nd Floor, Ste 201 | 3,300 sq ft | Negotiable | £22.72 /sq ft pa £1.89 /sq ft pcm £74,965 pa £6,247 pcm | Office | Partial Fit-Out | 30 Days |
| 2nd Floor, Ste 202 | 3,715 sq ft | Negotiable | £22.72 /sq ft pa £1.89 /sq ft pcm £84,392 pa £7,033 pcm | Office | Partial Fit-Out | 30 Days |
15435 Innovation Dr - 1st Floor - Ste 100
15435 Innovation Dr - 2nd Floor - Ste 200
15435 Innovation Dr - 2nd Floor - Ste 201
15435 Innovation Dr - 2nd Floor - Ste 202
- SPACE
- SIZE
- TERM
- RATE
- USE
- CONDITION
- AVAILABLE
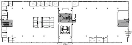
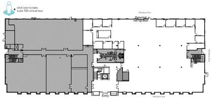
Prominent double-door entrance directly off lobby with 11 Private offices, Conference room, Storage room, IT room, and Break area. Polished concrete floors with 11’ drop ceiling. Ability to add roll-up door to accommodate loading.
- Lease rate does not include utilities, property expenses or building services
- Mostly Open Floor Plan Layout
- 2 Conference Rooms
- Kitchen
- Natural Light
- Fully Fit-Out as Standard Office
- 11 Private Offices
- Space is in Excellent Condition
- Secure Storage
| Space | Size | Term | Rate | Space Use | Condition | Available |
| 1st Floor, Ste 150 | 18,149 sq ft | Negotiable | £22.72 /sq ft pa £1.89 /sq ft pcm £412,282 pa £34,357 pcm | Office | Full Fit-Out | Now |
15231 Avenue of Science - 1st Floor - Ste 150
15333 Avenue Of Science - 1st Floor - Ste 100
| Size | 17,000-36,617 sq ft |
| Term | Negotiable |
| Rate | £22.72 /sq ft pa |
| Space Use | Office |
| Condition | Full Fit-Out |
| Available | Now |
Prominent double-door entrance directly off lobby with 29 private offices, Conference room, Storage room, IT room, and Break area. Partial exposed ceiling with polished concrete and remainder of the space is 11’ drop ceilings. Potential to add loading.
- Lease rate does not include utilities, property expenses or building services
- Fully Fit-Out as Standard Office
- Mostly Open Floor Plan Layout
- 29 Private Offices
- 1 Conference Room
- Space is in Excellent Condition
- Secure Storage
15333 Avenue Of Science - 2nd Floor - Ste 250
| Size | 8,441 sq ft |
| Term | Negotiable |
| Rate | £22.72 /sq ft pa |
| Space Use | Office |
| Condition | Full Fit-Out |
| Available | Now |
4 Private offices, 2 Meeting rooms, IT room, Break area, and open cube space. 11’ ceilings, double-door glass entrance and ample natural light.
- Lease rate does not include utilities, property expenses or building services
- Fully Fit-Out as Standard Office
- Open Floor Plan Layout
- 4 Private Offices
- 3 Conference Rooms
15445 Innovation Dr - 1st Floor - Ste 100
| Size | 25,600 sq ft |
| Term | Negotiable |
| Rate | £22.72 /sq ft pa |
| Space Use | Office |
| Condition | Partial Fit-Out |
| Available | 30 Days |
Coming Available. Reception, 9 Offices, Conference room, Large training room, 7 Huddle rooms, 2 Phone rooms, Kitchen/cafeteria, 3 Storage rooms, IT/IT storage, Copy center.
- Lease rate does not include utilities, property expenses or building services
- Partially Fit-Out as Standard Office
- 9 Private Offices
- 1 Conference Room
- Can be combined with additional space(s) for up to 51,200 sq ft of adjacent space
15445 Innovation Dr - 2nd Floor - Ste 200
| Size | 25,600 sq ft |
| Term | Negotiable |
| Rate | £22.72 /sq ft pa |
| Space Use | Office |
| Condition | Partial Fit-Out |
| Available | 30 Days |
Coming Available. 30 Offices, 2 Conference rooms, 4 Huddle rooms, Break area, Production room, Storage room.
- Lease rate does not include utilities, property expenses or building services
- Partially Fit-Out as Standard Office
- 30 Private Offices
- 2 Conference Rooms
- Can be combined with additional space(s) for up to 51,200 sq ft of adjacent space
15435 Innovation Dr - 1st Floor - Ste 100
| Size | 7,105-25,177 sq ft |
| Term | Negotiable |
| Rate | £22.72 /sq ft pa |
| Space Use | Office |
| Condition | Partial Fit-Out |
| Available | 30 Days |
Reception, 30 Offices, 2 Break areas, 4 Conference rooms, IT room, IT lab, Electric room, File room, 3 Phone booths, Copy room, Storage and Open area. Divisible down to 7,105 rsf.
- Lease rate does not include utilities, property expenses or building services
- Partially Fit-Out as Standard Office
- 30 Private Offices
- 4 Conference Rooms
15435 Innovation Dr - 2nd Floor - Ste 200
| Size | 11,130 sq ft |
| Term | Negotiable |
| Rate | £22.72 /sq ft pa |
| Space Use | Office |
| Condition | Full Fit-Out |
| Available | Now |
Reception, 12 Offices, Break area, IT/Storage and Open area for ±30-40 Cubicles.
- Lease rate does not include utilities, property expenses or building services
- Fully Fit-Out as Standard Office
- Mostly Open Floor Plan Layout
- 12 Private Offices
- 35 Workstations
- Can be combined with additional space(s) for up to 18,145 sq ft of adjacent space
- Reception Area
15435 Innovation Dr - 2nd Floor - Ste 201
| Size | 3,300 sq ft |
| Term | Negotiable |
| Rate | £22.72 /sq ft pa |
| Space Use | Office |
| Condition | Partial Fit-Out |
| Available | 30 Days |
Coming Available. 8 Offices, Huddle room.
- Lease rate does not include utilities, property expenses or building services
- Partially Fit-Out as Standard Office
- 8 Private Offices
- Can be combined with additional space(s) for up to 18,145 sq ft of adjacent space
15435 Innovation Dr - 2nd Floor - Ste 202
| Size | 3,715 sq ft |
| Term | Negotiable |
| Rate | £22.72 /sq ft pa |
| Space Use | Office |
| Condition | Partial Fit-Out |
| Available | 30 Days |
Coming Available. 4 Offices, 2 Huddle rooms, Break/Copy room
- Lease rate does not include utilities, property expenses or building services
- Partially Fit-Out as Standard Office
- 4 Private Offices
- Can be combined with additional space(s) for up to 18,145 sq ft of adjacent space
15231 Avenue of Science - 1st Floor - Ste 150
| Size | 18,149 sq ft |
| Term | Negotiable |
| Rate | £22.72 /sq ft pa |
| Space Use | Office |
| Condition | Full Fit-Out |
| Available | Now |
Prominent double-door entrance directly off lobby with 11 Private offices, Conference room, Storage room, IT room, and Break area. Polished concrete floors with 11’ drop ceiling. Ability to add roll-up door to accommodate loading.
- Lease rate does not include utilities, property expenses or building services
- Fully Fit-Out as Standard Office
- Mostly Open Floor Plan Layout
- 11 Private Offices
- 2 Conference Rooms
- Space is in Excellent Condition
- Kitchen
- Secure Storage
- Natural Light
PARK OVERVIEW
Innovation Corporate Center offers a premier Class A office and corporate headquarters campus in the heart of Rancho Bernardo, one of San Diego’s most desirable business districts. Spanning eight architecturally cohesive buildings totaling ±467,000 RSF, this master-planned environment is designed to support office, R&D, life science, and biotech users with flexible floorplates and collaborative layouts. Strategically positioned just off I-15 at Camino Del Norte and Carmel Mountain Road, the campus provides immediate freeway access and proximity to over one million square feet of adjacent retail, dining, and hospitality amenities. Tenants benefit from polished concrete floors, exposed ceilings, and abundant natural light, with suites offering a mix of private offices, conference rooms, IT infrastructure, and open workspaces. Several suites feature prominent lobby entrances and the potential for roll-up doors to support light industrial or lab functions. The surrounding Rancho Bernardo area is known for its highly educated workforce, scenic open space, and proximity to Palomar Medical Center Poway, making it ideal for life science and tech-oriented tenants. With a blend of modern design, functional efficiency, and amenity-rich surroundings, Innovation Corporate Center is a compelling choice for companies seeking a dynamic and scalable workplace.
Presented by
Innovation Corporate Center | San Diego, CA 92128
Hmm, there seems to have been an error sending your message. Please try again.
Thanks! Your message was sent.




















