Your email has been sent.
201 International 201 International Cir 1,094 - 32,219 sq ft of Office Space Available in Hunt Valley, MD 21030



HIGHLIGHTS
- Class A contemporary office space surrounded by affluent demographics and strong household income
- Minutes from I-695 and I-83 for regional access
- Full-service lease options with flexible suite configurations
- Located adjacent to Hunt Valley Towne Centre with top-tier retail and dining
- Walkable to Hunt Valley Light Rail station
- Building signage and lobby attendant included
ALL AVAILABLE SPACES(7)
Display Rent as
- SPACE
- SIZE
- TERM
- RATE
- USE
- CONDITION
- AVAILABLE
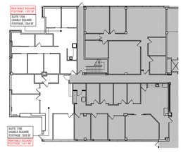
Suite 135, 1,094 SF, available now
- Rate includes utilities, building services and property expenses
- High-density office layout
- Fully Fit-Out as Standard Office
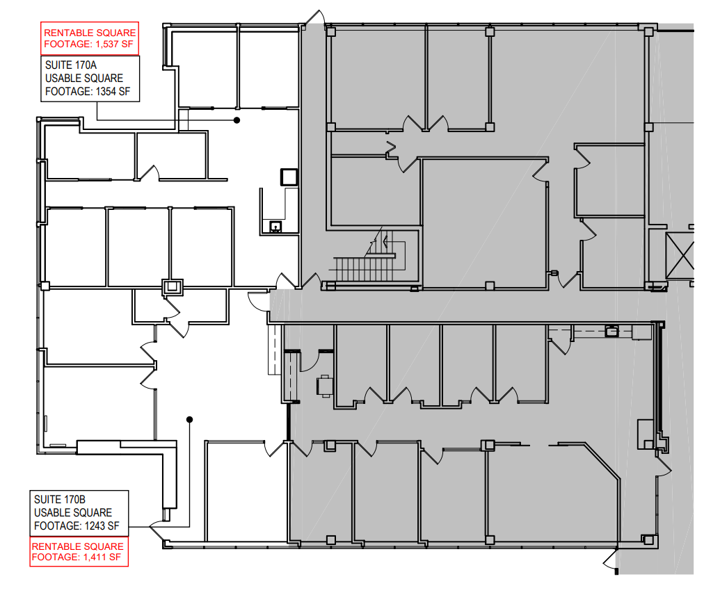
Suite 170A, 1,521 SF, 2 offices, team room
- Rate includes utilities, building services and property expenses
- High-density office layout
- Natural Light
- Fully Fit-Out as Standard Office
- Can be combined with additional space(s) for up to 2,944 sq ft of adjacent space
Suite 170B, 1,423 SF, 3 offices, can combine with 170A
- Rate includes utilities, building services and property expenses
- High-density office layout
- Fully Fit-Out as Standard Office
- Can be combined with additional space(s) for up to 2,944 sq ft of adjacent space
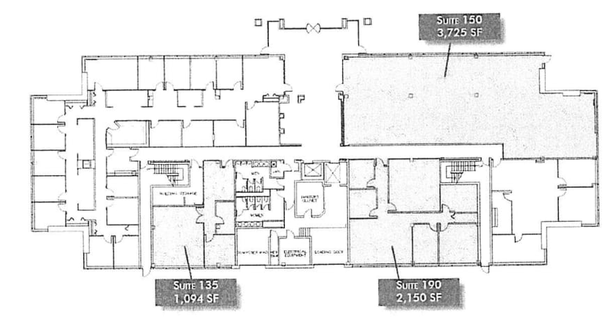
Suite 200, 2,166 SF, 4 offices, pantry
- Rate includes utilities, building services and property expenses
- High-density office layout
- Fully Fit-Out as Standard Office
- Natural Light
3rd Floor, 16,365 SF, open layout, team rooms
- Rate includes utilities, building services and property expenses
- Mostly Open Floor Plan Layout
- Natural Light
- Fully Fit-Out as Standard Office
- Can be combined with additional space(s) for up to 23,041 sq ft of adjacent space
Full floor available - over 16,000 sf of class A office space.
- Rate includes utilities, building services and property expenses
- Mostly Open Floor Plan Layout
- Lobby Attendant
- Prime Medical Location
- Fully Fit-Out as Standard Office
- Can be combined with additional space(s) for up to 23,041 sq ft of adjacent space
- Short walk to Hunt Valley Light Rail station
Suite 500C, 2,974 SF, 5 offices, reception
- Rate includes utilities, building services and property expenses
- Mostly Open Floor Plan Layout
- Fully Fit-Out as Standard Office
- Natural Light
| Space | Size | Term | Rate | Space Use | Condition | Available |
| 1st Floor, Ste 135 | 1,094 sq ft | Negotiable | £18.25 /sq ft pa £1.52 /sq ft pcm £19,963 pa £1,664 pcm | Office | Full Fit-Out | Now |
| 1st Floor, Ste 170A | 1,521 sq ft | Negotiable | £18.25 /sq ft pa £1.52 /sq ft pcm £27,755 pa £2,313 pcm | Office | Full Fit-Out | Now |
| 1st Floor, Ste 170B | 1,423 sq ft | Negotiable | £18.25 /sq ft pa £1.52 /sq ft pcm £25,967 pa £2,164 pcm | Office | Full Fit-Out | Now |
| 2nd Floor, Ste 200 | 2,166 sq ft | Negotiable | £18.25 /sq ft pa £1.52 /sq ft pcm £39,525 pa £3,294 pcm | Office | Full Fit-Out | Now |
| 3rd Floor | 16,365 sq ft | Negotiable | £18.25 /sq ft pa £1.52 /sq ft pcm £298,626 pa £24,885 pcm | Office | Full Fit-Out | Now |
| 4th Floor | 6,676 sq ft | Negotiable | £18.25 /sq ft pa £1.52 /sq ft pcm £121,823 pa £10,152 pcm | Office | Full Fit-Out | Now |
| 5th Floor, Ste 500C | 2,974 sq ft | Negotiable | £18.25 /sq ft pa £1.52 /sq ft pcm £54,269 pa £4,522 pcm | Office | Full Fit-Out | Now |
1st Floor, Ste 135
| Size |
| 1,094 sq ft |
| Term |
| Negotiable |
| Rate |
| £18.25 /sq ft pa £1.52 /sq ft pcm £19,963 pa £1,664 pcm |
| Space Use |
| Office |
| Condition |
| Full Fit-Out |
| Available |
| Now |
1st Floor, Ste 170A
| Size |
| 1,521 sq ft |
| Term |
| Negotiable |
| Rate |
| £18.25 /sq ft pa £1.52 /sq ft pcm £27,755 pa £2,313 pcm |
| Space Use |
| Office |
| Condition |
| Full Fit-Out |
| Available |
| Now |
1st Floor, Ste 170B
| Size |
| 1,423 sq ft |
| Term |
| Negotiable |
| Rate |
| £18.25 /sq ft pa £1.52 /sq ft pcm £25,967 pa £2,164 pcm |
| Space Use |
| Office |
| Condition |
| Full Fit-Out |
| Available |
| Now |
2nd Floor, Ste 200
| Size |
| 2,166 sq ft |
| Term |
| Negotiable |
| Rate |
| £18.25 /sq ft pa £1.52 /sq ft pcm £39,525 pa £3,294 pcm |
| Space Use |
| Office |
| Condition |
| Full Fit-Out |
| Available |
| Now |
3rd Floor
| Size |
| 16,365 sq ft |
| Term |
| Negotiable |
| Rate |
| £18.25 /sq ft pa £1.52 /sq ft pcm £298,626 pa £24,885 pcm |
| Space Use |
| Office |
| Condition |
| Full Fit-Out |
| Available |
| Now |
4th Floor
| Size |
| 6,676 sq ft |
| Term |
| Negotiable |
| Rate |
| £18.25 /sq ft pa £1.52 /sq ft pcm £121,823 pa £10,152 pcm |
| Space Use |
| Office |
| Condition |
| Full Fit-Out |
| Available |
| Now |
5th Floor, Ste 500C
| Size |
| 2,974 sq ft |
| Term |
| Negotiable |
| Rate |
| £18.25 /sq ft pa £1.52 /sq ft pcm £54,269 pa £4,522 pcm |
| Space Use |
| Office |
| Condition |
| Full Fit-Out |
| Available |
| Now |
1st Floor, Ste 135
| Size | 1,094 sq ft |
| Term | Negotiable |
| Rate | £18.25 /sq ft pa |
| Space Use | Office |
| Condition | Full Fit-Out |
| Available | Now |
Suite 135, 1,094 SF, available now
- Rate includes utilities, building services and property expenses
- Fully Fit-Out as Standard Office
- High-density office layout
1st Floor, Ste 170A
| Size | 1,521 sq ft |
| Term | Negotiable |
| Rate | £18.25 /sq ft pa |
| Space Use | Office |
| Condition | Full Fit-Out |
| Available | Now |
Suite 170A, 1,521 SF, 2 offices, team room
- Rate includes utilities, building services and property expenses
- Fully Fit-Out as Standard Office
- High-density office layout
- Can be combined with additional space(s) for up to 2,944 sq ft of adjacent space
- Natural Light
1st Floor, Ste 170B
| Size | 1,423 sq ft |
| Term | Negotiable |
| Rate | £18.25 /sq ft pa |
| Space Use | Office |
| Condition | Full Fit-Out |
| Available | Now |
Suite 170B, 1,423 SF, 3 offices, can combine with 170A
- Rate includes utilities, building services and property expenses
- Fully Fit-Out as Standard Office
- High-density office layout
- Can be combined with additional space(s) for up to 2,944 sq ft of adjacent space
2nd Floor, Ste 200
| Size | 2,166 sq ft |
| Term | Negotiable |
| Rate | £18.25 /sq ft pa |
| Space Use | Office |
| Condition | Full Fit-Out |
| Available | Now |
Suite 200, 2,166 SF, 4 offices, pantry
- Rate includes utilities, building services and property expenses
- Fully Fit-Out as Standard Office
- High-density office layout
- Natural Light
3rd Floor
| Size | 16,365 sq ft |
| Term | Negotiable |
| Rate | £18.25 /sq ft pa |
| Space Use | Office |
| Condition | Full Fit-Out |
| Available | Now |
3rd Floor, 16,365 SF, open layout, team rooms
- Rate includes utilities, building services and property expenses
- Fully Fit-Out as Standard Office
- Mostly Open Floor Plan Layout
- Can be combined with additional space(s) for up to 23,041 sq ft of adjacent space
- Natural Light
4th Floor
| Size | 6,676 sq ft |
| Term | Negotiable |
| Rate | £18.25 /sq ft pa |
| Space Use | Office |
| Condition | Full Fit-Out |
| Available | Now |
Full floor available - over 16,000 sf of class A office space.
- Rate includes utilities, building services and property expenses
- Fully Fit-Out as Standard Office
- Mostly Open Floor Plan Layout
- Can be combined with additional space(s) for up to 23,041 sq ft of adjacent space
- Lobby Attendant
- Short walk to Hunt Valley Light Rail station
- Prime Medical Location
5th Floor, Ste 500C
| Size | 2,974 sq ft |
| Term | Negotiable |
| Rate | £18.25 /sq ft pa |
| Space Use | Office |
| Condition | Full Fit-Out |
| Available | Now |
Suite 500C, 2,974 SF, 5 offices, reception
- Rate includes utilities, building services and property expenses
- Fully Fit-Out as Standard Office
- Mostly Open Floor Plan Layout
- Natural Light
PROPERTY OVERVIEW
Positioned in the heart of Hunt Valley, 201 International Circle offers a prime leasing opportunity within a highly accessible and amenity-rich corridor. This five-story, 78,461-square-foot office building is ideally located just minutes from I-695 and I-83, providing seamless regional connectivity. Tenants benefit from direct walkability to the Hunt Valley Light Rail station and the vibrant Hunt Valley Towne Centre, which features a robust mix of retail, dining, and fitness options including Wegmans, Regal Cinemas, DICK’S Sporting Goods, Onelife Fitness, and more. The property features two full-floor leasing options with off-elevator entry, building signage availability, and a staffed lobby for professional presence. Landscaped grounds and ample parking enhance the tenant experience, while the surrounding area supports a strong demographic profile with average household incomes exceeding $170,000 within a 5-mile radius and home values averaging over $580,000. Whether seeking a full floor or a smaller suite, tenants will find flexible layouts and full-service lease terms tailored to modern business needs. The building’s visibility, walkability, and proximity to major transit and amenities make it a standout choice for companies looking to establish or expand in Baltimore County’s premier business district.
- Atrium
- Property Manager on Site
- Air Conditioning
PROPERTY FACTS
Presented by
201 International | 201 International Cir
Hmm, there seems to have been an error sending your message. Please try again.
Thanks! Your message was sent.















