Your email has been sent.
PARK HIGHLIGHTS
- 30 meter yard
- Strategically located on the A14 corridor, New Quarter is in one of the fastest-growing logistics locations in the UK.
- 22 car park spaces with 2 additional disabled spaces
- 25 car parking spaces with 4 disabled spaces
- Strategically located on the A14 corridor, New Quarter is in one of the fastest-growing logistics locations in the UK
- 30 meter yard
PARK FACTS
| Total Space Available | 148,708 sq ft | Park Type | Industrial Park |
| Max. Contiguous | 45,740 sq ft |
| Total Space Available | 148,708 sq ft |
| Max. Contiguous | 45,740 sq ft |
| Park Type | Industrial Park |
ALL AVAILABLE SPACES(12)
Display Rent as
- SPACE
- SIZE
- TERM
- RATE
- USE
- CONDITION
- AVAILABLE
The 2 spaces in this building must be leased together, for a total size of 25,685 sq ft (Contiguous Area):
New Quarter - Building 1 has 10m eaves height, Cat A first floor finishes, 70kn floor loading and 2 electric loading doors.
- Use Class: B2
- Space is in Excellent Condition
- Exclusive WC facilities
- 2 Level Access Doors
- Roller Shutters
- Includes 2,065 sq ft of dedicated office space
| Space | Size | Term | Rate | Space Use | Condition | Available |
| Ground - 1, 1st Floor - 1 | 25,685 sq ft | Negotiable | Upon Application Upon Application Upon Application Upon Application | Industrial | - | 11/02/2026 |
1 Northern Way - Ground - 1, 1st Floor - 1
The 2 spaces in this building must be leased together, for a total size of 25,685 sq ft (Contiguous Area):
- SPACE
- SIZE
- TERM
- RATE
- USE
- CONDITION
- AVAILABLE
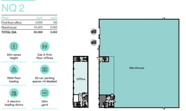
The 2 spaces in this building must be leased together, for a total size of 26,388 sq ft (Contiguous Area):
New Quarter - Building 2 has 10m eaves height, Cat A first floor finishes, 70kn floor loading and 2 electric loading doors.
- Use Class: E
- Space is in Excellent Condition
- Exclusive WC facilities
- 2 Level Access Doors
- Roller Shutters
- Includes 2,065 sq ft of dedicated office space
| Space | Size | Term | Rate | Space Use | Condition | Available |
| Ground - 2, 1st Floor - 2 | 26,388 sq ft | Negotiable | Upon Application Upon Application Upon Application Upon Application | Industrial | Shell And Core | 11/02/2026 |
Northern Way - Ground - 2, 1st Floor - 2
The 2 spaces in this building must be leased together, for a total size of 26,388 sq ft (Contiguous Area):
- SPACE
- SIZE
- TERM
- RATE
- USE
- CONDITION
- AVAILABLE
The 2 spaces in this building must be leased together, for a total size of 23,255 sq ft (Contiguous Area):
New Quarter - Building 3 has 10m eaves height, Cat A first floor finishes, 70kn floor loading and 2 electric loading doors.
- Use Class: B2
- Roller Shutters
- Includes 2,065 sq ft of dedicated office space
- Space is in Excellent Condition
- Exclusive WC facilities
| Space | Size | Term | Rate | Space Use | Condition | Available |
| Ground - 3, 1st Floor - 3 | 23,255 sq ft | Negotiable | Upon Application Upon Application Upon Application Upon Application | Industrial | - | 11/02/2026 |
3 Northern Way - Ground - 3, 1st Floor - 3
The 2 spaces in this building must be leased together, for a total size of 23,255 sq ft (Contiguous Area):
- SPACE
- SIZE
- TERM
- RATE
- USE
- CONDITION
- AVAILABLE
New Quarter - Building 4 has 8m eaves height, Cat A first floor finishes, 60kN floor loading and 1 electric loading doors. Unit 4 has the potential for a lift to be installed going from the warehouse space to the first floor offices by the occupying tenant if they choose.
- Use Class: B2
- Space is in Excellent Condition
- Roller Shutters
- Lift
- 1 Level Access Door
- Can be combined with additional space(s) for up to 14,095 sq ft of adjacent space
- Loading doors
- Office
New Quarter - Building 5 has 8m eaves height, Cat A first floor finishes, 60kN floor loading and 1 electric loading doors. Unit 4 has the potential for a lift to be installed going from the warehouse space to the first floor offices by the occupying tenant if they choose.
- Use Class: Class 5
- Space is in Excellent Condition
- Roller Shutters
- 1 Level Access Door
- Can be combined with additional space(s) for up to 14,095 sq ft of adjacent space
New Quarter - Building 4 has 8m eaves height, Cat A first floor finishes, 60kN floor loading and 1 electric loading doors. Unit 4 has the potential for a lift to be installed going from the warehouse space to the first floor offices by the occupying tenant if they choose.
- Use Class: Class 5
- 1 Level Access Door
- Can be combined with additional space(s) for up to 14,095 sq ft of adjacent space
- Includes 1,115 sq ft of dedicated office space
- Space is in Excellent Condition
- Roller Shutters
New Quarter - Building 5 has 8m eaves height, Cat A first floor finishes, 60kN floor loading and 1 electric loading doors. Unit 4 has the potential for a lift to be installed going from the warehouse space to the first floor offices by the occupying tenant if they choose.
- Use Class: Class 5
- 1 Level Access Door
- Can be combined with additional space(s) for up to 14,095 sq ft of adjacent space
- Includes 1,115 sq ft of dedicated office space
- Space is in Excellent Condition
- Roller Shutters
| Space | Size | Term | Rate | Space Use | Condition | Available |
| Ground - 4 | 5,765 sq ft | Negotiable | Upon Application Upon Application Upon Application Upon Application | Industrial | - | 11/02/2026 |
| Ground - 5 | 6,100 sq ft | Negotiable | Upon Application Upon Application Upon Application Upon Application | Industrial | - | 11/02/2026 |
| 1st Floor - 4 | 1,115 sq ft | Negotiable | Upon Application Upon Application Upon Application Upon Application | Industrial | - | 11/02/2026 |
| 1st Floor - 5 | 1,115 sq ft | Negotiable | Upon Application Upon Application Upon Application Upon Application | Industrial | - | 11/02/2026 |
Northern Way - Ground - 4
Northern Way - Ground - 5
Northern Way - 1st Floor - 4
Northern Way - 1st Floor - 5
- SPACE
- SIZE
- TERM
- RATE
- USE
- CONDITION
- AVAILABLE
The 2 spaces in this building must be leased together, for a total size of 13,545 sq ft (Contiguous Area):
New Quarter - Building 6 has 8m eaves height, Cat A first floor finishes, 60kN floor loading and 2 electric loading doors.
- Use Class: B2
- Space is in Excellent Condition
- Includes 1,760 sq ft of dedicated office space
- 2 Level Access Doors
- Roller Shutters
| Space | Size | Term | Rate | Space Use | Condition | Available |
| Ground - 6, 1st Floor - 6 | 13,545 sq ft | Negotiable | Upon Application Upon Application Upon Application Upon Application | Industrial | - | 11/02/2026 |
Northern Way - Ground - 6, 1st Floor - 6
The 2 spaces in this building must be leased together, for a total size of 13,545 sq ft (Contiguous Area):
- SPACE
- SIZE
- TERM
- RATE
- USE
- CONDITION
- AVAILABLE
New Quarter - Building 7 has 10m eaves height, Cat A first floor finishes, 70kN floor loading and 2 electric loading doors.
- Use Class: B2
- Space is in Excellent Condition
- Roller Shutters
- 2 Level Access Doors
- Can be combined with additional space(s) for up to 45,740 sq ft of adjacent space
- New lease available
New Quarter - Building 8 has 10m eaves height, Cat A first floor finishes, 70kN floor loading and 2 electric loading doors.
- Use Class: B2
- Space is in Excellent Condition
- Roller Shutters
- 2 Level Access Doors
- Can be combined with additional space(s) for up to 45,740 sq ft of adjacent space
New Quarter - Building 7 has 10m eaves height, Cat A first floor finishes, 70kN floor loading and 2 electric loading doors.
- Use Class: B2
- 2 Level Access Doors
- Can be combined with additional space(s) for up to 45,740 sq ft of adjacent space
- Includes 1,740 sq ft of dedicated office space
- Space is in Excellent Condition
- Roller Shutters
New Quarter - Building 7 has 10m eaves height, Cat A first floor finishes, 70kN floor loading and 2 electric loading doors.
- Use Class: B2
- 2 Level Access Doors
- Can be combined with additional space(s) for up to 45,740 sq ft of adjacent space
- Includes 1,715 sq ft of dedicated office space
- Space is in Excellent Condition
- Roller Shutters
| Space | Size | Term | Rate | Space Use | Condition | Available |
| Ground - 7 | 21,235 sq ft | Negotiable | Upon Application Upon Application Upon Application Upon Application | Industrial | - | 11/02/2026 |
| Ground - 8 | 21,050 sq ft | Negotiable | Upon Application Upon Application Upon Application Upon Application | Industrial | - | 11/02/2026 |
| 1st Floor - 7 | 1,740 sq ft | Negotiable | Upon Application Upon Application Upon Application Upon Application | Industrial | - | 11/02/2026 |
| 1st Floor - 8 | 1,715 sq ft | Negotiable | Upon Application Upon Application Upon Application Upon Application | Industrial | - | 11/02/2026 |
Northern Way - Ground - 7
Northern Way - Ground - 8
Northern Way - 1st Floor - 7
Northern Way - 1st Floor - 8
1 Northern Way - Ground - 1, 1st Floor - 1
| Size |
Ground - 1 - 23,620 sq ft
1st Floor - 1 - 2,065 sq ft
|
| Term | Negotiable |
| Rate | Upon Application |
| Space Use | Industrial |
| Condition | - |
| Available | 11/02/2026 |
New Quarter - Building 1 has 10m eaves height, Cat A first floor finishes, 70kn floor loading and 2 electric loading doors.
- Use Class: B2
- 2 Level Access Doors
- Space is in Excellent Condition
- Roller Shutters
- Exclusive WC facilities
- Includes 2,065 sq ft of dedicated office space
Northern Way - Ground - 2, 1st Floor - 2
| Size |
Ground - 2 - 24,323 sq ft
1st Floor - 2 - 2,065 sq ft
|
| Term | Negotiable |
| Rate | Upon Application |
| Space Use | Industrial |
| Condition | Shell And Core |
| Available | 11/02/2026 |
New Quarter - Building 2 has 10m eaves height, Cat A first floor finishes, 70kn floor loading and 2 electric loading doors.
- Use Class: E
- 2 Level Access Doors
- Space is in Excellent Condition
- Roller Shutters
- Exclusive WC facilities
- Includes 2,065 sq ft of dedicated office space
3 Northern Way - Ground - 3, 1st Floor - 3
| Size |
Ground - 3 - 21,190 sq ft
1st Floor - 3 - 2,065 sq ft
|
| Term | Negotiable |
| Rate | Upon Application |
| Space Use | Industrial |
| Condition | - |
| Available | 11/02/2026 |
New Quarter - Building 3 has 10m eaves height, Cat A first floor finishes, 70kn floor loading and 2 electric loading doors.
- Use Class: B2
- Space is in Excellent Condition
- Roller Shutters
- Exclusive WC facilities
- Includes 2,065 sq ft of dedicated office space
Northern Way - Ground - 4
| Size | 5,765 sq ft |
| Term | Negotiable |
| Rate | Upon Application |
| Space Use | Industrial |
| Condition | - |
| Available | 11/02/2026 |
New Quarter - Building 4 has 8m eaves height, Cat A first floor finishes, 60kN floor loading and 1 electric loading doors. Unit 4 has the potential for a lift to be installed going from the warehouse space to the first floor offices by the occupying tenant if they choose.
- Use Class: B2
- 1 Level Access Door
- Space is in Excellent Condition
- Can be combined with additional space(s) for up to 14,095 sq ft of adjacent space
- Roller Shutters
- Loading doors
- Lift
- Office
Northern Way - Ground - 5
| Size | 6,100 sq ft |
| Term | Negotiable |
| Rate | Upon Application |
| Space Use | Industrial |
| Condition | - |
| Available | 11/02/2026 |
New Quarter - Building 5 has 8m eaves height, Cat A first floor finishes, 60kN floor loading and 1 electric loading doors. Unit 4 has the potential for a lift to be installed going from the warehouse space to the first floor offices by the occupying tenant if they choose.
- Use Class: Class 5
- 1 Level Access Door
- Space is in Excellent Condition
- Can be combined with additional space(s) for up to 14,095 sq ft of adjacent space
- Roller Shutters
Northern Way - 1st Floor - 4
| Size | 1,115 sq ft |
| Term | Negotiable |
| Rate | Upon Application |
| Space Use | Industrial |
| Condition | - |
| Available | 11/02/2026 |
New Quarter - Building 4 has 8m eaves height, Cat A first floor finishes, 60kN floor loading and 1 electric loading doors. Unit 4 has the potential for a lift to be installed going from the warehouse space to the first floor offices by the occupying tenant if they choose.
- Use Class: Class 5
- Includes 1,115 sq ft of dedicated office space
- 1 Level Access Door
- Space is in Excellent Condition
- Can be combined with additional space(s) for up to 14,095 sq ft of adjacent space
- Roller Shutters
Northern Way - 1st Floor - 5
| Size | 1,115 sq ft |
| Term | Negotiable |
| Rate | Upon Application |
| Space Use | Industrial |
| Condition | - |
| Available | 11/02/2026 |
New Quarter - Building 5 has 8m eaves height, Cat A first floor finishes, 60kN floor loading and 1 electric loading doors. Unit 4 has the potential for a lift to be installed going from the warehouse space to the first floor offices by the occupying tenant if they choose.
- Use Class: Class 5
- Includes 1,115 sq ft of dedicated office space
- 1 Level Access Door
- Space is in Excellent Condition
- Can be combined with additional space(s) for up to 14,095 sq ft of adjacent space
- Roller Shutters
Northern Way - Ground - 6, 1st Floor - 6
| Size |
Ground - 6 - 11,785 sq ft
1st Floor - 6 - 1,760 sq ft
|
| Term | Negotiable |
| Rate | Upon Application |
| Space Use | Industrial |
| Condition | - |
| Available | 11/02/2026 |
New Quarter - Building 6 has 8m eaves height, Cat A first floor finishes, 60kN floor loading and 2 electric loading doors.
- Use Class: B2
- 2 Level Access Doors
- Space is in Excellent Condition
- Roller Shutters
- Includes 1,760 sq ft of dedicated office space
Northern Way - Ground - 7
| Size | 21,235 sq ft |
| Term | Negotiable |
| Rate | Upon Application |
| Space Use | Industrial |
| Condition | - |
| Available | 11/02/2026 |
New Quarter - Building 7 has 10m eaves height, Cat A first floor finishes, 70kN floor loading and 2 electric loading doors.
- Use Class: B2
- 2 Level Access Doors
- Space is in Excellent Condition
- Can be combined with additional space(s) for up to 45,740 sq ft of adjacent space
- Roller Shutters
- New lease available
Northern Way - Ground - 8
| Size | 21,050 sq ft |
| Term | Negotiable |
| Rate | Upon Application |
| Space Use | Industrial |
| Condition | - |
| Available | 11/02/2026 |
New Quarter - Building 8 has 10m eaves height, Cat A first floor finishes, 70kN floor loading and 2 electric loading doors.
- Use Class: B2
- 2 Level Access Doors
- Space is in Excellent Condition
- Can be combined with additional space(s) for up to 45,740 sq ft of adjacent space
- Roller Shutters
Northern Way - 1st Floor - 7
| Size | 1,740 sq ft |
| Term | Negotiable |
| Rate | Upon Application |
| Space Use | Industrial |
| Condition | - |
| Available | 11/02/2026 |
New Quarter - Building 7 has 10m eaves height, Cat A first floor finishes, 70kN floor loading and 2 electric loading doors.
- Use Class: B2
- Includes 1,740 sq ft of dedicated office space
- 2 Level Access Doors
- Space is in Excellent Condition
- Can be combined with additional space(s) for up to 45,740 sq ft of adjacent space
- Roller Shutters
Northern Way - 1st Floor - 8
| Size | 1,715 sq ft |
| Term | Negotiable |
| Rate | Upon Application |
| Space Use | Industrial |
| Condition | - |
| Available | 11/02/2026 |
New Quarter - Building 7 has 10m eaves height, Cat A first floor finishes, 70kN floor loading and 2 electric loading doors.
- Use Class: B2
- Includes 1,715 sq ft of dedicated office space
- 2 Level Access Doors
- Space is in Excellent Condition
- Can be combined with additional space(s) for up to 45,740 sq ft of adjacent space
- Roller Shutters
SITE PLAN
PARK OVERVIEW
New Quarter Building 3 is located in a brand new best-in-class logistics park, comprising eight modern warehouse / industrial units from 7,000 sq ft – 149,000 sq ft, designed to the highest specification for a sustainable future. Completion of building 3 is – Q4 2023. Building 2 includes, a 34 meter yard, 24 car parking spaces with 2 disabled spaces, 10 Meter eave Height. Sustainably constructed using innovative energy-saving features, New Quarter is committed to delivering buildings that will benefit the planet and it's future occupiers. The buildings will be targeting BREEAM 'Excellent' with features including high-performance insulation, EV parking, LED lighting, photovoltaic panels and roof light.Strategically located on the A14 corridor, New Quarter is in one of the fastest-growing logistics locations in the UK. The A14 directly connects the Midlands and the Port of Felixstowe; Britain's busiest container port and one of the largest in Europe, handling over 4 million TEUs a year.It also links to the national motorway network and the A12 for swift delivery to London and the South East markets.
Presented by
Company Not Provided
Building 1 | Bury St Edmunds IP32 6NL
Hmm, there seems to have been an error sending your message. Please try again.
Thanks! Your message was sent.
















