Your email has been sent.
Burr Ridge Office Center 361 S Frontage Rd 2,200 - 14,494 sq ft of Space Available in Burr Ridge, IL 60527



ALL AVAILABLE SPACES(4)
Display Rent as
- SPACE
- SIZE
- TERM
- RATE
- USE
- CONDITION
- AVAILABLE
2,200 square foot office space available for lease.
- Listed rate may not include certain utilities, building services and property expenses
- Mostly Open Floor Plan Layout
- Partially Fit-Out as Standard Office
- Fits 6 - 18 People
2,415 square foot office space available for lease.
- Listed rate may not include certain utilities, building services and property expenses
- Can be combined with additional space(s) for up to 12,294 sq ft of adjacent space
- Mostly Open Floor Plan Layout
4,485 square foot office space available for lease.
- Listed rate may not include certain utilities, building services and property expenses
- Mostly Open Floor Plan Layout
- Can be combined with additional space(s) for up to 12,294 sq ft of adjacent space
- Fully Fit-Out as Standard Office
- Fits 12 - 36 People
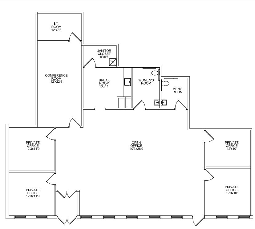
5,394 square foot flex space including a built out data center available for lease.
- Listed rate may not include certain utilities, building services and property expenses
- 7 Private Offices
- Finished Ceilings: 10 ft
- Data Center
- Can be combined with additional space(s) for up to 12,294 sq ft of adjacent space
- 20 Workstations
- 1 Conference Room
| Space | Size | Term | Rate | Space Use | Condition | Available |
| 1st Floor, Ste 104 | 2,200 sq ft | 1-10 Years | £15.64 /sq ft pa £1.30 /sq ft pcm £34,410 pa £2,868 pcm | Office | Partial Fit-Out | Now |
| 1st Floor, Ste 123 | 2,415 sq ft | 1-10 Years | £15.64 /sq ft pa £1.30 /sq ft pcm £37,773 pa £3,148 pcm | Office | Shell And Core | Now |
| 1st Floor, Ste 124 | 4,485 sq ft | Negotiable | £15.64 /sq ft pa £1.30 /sq ft pcm £70,150 pa £5,846 pcm | Office | Full Fit-Out | Now |
| 1st Floor - 125 | 5,394 sq ft | Negotiable | £15.64 /sq ft pa £1.30 /sq ft pcm £84,368 pa £7,031 pcm | Light Industrial | Full Fit-Out | Now |
1st Floor, Ste 104
| Size |
| 2,200 sq ft |
| Term |
| 1-10 Years |
| Rate |
| £15.64 /sq ft pa £1.30 /sq ft pcm £34,410 pa £2,868 pcm |
| Space Use |
| Office |
| Condition |
| Partial Fit-Out |
| Available |
| Now |
1st Floor, Ste 123
| Size |
| 2,415 sq ft |
| Term |
| 1-10 Years |
| Rate |
| £15.64 /sq ft pa £1.30 /sq ft pcm £37,773 pa £3,148 pcm |
| Space Use |
| Office |
| Condition |
| Shell And Core |
| Available |
| Now |
1st Floor, Ste 124
| Size |
| 4,485 sq ft |
| Term |
| Negotiable |
| Rate |
| £15.64 /sq ft pa £1.30 /sq ft pcm £70,150 pa £5,846 pcm |
| Space Use |
| Office |
| Condition |
| Full Fit-Out |
| Available |
| Now |
1st Floor - 125
| Size |
| 5,394 sq ft |
| Term |
| Negotiable |
| Rate |
| £15.64 /sq ft pa £1.30 /sq ft pcm £84,368 pa £7,031 pcm |
| Space Use |
| Light Industrial |
| Condition |
| Full Fit-Out |
| Available |
| Now |
1st Floor, Ste 104
| Size | 2,200 sq ft |
| Term | 1-10 Years |
| Rate | £15.64 /sq ft pa |
| Space Use | Office |
| Condition | Partial Fit-Out |
| Available | Now |
2,200 square foot office space available for lease.
- Listed rate may not include certain utilities, building services and property expenses
- Partially Fit-Out as Standard Office
- Mostly Open Floor Plan Layout
- Fits 6 - 18 People
1st Floor, Ste 123
| Size | 2,415 sq ft |
| Term | 1-10 Years |
| Rate | £15.64 /sq ft pa |
| Space Use | Office |
| Condition | Shell And Core |
| Available | Now |
2,415 square foot office space available for lease.
- Listed rate may not include certain utilities, building services and property expenses
- Mostly Open Floor Plan Layout
- Can be combined with additional space(s) for up to 12,294 sq ft of adjacent space
1st Floor, Ste 124
| Size | 4,485 sq ft |
| Term | Negotiable |
| Rate | £15.64 /sq ft pa |
| Space Use | Office |
| Condition | Full Fit-Out |
| Available | Now |
4,485 square foot office space available for lease.
- Listed rate may not include certain utilities, building services and property expenses
- Fully Fit-Out as Standard Office
- Mostly Open Floor Plan Layout
- Fits 12 - 36 People
- Can be combined with additional space(s) for up to 12,294 sq ft of adjacent space
1st Floor - 125
| Size | 5,394 sq ft |
| Term | Negotiable |
| Rate | £15.64 /sq ft pa |
| Space Use | Light Industrial |
| Condition | Full Fit-Out |
| Available | Now |
5,394 square foot flex space including a built out data center available for lease.
- Listed rate may not include certain utilities, building services and property expenses
- Can be combined with additional space(s) for up to 12,294 sq ft of adjacent space
- 7 Private Offices
- 20 Workstations
- Finished Ceilings: 10 ft
- 1 Conference Room
- Data Center
FEATURES AND AMENITIES
- Signage
PROPERTY FACTS
Presented by
Burr Ridge Office Center | 361 S Frontage Rd
Hmm, there seems to have been an error sending your message. Please try again.
Thanks! Your message was sent.






