Your email has been sent.
Highlights
- East wing is fully fitted and furnished.
- Air-conditioned offices.
- LED Lighting.
- Flexible leases available.
- West Wing is fitted to Cat A+ specification.
- Raised floors.
- Good car parking provision.
All Available Spaces(2)
Display Rent as
- Space
- Size
- Term
- Rate
- Space Use
- Condition
- Available
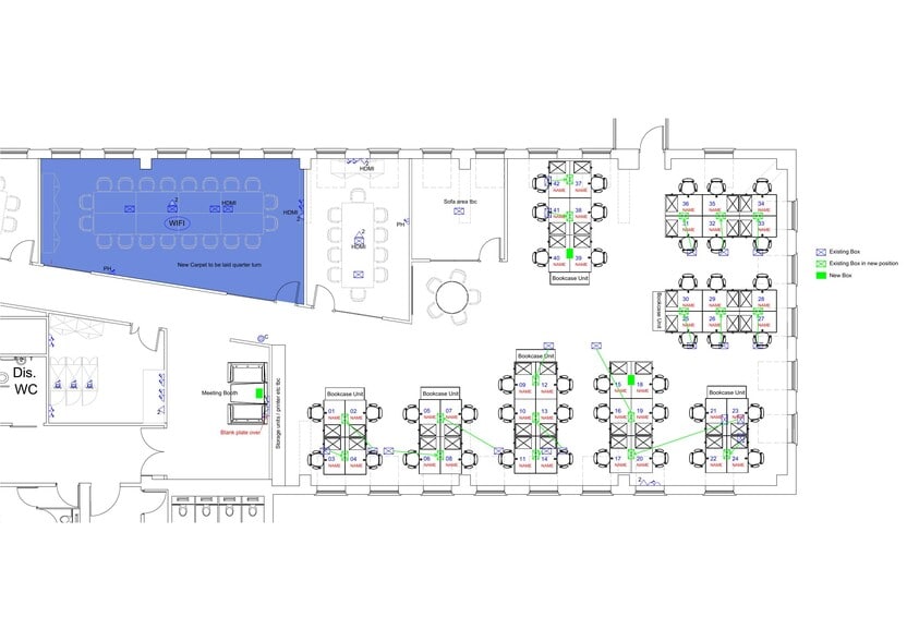
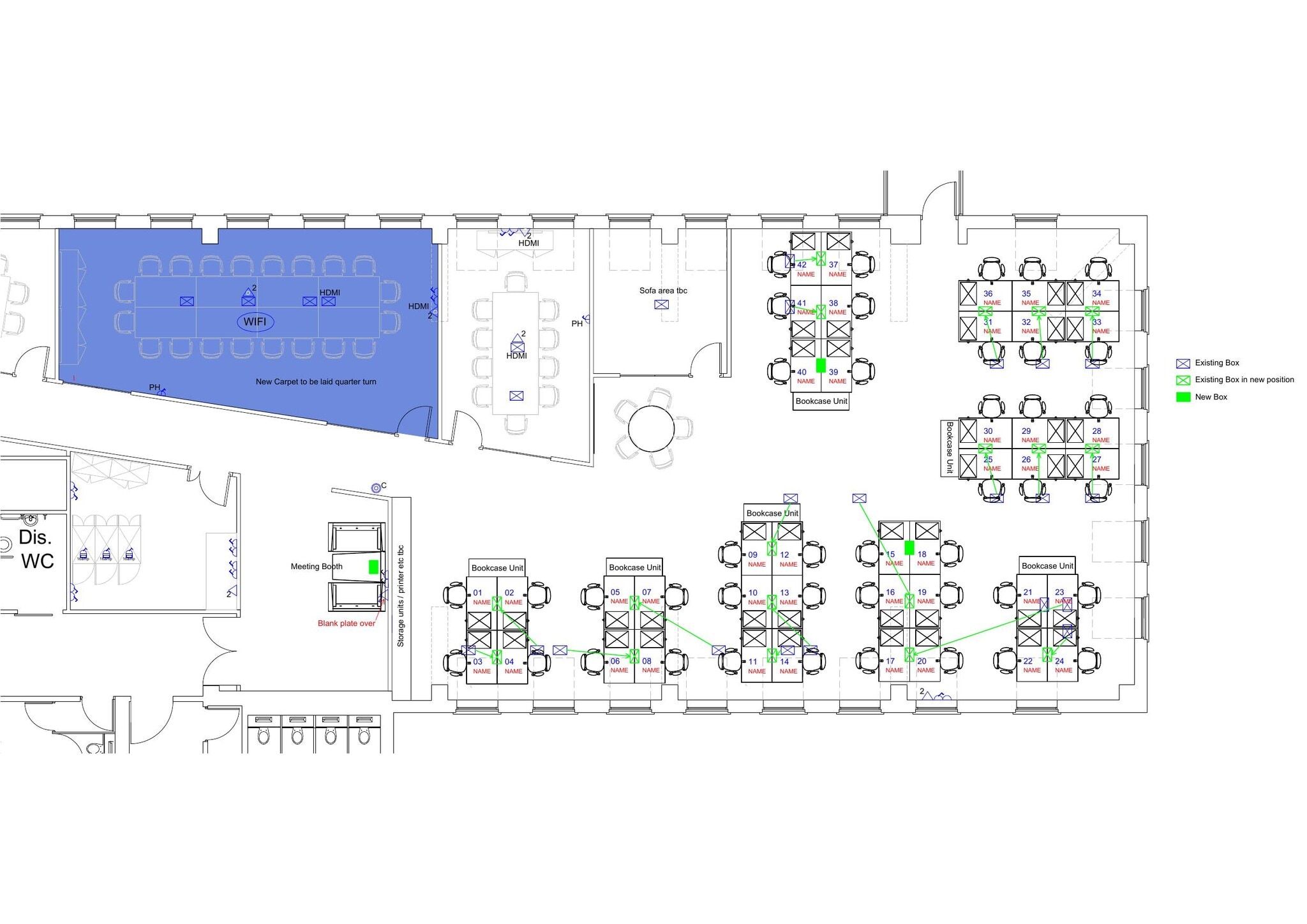
The East wing is fully fitted and furnished and provides plug and play space for quick and hassle free occupation. It comprises a large open plan work space plus 4 meeting rooms in a range of sizes; a large kitchen/break out area, storage and server rooms. 42 desks (complete with connected data cabling), shelving, meeting booth and break out furniture are all provided.
- Use Class: E
- Mostly Open Floor Plan Layout
- Can be combined with additional space(s) for up to 8,192 sq ft of adjacent space
- Common Parts WC Facilities
- Premium Fit Out
- Partially Fit-Out as Standard Office
- Space is in Excellent Condition
- Central Air and Heating
- Great Natural Light
- Open Layout
The West Wing is provided in Cat A+ condition. It comprises a large open plan work space, 3 meeting rooms and data cabling remaining in situ.
- Use Class: E
- Mostly Open Floor Plan Layout
- Can be combined with additional space(s) for up to 8,192 sq ft of adjacent space
- Common Parts WC Facilities
- Premium Fit Out
- Partially Fit-Out as Standard Office
- Space is in Excellent Condition
- Central Air and Heating
- Great Natural Light
- Open Layout
| Space | Size | Term | Rate | Space Use | Condition | Available |
| 2nd Floor, Ste East Suite | 5,088 sq ft | Negotiable | Upon Application Upon Application Upon Application Upon Application | Office | Partial Fit-Out | Now |
| 2nd Floor, Ste West Suite | 3,104 sq ft | Negotiable | Upon Application Upon Application Upon Application Upon Application | Office | Partial Fit-Out | Now |
2nd Floor, Ste East Suite
| Size |
| 5,088 sq ft |
| Term |
| Negotiable |
| Rate |
| Upon Application Upon Application Upon Application Upon Application |
| Space Use |
| Office |
| Condition |
| Partial Fit-Out |
| Available |
| Now |
2nd Floor, Ste West Suite
| Size |
| 3,104 sq ft |
| Term |
| Negotiable |
| Rate |
| Upon Application Upon Application Upon Application Upon Application |
| Space Use |
| Office |
| Condition |
| Partial Fit-Out |
| Available |
| Now |
2nd Floor, Ste East Suite
| Size | 5,088 sq ft |
| Term | Negotiable |
| Rate | Upon Application |
| Space Use | Office |
| Condition | Partial Fit-Out |
| Available | Now |
The East wing is fully fitted and furnished and provides plug and play space for quick and hassle free occupation. It comprises a large open plan work space plus 4 meeting rooms in a range of sizes; a large kitchen/break out area, storage and server rooms. 42 desks (complete with connected data cabling), shelving, meeting booth and break out furniture are all provided.
- Use Class: E
- Partially Fit-Out as Standard Office
- Mostly Open Floor Plan Layout
- Space is in Excellent Condition
- Can be combined with additional space(s) for up to 8,192 sq ft of adjacent space
- Central Air and Heating
- Common Parts WC Facilities
- Great Natural Light
- Premium Fit Out
- Open Layout
2nd Floor, Ste West Suite
| Size | 3,104 sq ft |
| Term | Negotiable |
| Rate | Upon Application |
| Space Use | Office |
| Condition | Partial Fit-Out |
| Available | Now |
The West Wing is provided in Cat A+ condition. It comprises a large open plan work space, 3 meeting rooms and data cabling remaining in situ.
- Use Class: E
- Partially Fit-Out as Standard Office
- Mostly Open Floor Plan Layout
- Space is in Excellent Condition
- Can be combined with additional space(s) for up to 8,192 sq ft of adjacent space
- Central Air and Heating
- Common Parts WC Facilities
- Great Natural Light
- Premium Fit Out
- Open Layout
Property Overview
The property comprises a building of reinforced concrete construction providing accommodation over three floors. The building provides a ground floor retail unit, with office accommodation on the floors above. The property is located on Botley Road with Oxford Railway Station and the A34 interchange situated close by.
- 24 Hour Access
- Controlled Access
- Conferencing Facility
- Food Service
- Property Manager on Site
- Security System
- Wheelchair Accessible
- Reception
- Storage Space
- Car Charging Station
- Air Conditioning
- Fiber Optic Internet
- Smoke Detector
Property Facts
Select Tenants
- Floor
- Tenant Name
- 1st
- Caristo Diagnostics
- Multiple
- Citibase
- GRND
- Johnsons Cars
- Unknown
- Mazda (US)
- 2nd
- Mirada Medical
Presented by
New Barclay House | 234 Botley Rd
Hmm, there seems to have been an error sending your message. Please try again.
Thanks! Your message was sent.




