Log In/Sign up
Your email has been sent.
34-36 Railway Appr 6,772 sq ft Office Property Harrow HA3 5AA £3,250,000 (£479.92/sq ft)



INVESTMENT HIGHLIGHTS
- Fully Fitted Offices
- 0.4 Miles From Harrow & Wealdstone Station (Underground, Overground & National Rail)
- M1 Junction 4 (5.5 Miles)
- 14 Parking Spaces
- A40 Western Avenue (8 Miles)
- Pre App Plans Prepared For 16 Apartments With Two Additional Storeys.
EXECUTIVE SUMMARY
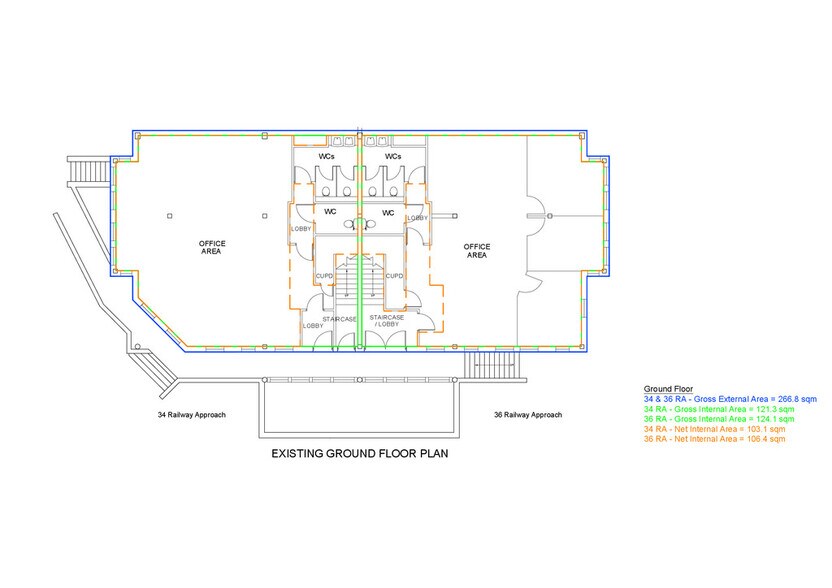
The building comprises of an iconic stand-alone site in a prominent position in Harrow and Wealdstone. The building is split into two with a central staircase interlinking both 34 & 36 Railway Approach. Internally, the building benefits from office accommodation over ground, first and second floors which has been fitted to a high standard throughout. Externally, the building benefits from an underground car park with 14 spaces accessed off of Marlborough Hill.
The building is located in a prime location in Harrow & Wealdstone with Harrow & Wealdstone National Rail and Overground Station within 0.4 miles of the building, which provides links into London Euston in 13 minutes. Harrow and Wealdstone is well connected suburban district known for its transport links. There are number of local and independent retailers within the vicinity. By road, the building is 8 miles from the A40 Western Avenue, 5.5 miles from the M1 motorway (J4 Edgware) and 14 miles from Central London.
Both 34 & 36 Railway Approach, Harrow will be sold with vacant possession.
The existing use of the site falls under Use Class E having been used as an office building for a number of years.
Use Class E now permits for wider potential uses and thus the building may be suitable for a day centre, medical clinic, nursery or retail without a formal change of use.
The building may also suit a number of other potential uses subject to planning such as a Place of Worship, Education, Assisted living /Supported living or Residential Development.
Our clients have had plans prepared to add two additional stories to the existing structure for submission to Harrow Council by way of a Pre-Application. These plans are available upon request.
The title plans for both 34 & 36 Railway Approach are available upon request.
The building is located in a prime location in Harrow & Wealdstone with Harrow & Wealdstone National Rail and Overground Station within 0.4 miles of the building, which provides links into London Euston in 13 minutes. Harrow and Wealdstone is well connected suburban district known for its transport links. There are number of local and independent retailers within the vicinity. By road, the building is 8 miles from the A40 Western Avenue, 5.5 miles from the M1 motorway (J4 Edgware) and 14 miles from Central London.
Both 34 & 36 Railway Approach, Harrow will be sold with vacant possession.
The existing use of the site falls under Use Class E having been used as an office building for a number of years.
Use Class E now permits for wider potential uses and thus the building may be suitable for a day centre, medical clinic, nursery or retail without a formal change of use.
The building may also suit a number of other potential uses subject to planning such as a Place of Worship, Education, Assisted living /Supported living or Residential Development.
Our clients have had plans prepared to add two additional stories to the existing structure for submission to Harrow Council by way of a Pre-Application. These plans are available upon request.
The title plans for both 34 & 36 Railway Approach are available upon request.
PROPERTY FACTS
Sale Type
Owner Occupier
Property Type
Office
Tenure
Freehold
Property Size
6,772 sq ft
Costar Property Class
B
Year Built
1993
Price
£3,250,000
Price per sq ft
£479.92
Tenancy
Multiple
Number of Floors
3
Typical Floor Size
2,257 sq ft
Plot ratio
1.11
Total Plot Size
0.14 ac
Parking
13 Spaces (1.92 Spaces per 1,000 sq ft Leased)
AMENITIES
- Security System
- Air Conditioning
1 1
1 of 20
VIDEOS
MATTERPORT 3D EXTERIOR
MATTERPORT 3D TOUR
PHOTOS
STREET VIEW
STREET
MAP
1 of 1
Presented by
34-36 Railway Appr
Already a member? Log In
Hmm, there seems to have been an error sending your message. Please try again.
Thanks! Your message was sent.
