Log In/Sign up
Your email has been sent.
1 High St 1,435 sq ft 81% Let Retail Property Milton Keynes MK17 8RQ £525,000 (£365.85/sq ft) 7.87% Net Initial Yield


Investment Highlights
- Woburn Sands is a market town located to the South East of Milton Keynes and within the administrative area of the city
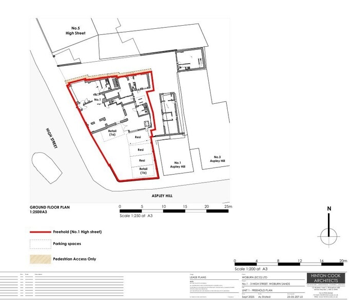
- Freehold retail investment for sale in thriving High Street location.
- The town is accessed by road from North or South by the A5130 and from the A5 and the West by Bow Brickhill Road.
Executive Summary
The freehold interest in the property, subject to the existing occupational leases, is available for sale at a price of £600,000 (+ VAT if applicable). A sale at this price equates to a net initial yield of 7.20%, before purchaser’s costs. Following the rent reviews effective 1st December 2026, based upon RPI being no less than the current rate at the review date, the expected income would increase to £46,725 pa equating to an effective yield of 7.79%.
Property Facts
Sale Type
Investment
Property Type
Retail
Tenure
Freehold
Property Subtype
Shopfront Retail / Residential
Property Size
1,435 sq ft
Costar Property Class
B
Year Built
1985
Price
£525,000
Price per sq ft
£365.85
Yield
7.87%
NOI
£41,318
Occupancy Rate
81%
Tenancy
Multiple
Number of Floors
2
Plot ratio
1.10
Total Plot Size
0.03 ac
Frontage
43 ft on High Street
Amenities
- Storage Space
Space Availability
- Space
- Size
- Space Use
- Position
- Available
Available to let at a rent of £10,000 per annum exclusive
| Space | Size | Space Use | Position | Available |
| 1C | 269 sq ft | Retail | End Cap | Now |
1C
| Size |
| 269 sq ft |
| Space Use |
| Retail |
| Position |
| End Cap |
| Available |
| Now |
1C
| Size | 269 sq ft |
| Space Use | Retail |
| Position | End Cap |
| Available | Now |
Available to let at a rent of £10,000 per annum exclusive
1 1
1 of 3
Videos
Matterport 3D Exterior
Matterport 3D Tour
Photos
Street View
Street
Map
1 of 1
Presented by
1 High St
Already a member? Log In
Hmm, there seems to have been an error sending your message. Please try again.
Thanks! Your message was sent.
Your message has been sent!
Activate your LoopNet account now to track properties, get real-time alerts, save time on future inquiries, and more.
