Log In/Sign up
Your email has been sent.
10 Browns Rd 20,757 sq ft Industrial Property Newtownabbey BT36 4RN £1,200,000 (£57.81/sq ft)



Executive Summary
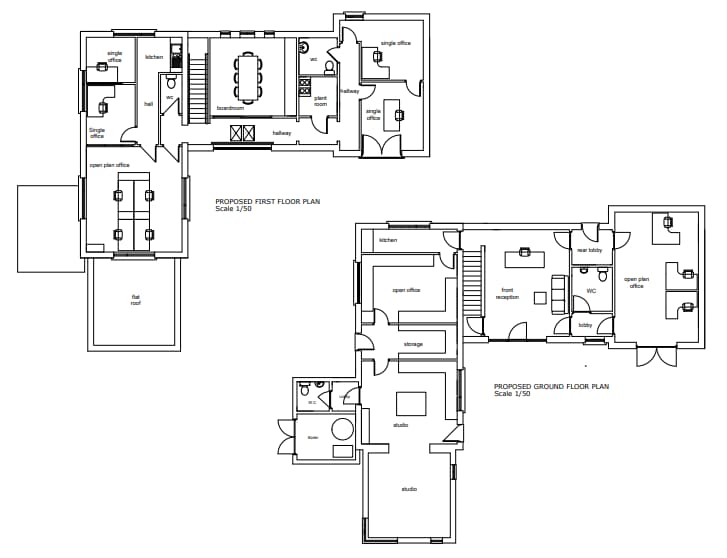
This Property consist of a beautifully appointed 2,780 sq. ft Office Block, 3,500 sq. ft Warehouse, 2,850 sq. ft Covered Shed, 0.6 Acre industrial Yard, a Car park with 17 parking spaces and a large, 2,659 sq detached house. There are two separate driveways on this property; One that leads to the warehouse/offices and the other to the residence.
Property Facts
| Price | £1,200,000 | Property Type | Industrial |
| Price per sq ft | £57.81 | Net Internal Area (NIA) | 20,757 sq ft |
| Sale Type | Owner Occupier | No. Floors | 2 |
| Tenure | Freehold/Long Leasehold | Year Built | 2000 |
| Price | £1,200,000 |
| Price per sq ft | £57.81 |
| Sale Type | Owner Occupier |
| Tenure | Freehold/Long Leasehold |
| Property Type | Industrial |
| Net Internal Area (NIA) | 20,757 sq ft |
| No. Floors | 2 |
| Year Built | 2000 |
1 of 6
Videos
Matterport 3D Exterior
Matterport 3D Tour
Photos
Street View
Street
Map
Presented by
10 Browns Rd
Already a member? Log In
Hmm, there seems to have been an error sending your message. Please try again.
Thanks! Your message was sent.
Your message has been sent!
Activate your LoopNet account now to track properties, get real-time alerts, save time on future inquiries, and more.

