Your email has been sent.
10 Greycaine Rd 18,100 sq ft of Industrial Space Available in Watford WD24 7GG



Highlights
- Two Loading Doors.
- Gas Heating.
- Canopy Loading.
- Three Phase Power.
- Min. eaves 3.5m (11.6ft).
- M1 Motorawy within 1.5 miles.
Features
All Available Space(1)
Display Rent as
- Space
- Size
- Term
- Rate
- Space Use
- Fit-Out
- Available
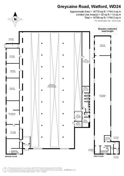
The 6 spaces in this building must be leased together, for a total size of 18,100 sq ft (Contiguous Area):
Warehouse
- Use Class: B2
- Energy Performance Rating - D
- Central Heating System
| Space | Size | Term | Rate | Space Use | Fit-Out | Available |
| Ground - Ancillary, Ground - Loading Canopy, Ground - Offices, Ground - Storage, Ground - Warehouse, 1st Floor - Storage | 18,100 sq ft | Negotiable | £12.00 /sq ft pa £1.00 /sq ft pcm £217,200 pa £18,100 pcm | Industrial | Shell And Core | 30 Days |
Ground - Ancillary, Ground - Loading Canopy, Ground - Offices, Ground - Storage, Ground - Warehouse, 1st Floor - Storage
The 6 spaces in this building must be leased together, for a total size of 18,100 sq ft (Contiguous Area):
| Size |
|
Ground - Ancillary - 672 sq ft
Ground - Loading Canopy - 406 sq ft
Ground - Offices - 881 sq ft
Ground - Storage - 1,730 sq ft
Ground - Warehouse - 11,413 sq ft
1st Floor - Storage - 2,998 sq ft
|
| Term |
| Negotiable |
| Rate |
| £12.00 /sq ft pa £1.00 /sq ft pcm £217,200 pa £18,100 pcm |
| Space Use |
| Industrial |
| Fit-Out |
| Shell And Core |
| Available |
| 30 Days |
Ground - Ancillary, Ground - Loading Canopy, Ground - Offices, Ground - Storage, Ground - Warehouse, 1st Floor - Storage
| Size |
Ground - Ancillary - 672 sq ft
Ground - Loading Canopy - 406 sq ft
Ground - Offices - 881 sq ft
Ground - Storage - 1,730 sq ft
Ground - Warehouse - 11,413 sq ft
1st Floor - Storage - 2,998 sq ft
|
| Term | Negotiable |
| Rate | £12.00 /sq ft pa |
| Space Use | Industrial |
| Fit-Out | Shell And Core |
| Available | 30 Days |
Warehouse
- Use Class: B2
- Central Heating System
- Energy Performance Rating - D
Property Overview
Situated in North Watford on the established Greycaine Trading Estate within 1.5 miles of Junction 5 of the M1 Motorway and thereby to M25 (Junctions 19, 20 and 21) with ready access to Luton, Heathrow, Stansted and Gatwick Airports. Railway access is available at North Watford Station a short walk away. This provides a connection between Watford Junction (from there to Euston in 18 minutes) and St Albans. Nearby occupiers include Booker Cash & Carry, KD Wholesale, Roy Nut Foods, Donya Foods, Décor Tiles, Herts Traffic Management, National Tyres and Gap Tool Hire.
Warehouse Facility Facts
Select Tenants
- Tenant Name
- Industry
- AFS STRUCTURAL SOLUTIONS (UK) LIMITED
- Manufacturing
- Elmcroft Services
- Health Care and Social Assistance
- Fluid Transfer Systems Ltd
- Manufacturing
- Signet
- Manufacturing
- Trailparts
- Manufacturing
Presented by
10 Greycaine Rd
Hmm, there seems to have been an error sending your message. Please try again.
Thanks! Your message was sent.
