Log In/Sign up
Your email has been sent.
161 Hob Moor Rd 12,668 sq ft Leisure Building Offered at £1,250,000 in Birmingham B10 9BS



Investment Highlights
- Bowling Green
- Former caretaker's flat
- Substantial function room
Executive Summary
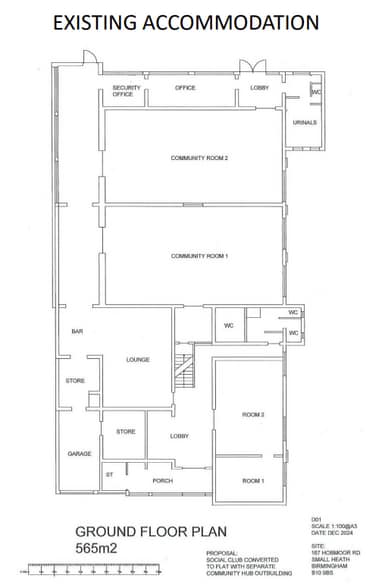
The subject premises comprises a substantial, detached, 3 storey structure, until recently, utilised on the basis of a working men’s club. The property is available for sale on a freehold basis, with the asking price at £1,250,000.
Property Facts
| Price | £1,250,000 | Costar Property Class | C |
| Price per sq ft | £98.67 | Total Plot Size | 0.55 ac |
| Sale Type | Investment or Owner Occupier | Property Size | 12,668 sq ft |
| Tenure | Freehold | No. Floors | 3 |
| Property Type | Leisure | Year Built | 1900 |
| Price | £1,250,000 |
| Price per sq ft | £98.67 |
| Sale Type | Investment or Owner Occupier |
| Tenure | Freehold |
| Property Type | Leisure |
| Costar Property Class | C |
| Total Plot Size | 0.55 ac |
| Property Size | 12,668 sq ft |
| No. Floors | 3 |
| Year Built | 1900 |
Amenities
- Lounge
- Smoke Detector
1 1
1 of 6
Videos
Matterport 3D Exterior
Matterport 3D Tour
Photos
Street View
Street
Map
1 of 1
Presented by
161 Hob Moor Rd
Already a member? Log In
Hmm, there seems to have been an error sending your message. Please try again.
Thanks! Your message was sent.
