Log In/Sign up
Your email has been sent.
Investment Highlights
- The surrounding area has seen significant investment
- This property benefits greatly from it’s proximity to Mueller Master-planned development
Executive Summary
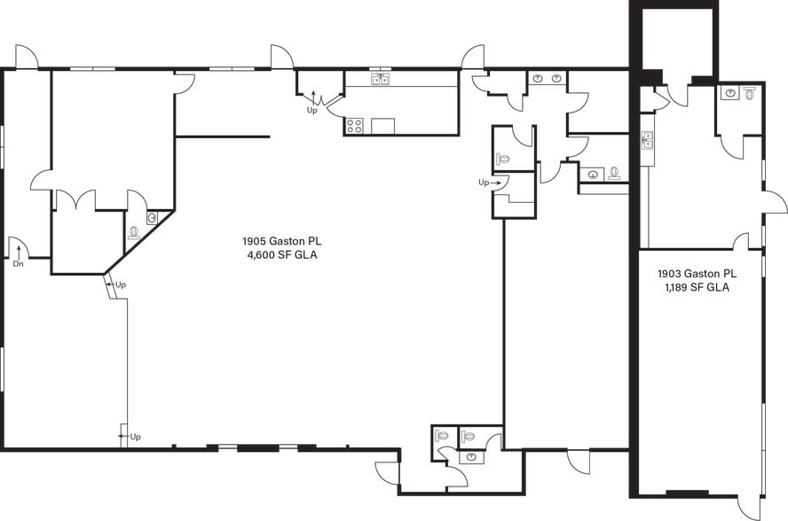
This single-story building, located in the Windsor Park neighborhood, is within the East Central Austin Opportunity Zone. Currently leased exclusively to a church, which occupies both spaces under a single lease expiring at the end of the year. The landlord retains the right to terminate the lease with 90 days’ notice, providing the new owner flexibility to either negotiate a long-term agreement or reposition the asset entirely. Comprising approximately 5,800 square feet and situated on just under one acre of land, this property represents an ideal value-add retail opportunity or a redevelopment site.
Property Facts
| Price | £1,390,885 | Number of Properties | 2 |
| Price psf | £240.26 / sq ft | Individually For Sale | 0 |
| Sale Condition | Redevelopment Project | Total Property Size | 5,789 sq ft |
| Sale Type | Investment | Total Land Area | 0.76 ac |
| Status | Active |
| Price | £1,390,885 |
| Price psf | £240.26 / sq ft |
| Sale Condition | Redevelopment Project |
| Sale Type | Investment |
| Status | Active |
| Number of Properties | 2 |
| Individually For Sale | 0 |
| Total Property Size | 5,789 sq ft |
| Total Land Area | 0.76 ac |
Properties
| Property Name / Address | Property Type | Size | Year Built | Individual Price |
|---|---|---|---|---|
| 1905 Gaston Place Dr, Austin, TX 78723 | Retail | 4,600 sq ft | 1972 | - |
| 1903 Gaston Place Dr, Austin, TX 78723 | Retail | 1,189 sq ft | 1966 | - |
1 1
1 of 9
Videos
Matterport 3D Exterior
Matterport 3D Tour
Photos
Street View
Street
Map
1 of 1
Presented by
1903-1905 Gaston Place
Already a member? Log In
Hmm, there seems to have been an error sending your message. Please try again.
Thanks! Your message was sent.



