Your email has been sent.
Investment Highlights
- REDUCED PRICE - £675,000
- Suitable for conversion, Subject to Planning
- Close proximity to City Centre Bus Station
- Up to 30 onsite parking spaces
- City Centre Location
- Available to lease as a whole or in part
Executive Summary
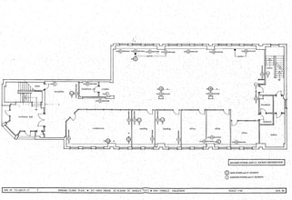
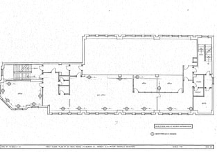
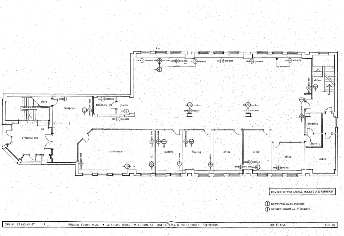
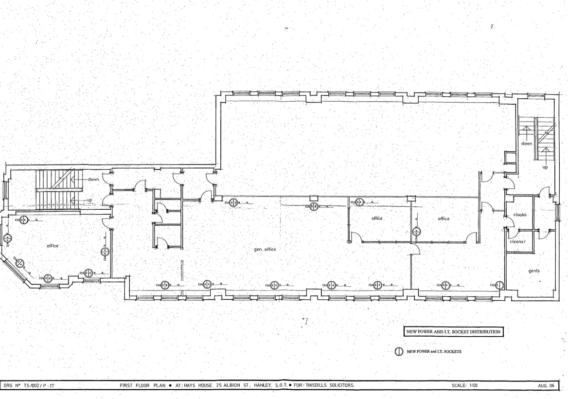
Internally, there is a reception area with a mixture of open plan and partitioned offices throughout. There is a central staircase at the front and rear that provide access to the upper floors and toilets. The property benefits from air conditioning, suspended ceilings throughout and a mixture of recessed lighting.
The lower ground floor provides storage and kitchen facilities.
Externally, the premises benefit from secure onsite parking for up to 30 vehicles.
The premises are located on the corner of Albion Street and Bagnall Street in Hanley, Stoke on Trent’s city centre.
The A5008 ring road provides access to the further road network into the City Centre and towns of Stoke on Trent with the A500 located approximately 1.6 miles from the property. The A500 provides links to Newcastle under Lyme to the North along with Junction 16 of the M6 approx. 5 miles to the South.
The property is located on the local bus route with Hanley Bus Station within walking distance. The Potteries Museum and the recently built mixed use Smithfield development are situated nearby. Smithfield offering a Hilton Hotel, residential apartments and office occupiers including, Davies Group, Staffordshire Police, NHS and the Home Office.
Property Facts
Amenities
- 24 Hour Access
- Reception
- Smoke Detector
Space Availability
- Space
- Size
- Space Use
- Fit-Out
- Available
The property comprises of a three storey, brick-built office building with parking to the rear.Internally, there is a reception area with a mixture of open plan and partitioned offices throughout. There is a central staircase at the front and rear that provide access to the upper floors and toilets. The property benefits from air conditioning, suspended ceilings throughout and a mixture of recessed lighting.The lower ground floor provides storage and kitchen facilities.Externally, the premises benefit from secure onsite parking for up to 30 vehicles.The premises are located on the corner of Albion Street and Bagnall Street in Hanley, Stoke on Trent’s city centre.The A5008 ring road provides access to the further road network into the City Centre and towns of Stoke on Trent with the A500 located approximately 1.6 miles from the property. The A500 provides links to Newcastle under Lyme to the North along with Junction 16 of the M6 approx. 5 miles to the South.The property is located on the local bus route with Hanley Bus Station within walking distance. The Potteries Museum and the recently built mixed use Smithfield development are situated nearby. Smithfield offering a Hilton Hotel, residential apartments and office occupiers including, Davies Group, Staffordshire Police, NHS and the Home Office.
The property comprises of a three storey, brick-built office building with parking to the rear.Internally, there is a reception area with a mixture of open plan and partitioned offices throughout. There is a central staircase at the front and rear that provide access to the upper floors and toilets. The property benefits from air conditioning, suspended ceilings throughout and a mixture of recessed lighting.The lower ground floor provides storage and kitchen facilities.Externally, the premises benefit from secure onsite parking for up to 30 vehicles.The premises are located on the corner of Albion Street and Bagnall Street in Hanley, Stoke on Trent’s city centre.The A5008 ring road provides access to the further road network into the City Centre and towns of Stoke on Trent with the A500 located approximately 1.6 miles from the property. The A500 provides links to Newcastle under Lyme to the North along with Junction 16 of the M6 approx. 5 miles to the South.The property is located on the local bus route with Hanley Bus Station within walking distance. The Potteries Museum and the recently built mixed use Smithfield development are situated nearby. Smithfield offering a Hilton Hotel, residential apartments and office occupiers including, Davies Group, Staffordshire Police, NHS and the Home Office.
The property comprises of a three storey, brick-built office building with parking to the rear.Internally, there is a reception area with a mixture of open plan and partitioned offices throughout. There is a central staircase at the front and rear that provide access to the upper floors and toilets. The property benefits from air conditioning, suspended ceilings throughout and a mixture of recessed lighting.The lower ground floor provides storage and kitchen facilities.Externally, the premises benefit from secure onsite parking for up to 30 vehicles.The premises are located on the corner of Albion Street and Bagnall Street in Hanley, Stoke on Trent’s city centre.The A5008 ring road provides access to the further road network into the City Centre and towns of Stoke on Trent with the A500 located approximately 1.6 miles from the property. The A500 provides links to Newcastle under Lyme to the North along with Junction 16 of the M6 approx. 5 miles to the South.The property is located on the local bus route with Hanley Bus Station within walking distance. The Potteries Museum and the recently built mixed use Smithfield development are situated nearby. Smithfield offering a Hilton Hotel, residential apartments and office occupiers including, Davies Group, Staffordshire Police, NHS and the Home Office.
The property comprises of a three storey, brick-built office building with parking to the rear.Internally, there is a reception area with a mixture of open plan and partitioned offices throughout. There is a central staircase at the front and rear that provide access to the upper floors and toilets. The property benefits from air conditioning, suspended ceilings throughout and a mixture of recessed lighting.The lower ground floor provides storage and kitchen facilities.Externally, the premises benefit from secure onsite parking for up to 30 vehicles.The premises are located on the corner of Albion Street and Bagnall Street in Hanley, Stoke on Trent’s city centre.The A5008 ring road provides access to the further road network into the City Centre and towns of Stoke on Trent with the A500 located approximately 1.6 miles from the property. The A500 provides links to Newcastle under Lyme to the North along with Junction 16 of the M6 approx. 5 miles to the South.The property is located on the local bus route with Hanley Bus Station within walking distance. The Potteries Museum and the recently built mixed use Smithfield development are situated nearby. Smithfield offering a Hilton Hotel, residential apartments and office occupiers including, Davies Group, Staffordshire Police, NHS and the Home Office.
| Space | Size | Space Use | Fit-Out | Available |
| Lower Level | 1,910 sq ft | Office | Full Fit-Out | 30 Days |
| Ground | 4,024 sq ft | Office | Full Fit-Out | 30 Days |
| 1st Floor | 3,961 sq ft | Office | Full Fit-Out | 30 Days |
| 2nd Floor | 786 sq ft | Office | Full Fit-Out | 30 Days |
Lower Level
| Size |
| 1,910 sq ft |
| Space Use |
| Office |
| Fit-Out |
| Full Fit-Out |
| Available |
| 30 Days |
Ground
| Size |
| 4,024 sq ft |
| Space Use |
| Office |
| Fit-Out |
| Full Fit-Out |
| Available |
| 30 Days |
1st Floor
| Size |
| 3,961 sq ft |
| Space Use |
| Office |
| Fit-Out |
| Full Fit-Out |
| Available |
| 30 Days |
2nd Floor
| Size |
| 786 sq ft |
| Space Use |
| Office |
| Fit-Out |
| Full Fit-Out |
| Available |
| 30 Days |
Lower Level
| Size | 1,910 sq ft |
| Space Use | Office |
| Fit-Out | Full Fit-Out |
| Available | 30 Days |
The property comprises of a three storey, brick-built office building with parking to the rear.Internally, there is a reception area with a mixture of open plan and partitioned offices throughout. There is a central staircase at the front and rear that provide access to the upper floors and toilets. The property benefits from air conditioning, suspended ceilings throughout and a mixture of recessed lighting.The lower ground floor provides storage and kitchen facilities.Externally, the premises benefit from secure onsite parking for up to 30 vehicles.The premises are located on the corner of Albion Street and Bagnall Street in Hanley, Stoke on Trent’s city centre.The A5008 ring road provides access to the further road network into the City Centre and towns of Stoke on Trent with the A500 located approximately 1.6 miles from the property. The A500 provides links to Newcastle under Lyme to the North along with Junction 16 of the M6 approx. 5 miles to the South.The property is located on the local bus route with Hanley Bus Station within walking distance. The Potteries Museum and the recently built mixed use Smithfield development are situated nearby. Smithfield offering a Hilton Hotel, residential apartments and office occupiers including, Davies Group, Staffordshire Police, NHS and the Home Office.
Ground
| Size | 4,024 sq ft |
| Space Use | Office |
| Fit-Out | Full Fit-Out |
| Available | 30 Days |
The property comprises of a three storey, brick-built office building with parking to the rear.Internally, there is a reception area with a mixture of open plan and partitioned offices throughout. There is a central staircase at the front and rear that provide access to the upper floors and toilets. The property benefits from air conditioning, suspended ceilings throughout and a mixture of recessed lighting.The lower ground floor provides storage and kitchen facilities.Externally, the premises benefit from secure onsite parking for up to 30 vehicles.The premises are located on the corner of Albion Street and Bagnall Street in Hanley, Stoke on Trent’s city centre.The A5008 ring road provides access to the further road network into the City Centre and towns of Stoke on Trent with the A500 located approximately 1.6 miles from the property. The A500 provides links to Newcastle under Lyme to the North along with Junction 16 of the M6 approx. 5 miles to the South.The property is located on the local bus route with Hanley Bus Station within walking distance. The Potteries Museum and the recently built mixed use Smithfield development are situated nearby. Smithfield offering a Hilton Hotel, residential apartments and office occupiers including, Davies Group, Staffordshire Police, NHS and the Home Office.
1st Floor
| Size | 3,961 sq ft |
| Space Use | Office |
| Fit-Out | Full Fit-Out |
| Available | 30 Days |
The property comprises of a three storey, brick-built office building with parking to the rear.Internally, there is a reception area with a mixture of open plan and partitioned offices throughout. There is a central staircase at the front and rear that provide access to the upper floors and toilets. The property benefits from air conditioning, suspended ceilings throughout and a mixture of recessed lighting.The lower ground floor provides storage and kitchen facilities.Externally, the premises benefit from secure onsite parking for up to 30 vehicles.The premises are located on the corner of Albion Street and Bagnall Street in Hanley, Stoke on Trent’s city centre.The A5008 ring road provides access to the further road network into the City Centre and towns of Stoke on Trent with the A500 located approximately 1.6 miles from the property. The A500 provides links to Newcastle under Lyme to the North along with Junction 16 of the M6 approx. 5 miles to the South.The property is located on the local bus route with Hanley Bus Station within walking distance. The Potteries Museum and the recently built mixed use Smithfield development are situated nearby. Smithfield offering a Hilton Hotel, residential apartments and office occupiers including, Davies Group, Staffordshire Police, NHS and the Home Office.
2nd Floor
| Size | 786 sq ft |
| Space Use | Office |
| Fit-Out | Full Fit-Out |
| Available | 30 Days |
The property comprises of a three storey, brick-built office building with parking to the rear.Internally, there is a reception area with a mixture of open plan and partitioned offices throughout. There is a central staircase at the front and rear that provide access to the upper floors and toilets. The property benefits from air conditioning, suspended ceilings throughout and a mixture of recessed lighting.The lower ground floor provides storage and kitchen facilities.Externally, the premises benefit from secure onsite parking for up to 30 vehicles.The premises are located on the corner of Albion Street and Bagnall Street in Hanley, Stoke on Trent’s city centre.The A5008 ring road provides access to the further road network into the City Centre and towns of Stoke on Trent with the A500 located approximately 1.6 miles from the property. The A500 provides links to Newcastle under Lyme to the North along with Junction 16 of the M6 approx. 5 miles to the South.The property is located on the local bus route with Hanley Bus Station within walking distance. The Potteries Museum and the recently built mixed use Smithfield development are situated nearby. Smithfield offering a Hilton Hotel, residential apartments and office occupiers including, Davies Group, Staffordshire Police, NHS and the Home Office.
Presented by
25 Albion St
Hmm, there seems to have been an error sending your message. Please try again.
Thanks! Your message was sent.















