This Property is no longer advertised on LoopNet.co.uk.

3 Leigh Rd
Chichester PO19 8TT
Kewell Business Park · Property To Rent

Highlights

  • Large warehouse unit
  • Allocated parking for 6-7 vehicles
  • Chichester Train Station (Southern Railway) only 10 mins walk (650m)
  • Accessed from the secure gated rear yard from Leigh Road
  • Secure Site with Palisade Fencing & Sliding Gate

Property Overview

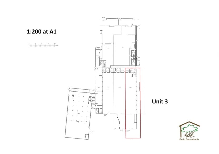
The property, recently acquired by new ownership, comprises of a large warehouse unit front terminus road with access to the rear from Leigh Road. Split into a multiple of Units, Unit 3 is accessed from the secure gated rear yard, via an electric roller shutter door. Internally the unit benefits from painted concrete flooring, 3 Phase Electricity, LED strip lighting, rear office, kitchen & W/C. Externally the unit has an area allocated of parking for 6-7 vehicles when double parking, with loading/unloading available from a shared yard. Secure Site with Palisade Fencing & Sliding Gate. Furthermore the unit has the benefit of a side unit totalling 27m long x 3m (80 sqm). Chichester is an attractive cathedral city, and the county town of West Sussex. The city has excellent road communications being situated on the A27 dual-carriageway, which runs east to Worthing and Brighton and west to Portsmouth and Southampton where it connects with A3(M) M27 and M3 motorways. Terminus Road is an established industrial/ trade location benefitting from immediate access to the A27. Nearby occupiers include Howdens, Jewsons, Formula One Autocare, ATS, Harwoods Jaguar/Aston Martin. Access to Unit 3 is from Leigh Road at the Eastern end of Terminus Road.

Property Facts

Property Type Industrial
Property Subtype Warehouse
Net Internal Area (NIA) 4,549 sq ft
Year Built 1950

Features and Amenities

  • Security System
  • Roller Shutters
  • Listing ID: 38860259

  • Date on Market: 23/12/2025

  • Last Updated:

  • Address: 3 Leigh Rd, Chichester PO19 8TT

Link copied
Your LoopNet account has been created!

Please Share Your Feedback

We welcome any feedback on how we can improve LoopNet to better serve your needs.
X
{{ getErrorText(feedbackForm.starRating, "rating") }}
255 character limit ({{ remainingChars() }} charactercharacters remainingover)
{{ getErrorText(feedbackForm.msg, "rating") }}
{{ getErrorText(feedbackForm.fname, "first name") }}
{{ getErrorText(feedbackForm.lname, "last name") }}
{{ getErrorText(feedbackForm.phone, "phone number") }}
{{ getErrorText(feedbackForm.phonex, "phone extension") }}
{{ getErrorText(feedbackForm.email, "email address") }}