Your email has been sent.
Highlights
- Has undergone a multi-million pound refurbishment
- Walking distance to Rail Station and on a bus route
- Excellent on-site amenities including a fully operated gym and coffee shop
- On-site car parking and bicycle storage available
All Available Spaces(11)
Display Rent as
- Space
- Size
- Term
- Rate
- Space Use
- Fit-Out
- Available
Eastgate House is a centrally located office on the edge of a thriving capital city. It is situated on the eastern side of Cardiff Centre on Newport Road, a popular office location. The property is a short walk from the main shopping area of Queen Street and Capital Shopping Centre, St Davids and the many arcades that adorn the City.
- Use Class: E
- WiFi included
- Flexible lease terms
- Furnished
The available space comprises of eighth office accommodation. A new lease available on terms to be agreed.
- Use Class: B1
- Mostly Open Floor Plan Layout
- Central Heating System
- Fully Carpeted
- Recessed Lighting
- Perimeter Trunking
- Fully Fit-Out as Standard Office
- Can be combined with additional space(s) for up to 31,906 sq ft of adjacent space
- Lift Access
- Suspended Ceilings
- Energy Performance Rating - C
- lots of natural light
Eastgate House has recently undergone a multi-million pound refurbishment. The building provides high quality offices incorporating the following: • Recessed LED Lighting. • Perimeter Trunking. • Suspended Ceilings. • Carpeted Floors. • Central Heating. • Manned Reception. • 3 Passenger Lifts. • New Double Glazed Windows throughout. • External decoration which has transformed the building.
- Use Class: E
- Central Heating System
- Fully Carpeted
- Recessed Lighting
- New Double Glazed Windows throughout
- Perimeter Trunking
- Can be combined with additional space(s) for up to 31,906 sq ft of adjacent space
- Reception Area
- Suspended Ceilings
- Energy Performance Rating - C
- 3 Passenger Lifts
Eastgate House has recently undergone a multi-million pound refurbishment. The building provides high quality offices incorporating the following: • Recessed LED Lighting. • Perimeter Trunking. • Suspended Ceilings. • Carpeted Floors. • Central Heating. • Manned Reception. • 3 Passenger Lifts. • New Double Glazed Windows throughout. • External decoration which has transformed the building.
- Use Class: E
- Central Heating System
- Fully Carpeted
- Recessed Lighting
- New Double Glazed Windows throughout
- Perimeter Trunking
- Can be combined with additional space(s) for up to 31,906 sq ft of adjacent space
- Reception Area
- Suspended Ceilings
- Energy Performance Rating - C
- 3 Passenger Lifts
Eastgate House has recently undergone a multi-million pound refurbishment. The building provides high quality offices incorporating the following: • Recessed LED Lighting. • Perimeter Trunking. • Suspended Ceilings. • Carpeted Floors. • Central Heating. • Manned Reception. • 3 Passenger Lifts. • New Double Glazed Windows throughout. • External decoration which has transformed the building.
- Use Class: E
- Central Heating System
- Fully Carpeted
- Recessed Lighting
- New Double Glazed Windows throughout
- Perimeter Trunking
- Can be combined with additional space(s) for up to 31,906 sq ft of adjacent space
- Reception Area
- Suspended Ceilings
- Energy Performance Rating - C
- 3 Passenger Lifts
Eastgate House has recently undergone a multi-million pound refurbishment. The building provides high quality offices incorporating the following: • Recessed LED Lighting. • Perimeter Trunking. • Suspended Ceilings. • Carpeted Floors. • Central Heating. • Manned Reception. • 3 Passenger Lifts. • New Double Glazed Windows throughout. • External decoration which has transformed the building.
- Use Class: E
- Central Heating System
- Fully Carpeted
- Recessed Lighting
- New Double Glazed Windows throughout
- Perimeter Trunking
- Can be combined with additional space(s) for up to 31,906 sq ft of adjacent space
- Reception Area
- Suspended Ceilings
- Energy Performance Rating - C
- 3 Passenger Lifts
The available space comprises of eighth office accommodation. A new lease available on terms to be agreed.
- Use Class: B1
- Mostly Open Floor Plan Layout
- Central Heating System
- Fully Carpeted
- Recessed Lighting
- Perimeter Trunking
- Fully Fit-Out as Standard Office
- Can be combined with additional space(s) for up to 31,906 sq ft of adjacent space
- Lift Access
- Suspended Ceilings
- Energy Performance Rating - C
- lots of natural light
Eastgate House has recently undergone a multi-million pound refurbishment. The building provides high quality offices incorporating the following: • Recessed LED Lighting. • Perimeter Trunking. • Suspended Ceilings. • Carpeted Floors. • Central Heating. • Manned Reception. • 3 Passenger Lifts. • New Double Glazed Windows throughout. • External decoration which has transformed the building.
- Use Class: E
- Central Heating System
- Fully Carpeted
- Recessed Lighting
- New Double Glazed Windows throughout
- Perimeter Trunking
- Can be combined with additional space(s) for up to 31,906 sq ft of adjacent space
- Reception Area
- Suspended Ceilings
- Energy Performance Rating - C
- 3 Passenger Lifts
Eastgate House has recently undergone a multi-million pound refurbishment. The building provides high quality offices incorporating the following: • Recessed LED Lighting. • Perimeter Trunking. • Suspended Ceilings. • Carpeted Floors. • Central Heating. • Manned Reception. • 3 Passenger Lifts. • New Double Glazed Windows throughout. • External decoration which has transformed the building.
- Use Class: E
- Central Heating System
- Fully Carpeted
- Recessed Lighting
- New Double Glazed Windows throughout
- Perimeter Trunking
- Can be combined with additional space(s) for up to 15,931 sq ft of adjacent space
- Reception Area
- Suspended Ceilings
- Energy Performance Rating - C
- 3 Passenger Lifts
Eastgate House has recently undergone a multi-million pound refurbishment. The building provides high quality offices incorporating the following: • Recessed LED Lighting. • Perimeter Trunking. • Suspended Ceilings. • Carpeted Floors. • Central Heating. • Manned Reception. • 3 Passenger Lifts. • New Double Glazed Windows throughout. • External decoration which has transformed the building.
- Use Class: E
- Central Heating System
- Fully Carpeted
- Recessed Lighting
- New Double Glazed Windows throughout
- Perimeter Trunking
- Can be combined with additional space(s) for up to 15,931 sq ft of adjacent space
- Reception Area
- Suspended Ceilings
- Energy Performance Rating - C
- 3 Passenger Lifts
Eastgate House has recently undergone a multi-million pound refurbishment. The building provides high quality offices incorporating the following: • Recessed LED Lighting. • Perimeter Trunking. • Suspended Ceilings. • Carpeted Floors. • Central Heating. • Manned Reception. • 3 Passenger Lifts. • New Double Glazed Windows throughout. • External decoration which has transformed the building.
- Use Class: E
- Central Heating System
- Fully Carpeted
- Recessed Lighting
- New Double Glazed Windows throughout
- Perimeter Trunking
- Can be combined with additional space(s) for up to 15,931 sq ft of adjacent space
- Reception Area
- Suspended Ceilings
- Energy Performance Rating - C
- 3 Passenger Lifts
| Space | Size | Term | Rate | Space Use | Fit-Out | Available |
| 1st Floor | 7,397 sq ft | Negotiable | £13.00 /sq ft pa £1.08 /sq ft pcm £96,161 pa £8,013 pcm | Office | - | Now |
| 3rd Floor, Ste East | 4,455 sq ft | Negotiable | £13.00 /sq ft pa £1.08 /sq ft pcm £57,915 pa £4,826 pcm | Office | Full Fit-Out | Now |
| 4th Floor | 5,248 sq ft | Negotiable | £13.00 /sq ft pa £1.08 /sq ft pcm £68,224 pa £5,685 pcm | Office | - | Now |
| 5th Floor | 5,202 sq ft | Negotiable | £13.00 /sq ft pa £1.08 /sq ft pcm £67,626 pa £5,636 pcm | Office | - | Now |
| 6th Floor | 5,325 sq ft | Negotiable | £13.00 /sq ft pa £1.08 /sq ft pcm £69,225 pa £5,769 pcm | Office | - | Now |
| 7th Floor | 5,325 sq ft | Negotiable | £13.00 /sq ft pa £1.08 /sq ft pcm £69,225 pa £5,769 pcm | Office | - | Now |
| 8th Floor, Ste 3 | 1,015 sq ft | Negotiable | £13.00 /sq ft pa £1.08 /sq ft pcm £13,195 pa £1,100 pcm | Office | Full Fit-Out | Now |
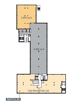
| 9th Floor, Ste Central | 5,336 sq ft | Negotiable | £13.00 /sq ft pa £1.08 /sq ft pcm £69,368 pa £5,781 pcm | Office | - | Now |
| 11th Floor | 5,322 sq ft | Negotiable | £13.00 /sq ft pa £1.08 /sq ft pcm £69,186 pa £5,766 pcm | Office | - | Now |
| 12th Floor | 5,309 sq ft | Negotiable | £13.00 /sq ft pa £1.08 /sq ft pcm £69,017 pa £5,751 pcm | Office | - | Now |
| 13th Floor | 5,300 sq ft | Negotiable | £13.00 /sq ft pa £1.08 /sq ft pcm £68,900 pa £5,742 pcm | Office | - | Now |
1st Floor
| Size |
| 7,397 sq ft |
| Term |
| Negotiable |
| Rate |
| £13.00 /sq ft pa £1.08 /sq ft pcm £96,161 pa £8,013 pcm |
| Space Use |
| Office |
| Fit-Out |
| - |
| Available |
| Now |
3rd Floor, Ste East
| Size |
| 4,455 sq ft |
| Term |
| Negotiable |
| Rate |
| £13.00 /sq ft pa £1.08 /sq ft pcm £57,915 pa £4,826 pcm |
| Space Use |
| Office |
| Fit-Out |
| Full Fit-Out |
| Available |
| Now |
4th Floor
| Size |
| 5,248 sq ft |
| Term |
| Negotiable |
| Rate |
| £13.00 /sq ft pa £1.08 /sq ft pcm £68,224 pa £5,685 pcm |
| Space Use |
| Office |
| Fit-Out |
| - |
| Available |
| Now |
5th Floor
| Size |
| 5,202 sq ft |
| Term |
| Negotiable |
| Rate |
| £13.00 /sq ft pa £1.08 /sq ft pcm £67,626 pa £5,636 pcm |
| Space Use |
| Office |
| Fit-Out |
| - |
| Available |
| Now |
6th Floor
| Size |
| 5,325 sq ft |
| Term |
| Negotiable |
| Rate |
| £13.00 /sq ft pa £1.08 /sq ft pcm £69,225 pa £5,769 pcm |
| Space Use |
| Office |
| Fit-Out |
| - |
| Available |
| Now |
7th Floor
| Size |
| 5,325 sq ft |
| Term |
| Negotiable |
| Rate |
| £13.00 /sq ft pa £1.08 /sq ft pcm £69,225 pa £5,769 pcm |
| Space Use |
| Office |
| Fit-Out |
| - |
| Available |
| Now |
8th Floor, Ste 3
| Size |
| 1,015 sq ft |
| Term |
| Negotiable |
| Rate |
| £13.00 /sq ft pa £1.08 /sq ft pcm £13,195 pa £1,100 pcm |
| Space Use |
| Office |
| Fit-Out |
| Full Fit-Out |
| Available |
| Now |
9th Floor, Ste Central
| Size |
| 5,336 sq ft |
| Term |
| Negotiable |
| Rate |
| £13.00 /sq ft pa £1.08 /sq ft pcm £69,368 pa £5,781 pcm |
| Space Use |
| Office |
| Fit-Out |
| - |
| Available |
| Now |
11th Floor
| Size |
| 5,322 sq ft |
| Term |
| Negotiable |
| Rate |
| £13.00 /sq ft pa £1.08 /sq ft pcm £69,186 pa £5,766 pcm |
| Space Use |
| Office |
| Fit-Out |
| - |
| Available |
| Now |
12th Floor
| Size |
| 5,309 sq ft |
| Term |
| Negotiable |
| Rate |
| £13.00 /sq ft pa £1.08 /sq ft pcm £69,017 pa £5,751 pcm |
| Space Use |
| Office |
| Fit-Out |
| - |
| Available |
| Now |
13th Floor
| Size |
| 5,300 sq ft |
| Term |
| Negotiable |
| Rate |
| £13.00 /sq ft pa £1.08 /sq ft pcm £68,900 pa £5,742 pcm |
| Space Use |
| Office |
| Fit-Out |
| - |
| Available |
| Now |
1st Floor
| Size | 7,397 sq ft |
| Term | Negotiable |
| Rate | £13.00 /sq ft pa |
| Space Use | Office |
| Fit-Out | - |
| Available | Now |
Eastgate House is a centrally located office on the edge of a thriving capital city. It is situated on the eastern side of Cardiff Centre on Newport Road, a popular office location. The property is a short walk from the main shopping area of Queen Street and Capital Shopping Centre, St Davids and the many arcades that adorn the City.
- Use Class: E
- Flexible lease terms
- WiFi included
- Furnished
3rd Floor, Ste East
| Size | 4,455 sq ft |
| Term | Negotiable |
| Rate | £13.00 /sq ft pa |
| Space Use | Office |
| Fit-Out | Full Fit-Out |
| Available | Now |
The available space comprises of eighth office accommodation. A new lease available on terms to be agreed.
- Use Class: B1
- Fully Fit-Out as Standard Office
- Mostly Open Floor Plan Layout
- Can be combined with additional space(s) for up to 31,906 sq ft of adjacent space
- Central Heating System
- Lift Access
- Fully Carpeted
- Suspended Ceilings
- Recessed Lighting
- Energy Performance Rating - C
- Perimeter Trunking
- lots of natural light
4th Floor
| Size | 5,248 sq ft |
| Term | Negotiable |
| Rate | £13.00 /sq ft pa |
| Space Use | Office |
| Fit-Out | - |
| Available | Now |
Eastgate House has recently undergone a multi-million pound refurbishment. The building provides high quality offices incorporating the following: • Recessed LED Lighting. • Perimeter Trunking. • Suspended Ceilings. • Carpeted Floors. • Central Heating. • Manned Reception. • 3 Passenger Lifts. • New Double Glazed Windows throughout. • External decoration which has transformed the building.
- Use Class: E
- Can be combined with additional space(s) for up to 31,906 sq ft of adjacent space
- Central Heating System
- Reception Area
- Fully Carpeted
- Suspended Ceilings
- Recessed Lighting
- Energy Performance Rating - C
- New Double Glazed Windows throughout
- 3 Passenger Lifts
- Perimeter Trunking
5th Floor
| Size | 5,202 sq ft |
| Term | Negotiable |
| Rate | £13.00 /sq ft pa |
| Space Use | Office |
| Fit-Out | - |
| Available | Now |
Eastgate House has recently undergone a multi-million pound refurbishment. The building provides high quality offices incorporating the following: • Recessed LED Lighting. • Perimeter Trunking. • Suspended Ceilings. • Carpeted Floors. • Central Heating. • Manned Reception. • 3 Passenger Lifts. • New Double Glazed Windows throughout. • External decoration which has transformed the building.
- Use Class: E
- Can be combined with additional space(s) for up to 31,906 sq ft of adjacent space
- Central Heating System
- Reception Area
- Fully Carpeted
- Suspended Ceilings
- Recessed Lighting
- Energy Performance Rating - C
- New Double Glazed Windows throughout
- 3 Passenger Lifts
- Perimeter Trunking
6th Floor
| Size | 5,325 sq ft |
| Term | Negotiable |
| Rate | £13.00 /sq ft pa |
| Space Use | Office |
| Fit-Out | - |
| Available | Now |
Eastgate House has recently undergone a multi-million pound refurbishment. The building provides high quality offices incorporating the following: • Recessed LED Lighting. • Perimeter Trunking. • Suspended Ceilings. • Carpeted Floors. • Central Heating. • Manned Reception. • 3 Passenger Lifts. • New Double Glazed Windows throughout. • External decoration which has transformed the building.
- Use Class: E
- Can be combined with additional space(s) for up to 31,906 sq ft of adjacent space
- Central Heating System
- Reception Area
- Fully Carpeted
- Suspended Ceilings
- Recessed Lighting
- Energy Performance Rating - C
- New Double Glazed Windows throughout
- 3 Passenger Lifts
- Perimeter Trunking
7th Floor
| Size | 5,325 sq ft |
| Term | Negotiable |
| Rate | £13.00 /sq ft pa |
| Space Use | Office |
| Fit-Out | - |
| Available | Now |
Eastgate House has recently undergone a multi-million pound refurbishment. The building provides high quality offices incorporating the following: • Recessed LED Lighting. • Perimeter Trunking. • Suspended Ceilings. • Carpeted Floors. • Central Heating. • Manned Reception. • 3 Passenger Lifts. • New Double Glazed Windows throughout. • External decoration which has transformed the building.
- Use Class: E
- Can be combined with additional space(s) for up to 31,906 sq ft of adjacent space
- Central Heating System
- Reception Area
- Fully Carpeted
- Suspended Ceilings
- Recessed Lighting
- Energy Performance Rating - C
- New Double Glazed Windows throughout
- 3 Passenger Lifts
- Perimeter Trunking
8th Floor, Ste 3
| Size | 1,015 sq ft |
| Term | Negotiable |
| Rate | £13.00 /sq ft pa |
| Space Use | Office |
| Fit-Out | Full Fit-Out |
| Available | Now |
The available space comprises of eighth office accommodation. A new lease available on terms to be agreed.
- Use Class: B1
- Fully Fit-Out as Standard Office
- Mostly Open Floor Plan Layout
- Can be combined with additional space(s) for up to 31,906 sq ft of adjacent space
- Central Heating System
- Lift Access
- Fully Carpeted
- Suspended Ceilings
- Recessed Lighting
- Energy Performance Rating - C
- Perimeter Trunking
- lots of natural light
9th Floor, Ste Central
| Size | 5,336 sq ft |
| Term | Negotiable |
| Rate | £13.00 /sq ft pa |
| Space Use | Office |
| Fit-Out | - |
| Available | Now |
Eastgate House has recently undergone a multi-million pound refurbishment. The building provides high quality offices incorporating the following: • Recessed LED Lighting. • Perimeter Trunking. • Suspended Ceilings. • Carpeted Floors. • Central Heating. • Manned Reception. • 3 Passenger Lifts. • New Double Glazed Windows throughout. • External decoration which has transformed the building.
- Use Class: E
- Can be combined with additional space(s) for up to 31,906 sq ft of adjacent space
- Central Heating System
- Reception Area
- Fully Carpeted
- Suspended Ceilings
- Recessed Lighting
- Energy Performance Rating - C
- New Double Glazed Windows throughout
- 3 Passenger Lifts
- Perimeter Trunking
11th Floor
| Size | 5,322 sq ft |
| Term | Negotiable |
| Rate | £13.00 /sq ft pa |
| Space Use | Office |
| Fit-Out | - |
| Available | Now |
Eastgate House has recently undergone a multi-million pound refurbishment. The building provides high quality offices incorporating the following: • Recessed LED Lighting. • Perimeter Trunking. • Suspended Ceilings. • Carpeted Floors. • Central Heating. • Manned Reception. • 3 Passenger Lifts. • New Double Glazed Windows throughout. • External decoration which has transformed the building.
- Use Class: E
- Can be combined with additional space(s) for up to 15,931 sq ft of adjacent space
- Central Heating System
- Reception Area
- Fully Carpeted
- Suspended Ceilings
- Recessed Lighting
- Energy Performance Rating - C
- New Double Glazed Windows throughout
- 3 Passenger Lifts
- Perimeter Trunking
12th Floor
| Size | 5,309 sq ft |
| Term | Negotiable |
| Rate | £13.00 /sq ft pa |
| Space Use | Office |
| Fit-Out | - |
| Available | Now |
Eastgate House has recently undergone a multi-million pound refurbishment. The building provides high quality offices incorporating the following: • Recessed LED Lighting. • Perimeter Trunking. • Suspended Ceilings. • Carpeted Floors. • Central Heating. • Manned Reception. • 3 Passenger Lifts. • New Double Glazed Windows throughout. • External decoration which has transformed the building.
- Use Class: E
- Can be combined with additional space(s) for up to 15,931 sq ft of adjacent space
- Central Heating System
- Reception Area
- Fully Carpeted
- Suspended Ceilings
- Recessed Lighting
- Energy Performance Rating - C
- New Double Glazed Windows throughout
- 3 Passenger Lifts
- Perimeter Trunking
13th Floor
| Size | 5,300 sq ft |
| Term | Negotiable |
| Rate | £13.00 /sq ft pa |
| Space Use | Office |
| Fit-Out | - |
| Available | Now |
Eastgate House has recently undergone a multi-million pound refurbishment. The building provides high quality offices incorporating the following: • Recessed LED Lighting. • Perimeter Trunking. • Suspended Ceilings. • Carpeted Floors. • Central Heating. • Manned Reception. • 3 Passenger Lifts. • New Double Glazed Windows throughout. • External decoration which has transformed the building.
- Use Class: E
- Can be combined with additional space(s) for up to 15,931 sq ft of adjacent space
- Central Heating System
- Reception Area
- Fully Carpeted
- Suspended Ceilings
- Recessed Lighting
- Energy Performance Rating - C
- New Double Glazed Windows throughout
- 3 Passenger Lifts
- Perimeter Trunking
Property Overview
The property benefits from being located opposite the 4* Mercure Cardiff Holland House Hotel & Spa on a major bus route, and a short walk from the main shopping area of Queen Street and Queen Street Railway Station. Eastgate House has undergone a comprehensive make over which has transformed the property. Externally, elevations have been completely rendered and decorated, new double glazed windows have been installed. Internally, the common areas including the reception, toilets and office suites have been upgraded to create a high quality office environment. Eastgate House offers refurbished modern office accommodation with excellent amenities including an on-site gym and coffee shop. On-site car parking is available. http://www.eastgatehousecardiff.co.uk What3Words link.zest.closet
- Bus Route
- Controlled Access
- Fitness Centre
- Security System
- EPC - C
- Storage Space
- Bicycle Storage
- Central Heating
- Common Parts WC Facilities
- DDA Compliant
- Lift Access
Property Facts
Presented by
Company Not Provided
Eastgate House | 35-43 Newport Rd
Hmm, there seems to have been an error sending your message. Please try again.
Thanks! Your message was sent.








