Your email has been sent.
Highlights
- Popular and busy parade
- Excellent location
- 2 parking spaces to the rear
Space Availability (1)
Display Rent as
- Space
- Size
- Term
- Rate
- Type
| Space | Size | Term | Rate | Type | ||
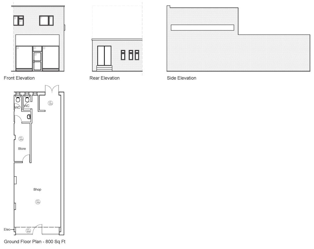
| Ground | 800 sq ft | 5 Years | £28.75 /sq ft pa £2.40 /sq ft pcm £23,000 pa £1,917 pcm | Fully Repairing & Insuring |
Ground
A self contained ground floor retail unit which provides ground floor sales area together with ancillary storage, kitchenette and WC to the rear.
- Use Class: E
- Partially Fit-Out as Standard Retail Unit
- Energy Performance Rating - D
- Common Parts WC Facilities
- New Lease
- Display window
- Self contained retail unit
Service Types
The rent amount and service type that the tenant (lessee) will be responsible to pay to the landlord (lessor) throughout the lease term is negotiated prior to both parties signing a lease agreement. The service type will vary depending upon the services provided. Contact the listing agent for a full understanding of any associated costs or additional expenses for each service type.
1. Fully Repairing & Insuring: All obligations for repairing and insuring the property (or their share of the property) both internally and externally.
2. Internal Repairing Only: The tenant is responsible for internal repairs only. The landlord is responsible for structural and external repairs.
3. Internal Repairing & Insuring: The tenant is responsible for internal repairs and insurance for internal parts of the property only. The landlord is responsible for structural and external repairs.
4. Negotiable or TBD: This is used when the leasing contact does not provide the service type.
Property Facts
| Total Space Available | 800 sq ft | Net Internal Area (NIA) | 1,478 sq ft |
| Property Type | Retail | Year Built | 1970 |
| Property Subtype | Shopfront Retail / Office |
| Total Space Available | 800 sq ft |
| Property Type | Retail |
| Property Subtype | Shopfront Retail / Office |
| Net Internal Area (NIA) | 1,478 sq ft |
| Year Built | 1970 |
About the Property
The property is centrally located fronting Boldmere Road within the centre of the prosperous and vibrant local shopping centre. Boldmere comprises a mix of local, independent and national retailers and restaurant operators to include Sainsbury's Local, Harvester and Tesco Express with the Bishop Vesey (Wetherspoons) and Costa Coffee immediately adjacent.
- Bus Route
Nearby Major Retailers
Presented by
45 Boldmere Rd
Hmm, there seems to have been an error sending your message. Please try again.
Thanks! Your message was sent.






