Your email has been sent.
54 Broad St 936 - 947 sq ft of Office Space Available in Ludlow SY8 1NH



Highlights
- Office with Three Rooms
- Town Center
- Toilet
- Sought After location
- Kitchen Area
- EPC D
All Available Space(1)
Display Rent as
- Space
- Size
- Term
- Rate
- Space Use
- Fit-Out
- Available
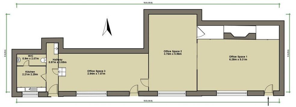
Office with Three Rooms, Sought After location, Town Center, Kitchen Area, Toilet, EPC DSituation: 54 Broad Street is located in one of Ludlow’s most sought after areas in a central location close to the castle and the historic market square.The property comprises of spacious ground floor premises with three potential office spaces plus a kitchen and WC extending to approximately 87 SQ M (936 SQ ft), forming part of one of eight offices in the attractive Grade II listed Conservative Building. The office occupies an established location on Broad Street in the town centre of Ludlow, with the front door access via a communal hallway with an intercom system. The building is within walking distance of the Ludlow train station and public car parks. Ludlow is an attractive historic South Shropshire Market Town and tourist centre. This serving a wide catchment area located approximately 30 miles South of Shrewsbury and 24 miles North of Hereford with access via the A49 trunk road. Room 1- 33.34 SQ M (358.8 Sq Ft)Room 2- 22.40 SQ M (241.1 Sq Ft)Room 3 - 20.78 SQ M (223.6 Sq Ft)Toilet - 1.86 SQ M (20.02 Sq Ft)Kitchen Area - 5.06 SQ M (54.46 Sq Ft) There is direct access to the office from the rear courtyard witoff-road parking available via separate negotiation. Lease: Available on 3-year Commercial Lease. EPC: Commercial EPC -Grade II Listed (Awaiting Exemption) Rent: £650.00 per month payable monthly in advance. Deposit: 6 months. Services: Water and electricity are charged in addition to the rent. Note: A service charge maybe agreed with the landlords in the future for cleaning the communal areas. Lease Type: Full Repair Commercial Lease. Current Lease: Ends February 2025. Business Rates: Business Rates Exemption - Interested parties are to make their own enquiries into Shropshire Council. Extra Charges: Buildings insuranceVAT: No VAT charges Viewings strictly by appointment only.Directions: What3Words: ///library.tactical.stall
- Use Class: E
| Space | Size | Term | Rate | Space Use | Fit-Out | Available |
| 1st Floor | 936-947 sq ft | Negotiable | Upon Application Upon Application Upon Application Upon Application | Office | - | Now |
1st Floor
| Size |
| 936-947 sq ft |
| Term |
| Negotiable |
| Rate |
| Upon Application Upon Application Upon Application Upon Application |
| Space Use |
| Office |
| Fit-Out |
| - |
| Available |
| Now |
1st Floor
| Size | 936-947 sq ft |
| Term | Negotiable |
| Rate | Upon Application |
| Space Use | Office |
| Fit-Out | - |
| Available | Now |
Office with Three Rooms, Sought After location, Town Center, Kitchen Area, Toilet, EPC DSituation: 54 Broad Street is located in one of Ludlow’s most sought after areas in a central location close to the castle and the historic market square.The property comprises of spacious ground floor premises with three potential office spaces plus a kitchen and WC extending to approximately 87 SQ M (936 SQ ft), forming part of one of eight offices in the attractive Grade II listed Conservative Building. The office occupies an established location on Broad Street in the town centre of Ludlow, with the front door access via a communal hallway with an intercom system. The building is within walking distance of the Ludlow train station and public car parks. Ludlow is an attractive historic South Shropshire Market Town and tourist centre. This serving a wide catchment area located approximately 30 miles South of Shrewsbury and 24 miles North of Hereford with access via the A49 trunk road. Room 1- 33.34 SQ M (358.8 Sq Ft)Room 2- 22.40 SQ M (241.1 Sq Ft)Room 3 - 20.78 SQ M (223.6 Sq Ft)Toilet - 1.86 SQ M (20.02 Sq Ft)Kitchen Area - 5.06 SQ M (54.46 Sq Ft) There is direct access to the office from the rear courtyard witoff-road parking available via separate negotiation. Lease: Available on 3-year Commercial Lease. EPC: Commercial EPC -Grade II Listed (Awaiting Exemption) Rent: £650.00 per month payable monthly in advance. Deposit: 6 months. Services: Water and electricity are charged in addition to the rent. Note: A service charge maybe agreed with the landlords in the future for cleaning the communal areas. Lease Type: Full Repair Commercial Lease. Current Lease: Ends February 2025. Business Rates: Business Rates Exemption - Interested parties are to make their own enquiries into Shropshire Council. Extra Charges: Buildings insuranceVAT: No VAT charges Viewings strictly by appointment only.Directions: What3Words: ///library.tactical.stall
- Use Class: E
Property Facts
Select Tenants
- Tenant Name
- Industry
- Working Solutions
- Administrative and Support Services
Presented by
54 Broad St
Hmm, there seems to have been an error sending your message. Please try again.
Thanks! Your message was sent.
