Log In/Sign up
Your email has been sent.
55 Newbottle St 1,280 sq ft Retail Property Houghton Le Spring DH4 4AR £90,000 (£70.31/sq ft)



Investment Highlights
- Prime Location
- Approximately 999 Square Feet
- Spacious Retail Unit
- Potential 9%-10% Yield Per Annum
Executive Summary
*PRIME HIGH STREET LOCATION*SPACIOUS RETAIL UNIT*SITUATED OVER TWO FLOORS*POTENTIAL RENTAL INCOME OF 9%-10% YIELD PER ANNUM*
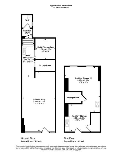
Pattinson Estate Agent are pleased to welcome to the market this spacious retail unit, which is approximately 999 square feet and is located in the prime location of Newbottle Street in Houghton Le Spring Town Centre. The unit could be suitable for a wide variety of uses, subject to obtaining the relevant planning consent.
Formerly used as a Butchers, the property comprises open plan aspect with two good sized storage areas and a WC facilities and to the first floor there is an ancillary storage to the first floor. Externally to the rear there is gated parking facilities to the premises.
Early viewing comes highly recommended to appreciate the size and location of this property. Please call our Houghton branch to arrange an appointment to view.
Pattinson Estate Agent are pleased to welcome to the market this spacious retail unit, which is approximately 999 square feet and is located in the prime location of Newbottle Street in Houghton Le Spring Town Centre. The unit could be suitable for a wide variety of uses, subject to obtaining the relevant planning consent.
Formerly used as a Butchers, the property comprises open plan aspect with two good sized storage areas and a WC facilities and to the first floor there is an ancillary storage to the first floor. Externally to the rear there is gated parking facilities to the premises.
Early viewing comes highly recommended to appreciate the size and location of this property. Please call our Houghton branch to arrange an appointment to view.
Property Facts
Sale Type
Investment
Property Type
Retail
Tenure
Freehold
Property Subtype
Shopfront
Property Size
1,280 sq ft
Costar Property Class
C
Year Built
1901
Price
£90,000
Price per sq ft
£70.31
Tenancy
Single
Number of Floors
2
Frontage
15 ft on Newbottle Street
1 1
Nearby Major Retailers
1 of 13
Videos
Matterport 3D Exterior
Matterport 3D Tour
Photos
Street View
Street
Map
1 of 1
Presented by
55 Newbottle St
Already a member? Log In
Hmm, there seems to have been an error sending your message. Please try again.
Thanks! Your message was sent.
