Log In/Sign up
Your email has been sent.
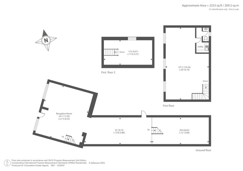
56 High St 2,752 sq ft Retail Property Witney OX28 6HJ £575,000 (£208.94/sq ft)



Investment Highlights
- Retail Unit
- High Street Location
- Tenant In Situ
- Parking
Executive Summary
Offers are invited £600,000.
An exciting opportunity to purchase this prime location shop, sold with tenants in central Witney, complete with parking, office space and kitchen area
An exciting opportunity to purchase this prime location shop, sold with tenants in central Witney, complete with parking, office space and kitchen area
Property Facts
Sale Type
Investment
Property Type
Retail
Tenure
Freehold
Property Subtype
Shopfront
Property Size
2,752 sq ft
Costar Property Class
C
Year Built
1900
Price
£575,000
Price per sq ft
£208.94
Tenancy
Single
Number of Floors
2
Plot ratio
1.93
Total Plot Size
0.03 ac
Frontage
29 ft on High Street
Amenities
- 24 Hour Access
1 1
Nearby Major Retailers
1 of 13
Videos
Matterport 3D Exterior
Matterport 3D Tour
Photos
Street View
Street
Map
1 of 1
Presented by
56 High St
Already a member? Log In
Hmm, there seems to have been an error sending your message. Please try again.
Thanks! Your message was sent.
