Your email has been sent.
The Railway 68 St Johns Rd 888 sq ft 100% Let Retail Property Ryde PO33 2RT £250,000 (£281.53/sq ft)



Executive Summary
LOCATION
The railway occupies a prominent corner position on St John’s Road and Monkton Street, and is favourably situated opposite the ‘Park and Ride’ facility adjacent to Ryde’s St John’s Railway Station. It is also within walking distance of Ryde Esplanade and beaches.
The pub is set amongst a relatively high density of chimney pots in the island’s second most populous town, with an immediate population of circa 25,000, considerably boosted by the influx of summer tourists as well as day-trippers via fast passenger catamaran and Hovercraft links from Portsmouth and Southsea.
The town's boasts a 24,000ft² Co-Operative supermarket in addition to Peacocks, WH Smith, Costa Coffee, The Card Factory, Specsavers, Superdrug, The Works, Poundland, J D Wetherspoon and Dominos. The town has benefitted recently from restoration works to many of its Victorian buildings and now presents as a smart and lively shopping area.
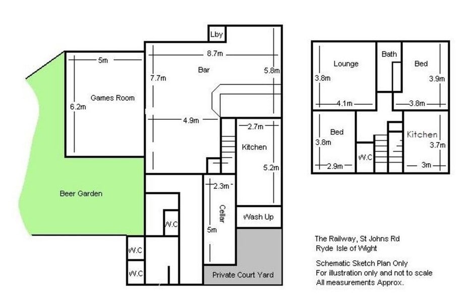
DESCRIPTION
Believed to have been built in 1830, the public areas have flagstone floors, fireplaces and exposed beams. The main bar area runs to approximately 40m² (430ft²) inclusive of the bar, incorporating bench seating and darts area. Adjacent is a Games Room of some 31m² (334ft²) with laminate floor and currently utilised for Pool, Darts and Television.
Outside is a paved Beer Garden with picnic bench seating and a raised deck area. Customers can access this area from the pavement and there is a bis stop directly outside the pub.
Kitchens, utility room, and a cellar of some 11.5m² (124ft²) complete the ground floor accommodation. The public areas are supported by ladies and gents toilet facilities, which have been recently refurbished.
The pub regularly hosts live music and beer festivals, and is free of any tie.
TERMS
For sale, with offers invited in the region of £250,000 for the Freehold interest, business, goodwill, fixtures and fittings.
OUTGOINGS
Rateable Value: £6,600
2025/2026: 55.5p without small business relief. Interested parties should make their own enquiries of the Isle of Wight Council to confirm any rate liability or rate concession that may be applicable by telephoning Business Rates on[use Contact Agent Button]
VIEWING
Strictly by appointment with the agents. Call Lisa Mercer or Charlie Dickson on[use Contact Agent Button] or [use Contact Agent Button]
Property Facts
Amenities
- Storage Space
Nearby Major Retailers
Presented by
The Railway | 68 St Johns Rd
Hmm, there seems to have been an error sending your message. Please try again.
Thanks! Your message was sent.
