Your email has been sent.
Investment Highlights
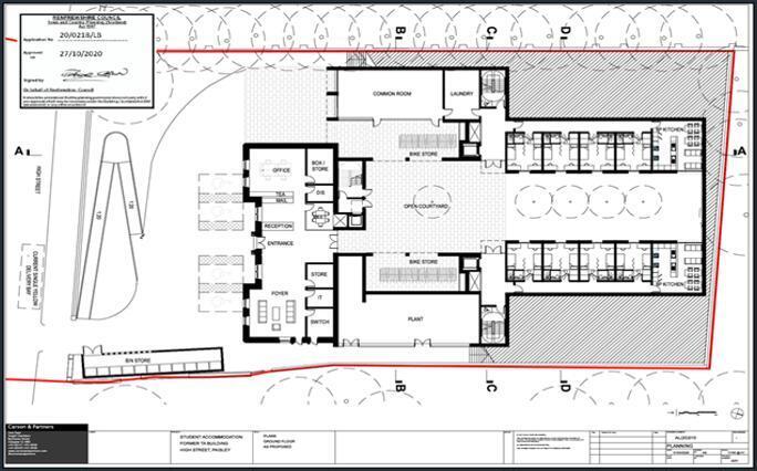
- Full planning consent approved for purpose-built student accommodation (PBSA) scheme
- Site of former iconic territorial army building
- 169 rooms for up to 338 students
- Located directly opposite University of the West of Scotland
Executive Summary
Property Facts
| Sale Type | Investment | Property Subtype | Residential |
| Tenure | Freehold | Proposed Use | Flats |
| No. Plots | 1 | Total Plot Size | 1.68 ac |
| Property Type | Land |
| Sale Type | Investment |
| Tenure | Freehold |
| No. Plots | 1 |
| Property Type | Land |
| Property Subtype | Residential |
| Proposed Use | Flats |
| Total Plot Size | 1.68 ac |
1 Plot Available
Plot
| Total Plot Size | 1.68 ac |
| Total Plot Size | 1.68 ac |
The site has a prime location positioned directly opposite the Paisley campus of the University of the West of Scotland. The campus is home to around 10,000 students.
Description
The subjects are situated on the north side of High Street within the town centre and lie a short distance to the west of the central shopping area. The subjects are neighboured by Paisley Museum & Art Gallery to the east and Coats Paisley to the west. Paisley Museum is undergoing a major refurbishment of as part of a 4 year long £42m transformation of the venue and this is a flagship project in a £100 million investment in Paisley Town centre over the next few years. The total developable area is approximately 6,788 sqm or thereby.
Presented by
76 High St
Hmm, there seems to have been an error sending your message. Please try again.
Thanks! Your message was sent.



