Your email has been sent.
826 Wickham Rd 818 sq ft of Retail Space Available in Croydon CR0 8EB


HIGHLIGHTS
- 76 sqm Customisable Floor Space
- Shopping Parade Location
- Flexible Terms
- Contact Agent on Ext 122
- Demised Outdoor Space for Car or Outdoor Dining
- Parking & Transport Links Close By
- Available April 2026
SPACE AVAILABILITY (1)
Display Rent as
- SPACE
- SIZE
- TERM
- RATE
- TYPE
| Space | Size | Term | Rate | Type | ||
| - | 818 sq ft | Negotiable | £28.11 /sq ft pa £2.34 /sq ft pcm £22,992 pa £1,916 pcm | TBD |
-
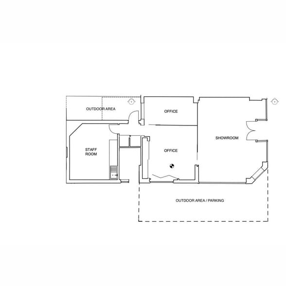
A prominent, glass fronted, corner retail unit spanning in excess of 800sqft, on a well visited shopping parade just moments from West Wickham High Street. The demised outdoor space to the side would work well as either a car parking (electric point for EV charger in place) or an outdoor dining area. Parking and transport links are all within easy reach, in a busy residential area with good footfall.Classified as Use Class E, this premises would suit someone wanting to create a coffee shop or sandwich bar, health & wellness space or clinic, retail space or professional services.Available in April 2026.Please enter extension 122 when calling to reach your agent directly.
Service Types
The rent amount and service type that the tenant (lessee) will be responsible to pay to the landlord (lessor) throughout the lease term is negotiated prior to both parties signing a lease agreement. The service type will vary depending upon the services provided. Contact the listing agent for a full understanding of any associated costs or additional expenses for each service type.
1. Fully Repairing & Insuring: All obligations for repairing and insuring the property (or their share of the property) both internally and externally.
2. Internal Repairing Only: The tenant is responsible for internal repairs only. The landlord is responsible for structural and external repairs.
3. Internal Repairing & Insuring: The tenant is responsible for internal repairs and insurance for internal parts of the property only. The landlord is responsible for structural and external repairs.
4. Negotiable or TBD: This is used when the leasing contact does not provide the service type.
SELECT TENANTS AT 826 WICKHAM RD, CROYDON, LND CR0 8EB
- Stronghold Security Doors
PROPERTY FACTS
| Total Space Available | 818 sq ft | Net Internal Area (NIA) | 1,000 sq ft |
| Property Type | Retail | Year Built | 1920 |
| Property Subtype | Shopfront Retail / Residential | Parking Allocation | 2/1,000 sq ft |
| Total Space Available | 818 sq ft |
| Property Type | Retail |
| Property Subtype | Shopfront Retail / Residential |
| Net Internal Area (NIA) | 1,000 sq ft |
| Year Built | 1920 |
| Parking Allocation | 2/1,000 sq ft |
FEATURES AND AMENITIES
- Storage Space
NEARBY MAJOR RETAILERS
Presented by
Keller Williams Advantage
826 Wickham Rd
Hmm, there seems to have been an error sending your message. Please try again.
Thanks! Your message was sent.
