Your email has been sent.
Units 1-6 9 Wentworth Rd 261 - 1,726 sq ft of Office Space Available in Ipswich IP3 9SY


Highlights
- Located on Ransomes Europark, the towns premier business park
- Modern office suites available with car parking
- Easy access to the A14 and town centre
All Available Spaces(3)
Display Rent as
- Space
- Size
- Term
- Rate
- Space Use
- Fit-Out
- Available
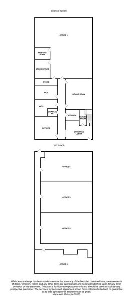
The property comprises a modern, end-of-terrace, two-storey, purpose-built office building with surfaced parking spaces to the front.The ground floor is arranged to provide a shared entrance/unmanned reception, large office to the rear (now Let), further small office, shared Kitchen and WC facilities. The first floor provides four further private office suites.Specification includes suspended ceilings with integrated LED lighting and air-conditioning, perimeter trunking for power and data, underfloor heating, access intercoms, and carpeted flooring throughout.
- Use Class: E
- Security System
- Wheelchair Accessible
- Wi-Fi Connectivity
- Smoke Detector
- Shared Kitchen
The property comprises a modern, end-of-terrace, two-storey, purpose-built office building with surfaced parking spaces to the front.The ground floor is arranged to provide a shared entrance/unmanned reception, large office to the rear (now Let), further small office, shared Kitchen and WC facilities. The first floor provides four further private office suites.Specification includes suspended ceilings with integrated LED lighting and air-conditioning, perimeter trunking for power and data, underfloor heating, access intercoms, and carpeted flooring throughout.
- Use Class: E
- Security System
- Wheelchair Accessible
- Wi-Fi Connectivity
- Smoke Detector
- Shared Kitchen
The property comprises a modern, end-of-terrace, two-storey, purpose-built office building with surfaced parking spaces to the front.The ground floor is arranged to provide a shared entrance/unmanned reception, large office to the rear (now Let), further small office, shared Kitchen and WC facilities. The first floor provides four further private office suites.Specification includes suspended ceilings with integrated LED lighting and air-conditioning, perimeter trunking for power and data, underfloor heating, access intercoms, and carpeted flooring throughout.
- Use Class: E
- Security System
- Wheelchair Accessible
- Wi-Fi Connectivity
- Smoke Detector
- Shared Kitchen
| Space | Size | Term | Rate | Space Use | Fit-Out | Available |
| Ground, Ste Office 2 | 261 sq ft | Negotiable | £15.13 /sq ft pa £1.26 /sq ft pcm £3,949 pa £329.08 pcm | Office | Shell And Core | Under offer |
| 1st Floor, Ste Office 3 | 646 sq ft | Negotiable | £13.16 /sq ft pa £1.10 /sq ft pcm £8,501 pa £708.45 pcm | Office | Shell And Core | Under offer |
| 1st Floor, Ste Office 4 | 819 sq ft | Negotiable | £12.82 /sq ft pa £1.07 /sq ft pcm £10,500 pa £874.97 pcm | Office | Shell And Core | Under offer |
Ground, Ste Office 2
| Size |
| 261 sq ft |
| Term |
| Negotiable |
| Rate |
| £15.13 /sq ft pa £1.26 /sq ft pcm £3,949 pa £329.08 pcm |
| Space Use |
| Office |
| Fit-Out |
| Shell And Core |
| Available |
| Under offer |
1st Floor, Ste Office 3
| Size |
| 646 sq ft |
| Term |
| Negotiable |
| Rate |
| £13.16 /sq ft pa £1.10 /sq ft pcm £8,501 pa £708.45 pcm |
| Space Use |
| Office |
| Fit-Out |
| Shell And Core |
| Available |
| Under offer |
1st Floor, Ste Office 4
| Size |
| 819 sq ft |
| Term |
| Negotiable |
| Rate |
| £12.82 /sq ft pa £1.07 /sq ft pcm £10,500 pa £874.97 pcm |
| Space Use |
| Office |
| Fit-Out |
| Shell And Core |
| Available |
| Under offer |
Ground, Ste Office 2
| Size | 261 sq ft |
| Term | Negotiable |
| Rate | £15.13 /sq ft pa |
| Space Use | Office |
| Fit-Out | Shell And Core |
| Available | Under offer |
The property comprises a modern, end-of-terrace, two-storey, purpose-built office building with surfaced parking spaces to the front.The ground floor is arranged to provide a shared entrance/unmanned reception, large office to the rear (now Let), further small office, shared Kitchen and WC facilities. The first floor provides four further private office suites.Specification includes suspended ceilings with integrated LED lighting and air-conditioning, perimeter trunking for power and data, underfloor heating, access intercoms, and carpeted flooring throughout.
- Use Class: E
- Wi-Fi Connectivity
- Security System
- Smoke Detector
- Wheelchair Accessible
- Shared Kitchen
1st Floor, Ste Office 3
| Size | 646 sq ft |
| Term | Negotiable |
| Rate | £13.16 /sq ft pa |
| Space Use | Office |
| Fit-Out | Shell And Core |
| Available | Under offer |
The property comprises a modern, end-of-terrace, two-storey, purpose-built office building with surfaced parking spaces to the front.The ground floor is arranged to provide a shared entrance/unmanned reception, large office to the rear (now Let), further small office, shared Kitchen and WC facilities. The first floor provides four further private office suites.Specification includes suspended ceilings with integrated LED lighting and air-conditioning, perimeter trunking for power and data, underfloor heating, access intercoms, and carpeted flooring throughout.
- Use Class: E
- Wi-Fi Connectivity
- Security System
- Smoke Detector
- Wheelchair Accessible
- Shared Kitchen
1st Floor, Ste Office 4
| Size | 819 sq ft |
| Term | Negotiable |
| Rate | £12.82 /sq ft pa |
| Space Use | Office |
| Fit-Out | Shell And Core |
| Available | Under offer |
The property comprises a modern, end-of-terrace, two-storey, purpose-built office building with surfaced parking spaces to the front.The ground floor is arranged to provide a shared entrance/unmanned reception, large office to the rear (now Let), further small office, shared Kitchen and WC facilities. The first floor provides four further private office suites.Specification includes suspended ceilings with integrated LED lighting and air-conditioning, perimeter trunking for power and data, underfloor heating, access intercoms, and carpeted flooring throughout.
- Use Class: E
- Wi-Fi Connectivity
- Security System
- Smoke Detector
- Wheelchair Accessible
- Shared Kitchen
Property Overview
Ransomes Europark is situated to the south east of Ipswich adjacent to junction 57 of the A14 which provides excellent road communications with Felixstowe, London and the national motorway network. The Port of Felixstowe is within approximately 5.7 miles and Ipswich town centre within about 4 miles. The property is located off Wentworth Road to the rear of the estate.
Industrial Facility Facts
Select Tenants
- Floor
- Tenant Name
- Industry
- GRND
- AMX
- -
- GRND
- Crisp Engineering
- Wholesaler
- GRND
- Westgate Precision Engineering Ltd
- -
Presented by
Units 1-6 | 9 Wentworth Rd
Hmm, there seems to have been an error sending your message. Please try again.
Thanks! Your message was sent.
