Your email has been sent.
93170 Bagnolet 2,153 sq ft Retail Property £558,753 (£259.55/sq ft)


Some information has been automatically translated.
Sale Notes
Contactez-nous rapidement pour une visiteTous nos biens sont sur notre site web HRIM Retrouver notre site pour avoir tous les éléments concernant les biens disponibles et les visites virtuelles. Tous nos biens ne sont pas disponibles en publicité, il est donc important d'inscrire vos critères de recherche et de s'enregistrer sur notre site pour être informé et recevoir les fiches informations en priorité#hrim #bureau #travail #vendre #vente #investissement #hriminvest #investir #investissementlocatif #location #murscommerciaux #commerce #local #locaux #restaurant #extraction #networking #property #digitaltransformation #leadership #motivation #socialmedia #entrepreneur #leadershipdevelopment #startups #ecommerce #socialentrepreneurship #branding #investing #appartementneuf #appartement #maison #duplex #terrasse
Property Facts
About BAGNOLET, 93170
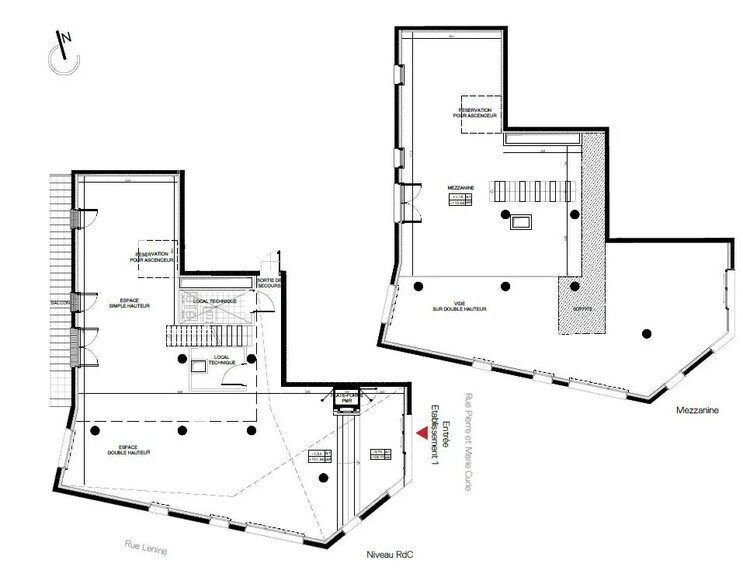
**For Sale in Bagnolet: Commercial Property with 200 m² of Raw Concrete Space** We are offering a commercial property with freehold walls, featuring a raw concrete finish and a total surface area of 200 m², priced at €648,000 excluding VAT and agency fees. Additionally, 3 parking spaces are available at €12,000 per space. We remain at your disposal for any further information. Contact us quickly to schedule a visit! All our properties are listed on our website, HRIM. Visit our site to access detailed information about available properties and virtual tours. Please note that not all our listings are publicly advertised. To ensure you receive priority updates and detailed property sheets, it’s important to register your search criteria and sign up on our website. #hrim #office #work #forsale #sale #investment #hriminvest #invest #rentalinvestment #rental #commercialproperty #retail #space #restaurant #ventilation #networking #property #digitaltransformation #leadership #motivation #socialmedia #entrepreneur #leadershipdevelopment #startups #ecommerce #socialentrepreneurship #branding #investing #newapartment #apartment #house #duplex #terrace
Nearby Major Retailers
Presented by
"93170 Bagnolet"
Hmm, there seems to have been an error sending your message. Please try again.
Thanks! Your message was sent.
