Your email has been sent.
Burnt Oak Broadway 1,108 sq ft of Retail Space Available in Edgware



Highlights
- A1, A3, and D1 Use
- Planning Consent
Space Availability (1)
Display Rent as
- Space
- Size
- Term
- Rate
- Type
| Space | Size | Term | Rate | Type | ||
| Ground | 1,108 sq ft | Negotiable | £40.61 /sq ft pa £3.38 /sq ft pcm £45,000 pa £3,750 pcm | TBD |
Ground
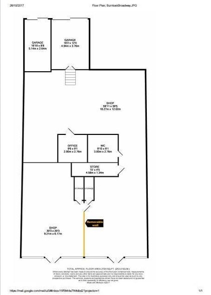
This property is unusual in that historically it has A1 use, and also has A3 and D1, for both of which there is Planning Consent in place.However under current regulations no consent is required and it can be used for a multiple of purposes.Should the new occupier wish the property can be split and operated as two separate business under individual leases.
- Use Class: E
- Partially Fit-Out as Standard Retail Unit
- Located in-line with other retail
- Common Parts WC Facilities
- Double Shop
- Rear Access
- Two Garages
Service Types
The rent amount and service type that the tenant (lessee) will be responsible to pay to the landlord (lessor) throughout the lease term is negotiated prior to both parties signing a lease agreement. The service type will vary depending upon the services provided. Contact the listing agent for a full understanding of any associated costs or additional expenses for each service type.
1. Fully Repairing & Insuring: All obligations for repairing and insuring the property (or their share of the property) both internally and externally.
2. Internal Repairing Only: The tenant is responsible for internal repairs only. The landlord is responsible for structural and external repairs.
3. Internal Repairing & Insuring: The tenant is responsible for internal repairs and insurance for internal parts of the property only. The landlord is responsible for structural and external repairs.
4. Negotiable or TBD: This is used when the leasing contact does not provide the service type.
Property Facts
| Total Space Available | 1,108 sq ft | Net Internal Area (NIA) | 2,500 sq ft |
| Property Type | Retail | Year Built | 1928 |
| Property Subtype | Shopfront Retail / Residential |
| Total Space Available | 1,108 sq ft |
| Property Type | Retail |
| Property Subtype | Shopfront Retail / Residential |
| Net Internal Area (NIA) | 2,500 sq ft |
| Year Built | 1928 |
About the Property
A 2,500 square feet double shop at the Edgware end of Burnt Oak Broadway, opposite Edgware Community Hospital.
- EPC - B
- Storage Space
Nearby Major Retailers
Presented by
Burnt Oak Broadway
Hmm, there seems to have been an error sending your message. Please try again.
Thanks! Your message was sent.



