Log In/Sign up
Your email has been sent.
Carr Rd 48,423 sq ft Industrial Property Felixstowe IP11 3RX £4,250,000 (£87.77/sq ft)



Investment Highlights
- Located in UK's largest and busiest container port handling 4 million TEUS
- Additonal extensive parking area
- Secure loading yard
Executive Summary
The planning consent states that the premises shall be used solely for the storage, repacking and distribution of motorcycle parts, tyres, accessories and clothing with ancillary offices and trade showroom and the permitted working hours are 7:30am to 6pm Monday to Friday and 7.30 to 1.00pm Saturdays, with no working on Sundays or bank holidays, unless otherwise agreed with the Planning Authority.
It is considered that the property has good potential for alternative warehouse uses and the car park provides scope for further development.
It is considered that the property has good potential for alternative warehouse uses and the car park provides scope for further development.
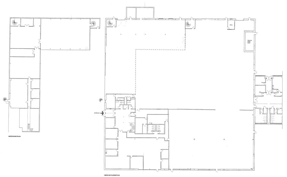
Property Facts
| Price | £4,250,000 | Costar Property Class | C |
| Price per sq ft | £87.77 | Total Plot Size | 3.30 ac |
| Sale Type | Owner Occupier | Net Internal Area (NIA) | 48,423 sq ft |
| Tenure | Freehold | No. Floors | 2 |
| Property Type | Industrial | Year Built | 1989 |
| Property Subtype | Warehouse | Tenancy | Single |
| Price | £4,250,000 |
| Price per sq ft | £87.77 |
| Sale Type | Owner Occupier |
| Tenure | Freehold |
| Property Type | Industrial |
| Property Subtype | Warehouse |
| Costar Property Class | C |
| Total Plot Size | 3.30 ac |
| Net Internal Area (NIA) | 48,423 sq ft |
| No. Floors | 2 |
| Year Built | 1989 |
| Tenancy | Single |
Amenities
- EPC - C
- Demised WC facilities
1 1
1 of 7
Videos
Matterport 3D Exterior
Matterport 3D Tour
Photos
Street View
Street
Map
1 of 1
Presented by
Carr Rd
Already a member? Log In
Hmm, there seems to have been an error sending your message. Please try again.
Thanks! Your message was sent.
