Enter your email to login or create a free account
This feature is unavailable at the moment.
We apologize, but the feature you are trying to access is currently unavailable. We are aware of this issue and our team is working hard to resolve the matter.
Please check back in a few minutes. We apologize for the inconvenience.
- LoopNet Team
Central Ave
Grays RM20 3WZ
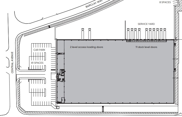
Proxima III · Property To Rent

Highlights
- Served by excellant transport links
- Prime industrial location
- Close to amenities
Property Overview
The property is located at the junction of Weston Avenue and Central Avenue in the established warehouse/industrial area of West Thurrock. The site benefits from excellent access to the M25 at junctions 30 and 31 with Junction 30 providing direct access to the Docklands and the City via the A13. The building is situated nearby to the amenities of Lakeside retail park and shopping centre.
Property Facts
| Property Type | Industrial | Net Internal Area (NIA) | 97,344 sq ft |
| Property Subtype | Warehouse | Year Built | 2006 |
| Property Type | Industrial |
| Property Subtype | Warehouse |
| Net Internal Area (NIA) | 97,344 sq ft |
| Year Built | 2006 |
Features and Amenities
- Fenced Lot
- Mezzanine
- Security System
- Skylights
- Yard
- EPC - B
- Recessed Lighting
- Fluorescent Lighting
- Raised Floor System
Utilities
- Lighting
- Heating
Attachments
| Proxima111 West Thurrock |
Listing ID: 22147673
Date on Market: 03/02/2021
Last Updated:
Address: Central Ave, Grays RM20 3WZ
The Industrial Property at Central Ave, Grays, RM20 3WZ is no longer being advertised on LoopNet.co.uk. Contact the agent for information on availability.
INDUSTRIAL PROPERTIES IN NEARBY NEIGHBOURHOODS
- Greenwich Commercial Properties
- Thurrock Commercial Properties
- Brentwood Commercial Properties
- Barking & Dagenham Commercial Properties
- Gravesham Commercial Properties
- North Woolwich Commercial Properties
- Creekmouth Commercial Properties
- Beckton Commercial Properties
- Thamesmead Commercial Properties
- North End Bexley Commercial Properties
- Silvertown Commercial Properties
- Blackheath Park Commercial Properties
NEARBY LISTINGS
- Clipper Blvd, Dartford
- Arterial Rd, Purfleet-On-Thames
- Victory Way, Dartford
- 4 Roman Way, Crayford
- Motherwell Way, Grays
- Ferry Ln, Rainham
- 31 Rectory Rd, Grays
- 68-69 High St, Gravesend
- Green Street Green Rd, Dartford
- Kings Walk, Grays
- 17 The Brent, Dartford
- 12 Northend Rd, Erith
- Ferry Ln, Rainham
- 140-146 Dock Rd, Tilbury
- Manor Way, Swanscombe
