Your email has been sent.
63100 Clermont-Ferrand 2,702 sq ft Retail Property £479,232 (£177.38/sq ft)


Some information has been automatically translated.
SALE NOTES
Au coeur d'un quartier en pleine rénovation et transformation, à proximité des Halles du Brézet, du lycée des métier, en face du centre commercial Saint-Jean, proche de plusieurs enseignes nationales telles que Gifi, CCV ou d'enseignes de bricolage Bricoman, Gedimat, Leroy Merlin, de restauration Burger King, Jules & ; John ou encore l'Empire du Malt, Les hall du Brézet et de la future ligne de bus permettant d'accéder rapidement au centre ville.
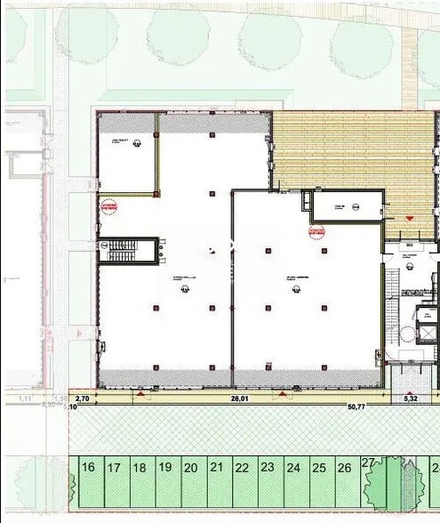
Je vous propose à la vente ce local d'une surface de 251 m².
Ces locaux à vocation commerciale seront livrés brut de béton, avec réserve de sol, Vitrines posées et menuiseries extérieures en aluminium thermolaqué, gris anthracite. Activités de restauration autorisées avec possibilité de mettre le gaz suivant plans
Les commerces en rez-de-chaussée offrent une visibilité exceptionnelle depuis le carrefour. À double orientation, sans murs porteurs, ils permettent une organisation optimale des espaces de vente ou d'exposition.
Activité de Restauration possible
Localisation :
ZAC
Bus Bus ligne 10 à 150 mètres
Bus ligne 21 à 450 mètres
Bus lignes 9, 35 et 36 à 500 mètres
Future ligne B du BHNS à 50 mètres
Train Gare SNCF à 6 minutes en voiture
L'immeuble :
Les Bâtiment prennent des allures de fabrique, faisant le lien entre le passé industriel du lieu et sa vocation commerciale
Caractéristiques techniques :
Livrés brut de béton, avec réserve de sol
Vitrines posées et menuiseries extérieures en aluminium thermolaqué, gris anthracite
Activités de restauration autorisées
PMR
ERP
6 places de parking
Conditions financières :
Prix vente 521 395 €/HT soit 1930€ HT/m²
Honoraire d'agence HT 5% du prix de vente charge Acquéreur
Prix de vente FAI 547 465 €/HT
Frais de notaire : 3%
Taxe Foncière : NC
Fiscalité : T.V.A.
Disponibilité : 2eme trimestre 2027
Ce bien vous est présenté par Coisnon Francois, consultant au sein du cabinet RÉSEAU BROKERS ®.
??Votre temps est précieux.
Je vous propose un accompagnement personnalisé au 0638824100
RESEAU BROKERS® est le premier cabinet immobilier d'entreprise structuré en réseau de mandataires. Nous maillons avec notre équipe de 80 Brokers une grande partie du territoire national pour accompagner nos entreprises clientes dans leurs recherches de commerces, bureaux, locaux d'activités, immeubles et fonciers.
www.reseau-brokers.com
Dans une copropriété de 19 lots. Aucune procédure n'est en cours. Non soumis au DPE. Les informations sur les risques auxquels ce bien est exposé sont disponibles sur le site Géorisques : georisques.gouv.fr.
Votre conseiller RESEAU BROKERS® : François Coisnon
Agent commercial (Entreprise individuelle)
RSAC 832.196.380
RCP 163007993 Y 001
PROPERTY FACTS
ABOUT CLERMONT-FERRAND, PDD 63100
Ideally located in the heart of the oldest and largest business area of the city of Clermont-Ferrand. In the heart of a neighborhood undergoing renovation and transformation, near the Halles du Brézet, the vocational high school, opposite the Saint-Jean shopping center, and close to several national brands such as Gifi, CCV, or DIY stores like Bricoman, Gedimat, Leroy Merlin, and restaurants like Burger King, Jules & John, or L'Empire du Malt, Les Halles du Brézet, and the future bus line providing quick access to the city center. I am offering for sale this space with an area of 251 m². These commercial premises will be delivered as a concrete shell, with floor reserve, installed storefronts, and exterior aluminum joinery in anthracite gray. Restaurant activities are allowed with the possibility of installing gas according to plans. The ground floor shops offer exceptional visibility from the intersection. With dual orientation and no load-bearing walls, they allow for optimal organization of sales or exhibition spaces. Restaurant activity possible. Location: ZAC Bus line 10 at 150 meters Bus line 21 at 450 meters Bus lines 9, 35, and 36 at 500 meters Future line B of the BHNS at 50 meters Train SNCF station 6 minutes by car The building: The buildings take on a factory-like appearance, bridging the site's industrial past with its commercial purpose. Technical characteristics: Delivered as a concrete shell, with floor reserve Installed storefronts and exterior aluminum joinery in anthracite gray Restaurant activities allowed Accessible for people with reduced mobility Public access building 6 parking spaces Financial conditions: Sale price €521,395 excluding tax, or €1,930 excluding tax/m² Agency fee excluding tax 5% of the sale price paid by the buyer Sale price including agency fees €547,465 excluding tax Notary fees: 3% Property tax: Not specified Taxation: VAT Availability: 2nd quarter 2027 This property is presented to you by Coisnon Francois, consultant at RÉSEAU BROKERS®. Your time is valuable. I offer personalized support at 0638824100 RESEAU BROKERS® is the first business real estate firm structured as a network of agents. With our team of 80 Brokers, we cover a large part of the national territory to assist our client companies in their search for shops, offices, activity spaces, buildings, and land. www.reseau-brokers.com In a condominium of 19 lots. No ongoing procedures. Not subject to energy performance diagnosis. Information on the risks to which this property is exposed is available on the Géorisques website: georisques.gouv.fr. Your RESEAU BROKERS® advisor: François Coisnon Commercial agent (Individual business) RSAC 832.196.380 RCP 163007993 Y 001
NEARBY MAJOR RETAILERS
Presented by
"63100 Clermont-Ferrand"
Hmm, there seems to have been an error sending your message. Please try again.
Thanks! Your message was sent.
