Your email has been sent.
14460 Colombelles 3,046 sq ft Retail Unit Offered at £175,655


Some information has been automatically translated.
Description
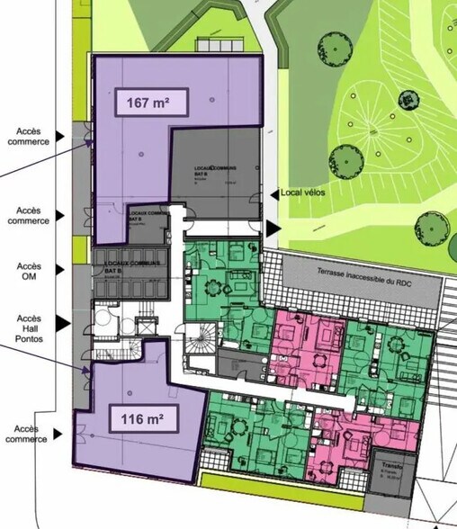
Au sein d'un programme neuf en cours de construction, deux cellules commerciales vendues en VEFA, situées dans un environnement en plein développement à proximité immédiate des axes principaux. Surface totale possible d'environ 283 m², divisible à partir de 116 m². Deux surfaces disponibles : 167 m² et 116 m². Il est encore possible de fusionner les deux locaux pour former un seul espace en modifiant l'implantation du local vélos. Les cellules sont situées en rez-de-chaussée d'un ensemble immobilier neuf à usage mixte. Ces locaux vous sont proposés à la vente par PROLOCAUX. Prestations - équipements : A vendre, local commercial d'environ 283 m² divisible à partir de 116 m² o Locaux livrés brutso Fluides en attenteo Vitrines en attenteo Accès indépendantso 4 stationnements en sous-solo Construction neuveo Livraison prévisionnelle : 3ème trimestre 2026o Possibilité d'adaptation des façades vitrées selon projet Vadim REBAUD, agent commercial PROLOCAUX - inscrit au RSAC de Rouen sour le numéro 994 377 547
Property Facts
| Price | £175,655 | Property Type | Retail (Unit) |
| Unit Size | 3,046 sq ft | Sale Type | Owner Occupier |
| No. Units | 1 |
| Price | £175,655 |
| Unit Size | 3,046 sq ft |
| No. Units | 1 |
| Property Type | Retail (Unit) |
| Sale Type | Owner Occupier |
1 Unit Available
| Unit Size | 3,046 sq ft | Unit Use | Retail |
| Price | £175,655 | Sale Type | Owner Occupier |
| Price Per sq ft | £57.67 | Agency Fee | 8.00% of sale price |
| Unit Size | 3,046 sq ft |
| Price | £175,655 |
| Price Per sq ft | £57.67 |
| Unit Use | Retail |
| Sale Type | Owner Occupier |
| Agency Fee | 8.00% of sale price |
Presented by
PROLOCAUX
"14460 Colombelles"
Hmm, there seems to have been an error sending your message. Please try again.
Thanks! Your message was sent.
