Log In/Sign up
Your email has been sent.
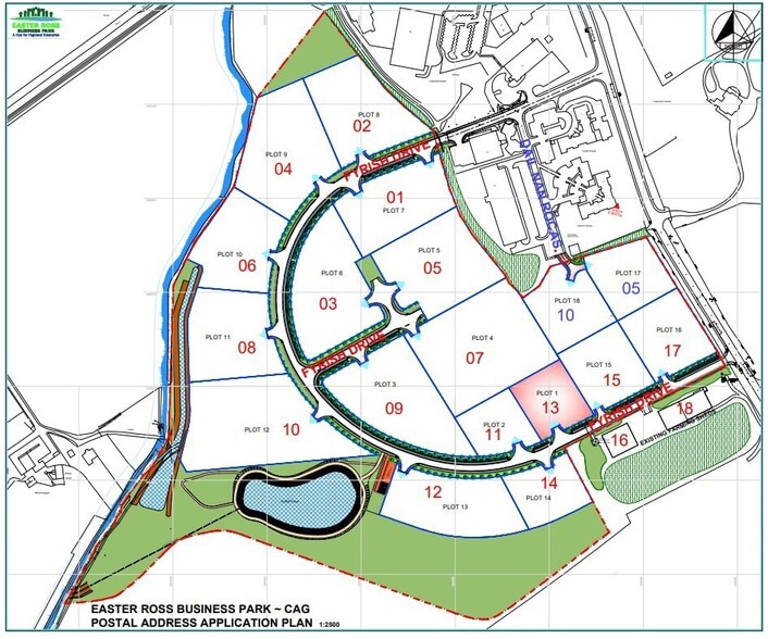
Investment Highlights
- Over 32 acres available.
- Located within the Cromarty Firth Green Freeport.
- Ideal for Industrial, office or dedicated yard space.
Executive Summary
Over 32 acres of flexible development space, ideal for industrial use, office space, or dedicated yard space - or even a combination of all three. Zoned areas ready for development:- flexible unit sizes from small to extra-large- custom plots, including two acres or more- design and fit-out to suit your business needs. Join a thriving business community located in the Inverness and Cromarty Firth Green Freeport.
Property Facts
| Sale Type | Investment | Property Subtype | Commercial |
| Tenure | Freehold | Proposed Use | Commercial |
| No. Plots | 1 | Total Plot Size | 5.70 ac |
| Property Type | Land |
| Sale Type | Investment |
| Tenure | Freehold |
| No. Plots | 1 |
| Property Type | Land |
| Property Subtype | Commercial |
| Proposed Use | Commercial |
| Total Plot Size | 5.70 ac |
1 Plot Available
Plot
| Total Plot Size | 5.70 ac |
| Total Plot Size | 5.70 ac |
1 1
1 of 4
Videos
Matterport 3D Exterior
Matterport 3D Tour
Photos
Street View
Street
Map
1 of 1
Presented by
Easter Ross Business Park
Already a member? Log In
Hmm, there seems to have been an error sending your message. Please try again.
Thanks! Your message was sent.



