Your email has been sent.
Some information has been automatically translated.
Description
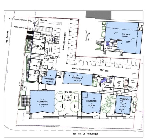
We offer for sale a commercial space in Genas with an area of 113m². Restoration is possible in the room which is equipped with an extraction duct. The lot is delivered raw concrete, fluid waiting. Commercial space of 113m² - GENAS - Extraction duct Local delivered raw Showcases Pending networks 3 parking spaces included Prohibited activities: Hair salon Real estate agency Banks Area of establishment: City center Visibility:Good Street type:Street Sidewalk: High purchase Q Pedestrian flow: Medium Vehicle flow: medium Number of showcases: 2 - Linear window 7 meters - Linear window 9 meters Street angle: yes Fume extractor: yes Location/Transport: SNCF Lyon-St-Exupéry-TGV (France) Bus Lines 28, 29, 48
Property Facts
| Price | £278,326 | Property Type | Retail (Unit) |
| Unit Size | 1,216 sq ft | Sale Type | Owner Occupier |
| No. Units | 1 |
| Price | £278,326 |
| Unit Size | 1,216 sq ft |
| No. Units | 1 |
| Property Type | Retail (Unit) |
| Sale Type | Owner Occupier |
1 Unit Available
| Unit Size | 1,216 sq ft | Unit Use | Retail |
| Price | £278,326 | Sale Type | Owner Occupier |
| Price Per sq ft | £228.89 |
| Unit Size | 1,216 sq ft |
| Price | £278,326 |
| Price Per sq ft | £228.89 |
| Unit Use | Retail |
| Sale Type | Owner Occupier |
Presented by
"69740 Genas"
Hmm, there seems to have been an error sending your message. Please try again.
Thanks! Your message was sent.



