Your email has been sent.
Highlights
- Located on A413, 9 miles from Buckingham & Aylesbury
- Bus stop outside the property
- In a rural location
Features
All Available Space(1)
Display Rent as
- Space
- Size
- Term
- Rate
- Space Use
- Condition
- Available
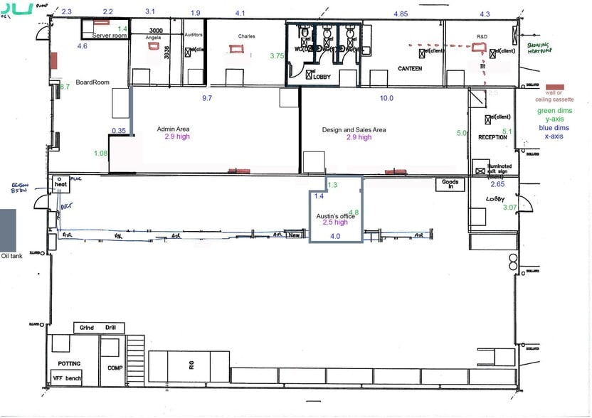
This detached property on a large plot is a metal clad, steel portal framed warehouse with a large yard and parking area to the front, and parking and grass area to the rear. The property is split into two and benefits from an office area and a warehouse. The office benefits from a reception area, large kitchen/breakout area, toilet accommodation, private office and boardroom with feature windows facing the fields. Cat5 cabling, Cat2 lighting, some floor boxes, air conditioning and fresh air heat exchange system, fibre broadband, carpeting and a large kitchen with base units, wall units and space for a table are also provided. The warehouse is accessed via a roller shutter door to the front and the rear with high level LED lights, oil fired boiler, concrete floor with a plastic overfloor, small office in the corner of the warehouse and a separate office with air conditioning in the centre of the warehouse. Externally the property has hedges to the side of the boundary and excellent signage opportunities.
- Use Class: B2
- Metal clad, steel portal framed warehouse
- Includes 2,622 sq ft of dedicated office space
| Space | Size | Term | Rate | Space Use | Condition | Available |
| Ground | 6,286 sq ft | Negotiable | £11.93 /sq ft pa £0.99 /sq ft pcm £74,992 pa £6,249 pcm | Industrial | Partial Fit-Out | Now |
Ground
| Size |
| 6,286 sq ft |
| Term |
| Negotiable |
| Rate |
| £11.93 /sq ft pa £0.99 /sq ft pcm £74,992 pa £6,249 pcm |
| Space Use |
| Industrial |
| Condition |
| Partial Fit-Out |
| Available |
| Now |
Ground
| Size | 6,286 sq ft |
| Term | Negotiable |
| Rate | £11.93 /sq ft pa |
| Space Use | Industrial |
| Condition | Partial Fit-Out |
| Available | Now |
This detached property on a large plot is a metal clad, steel portal framed warehouse with a large yard and parking area to the front, and parking and grass area to the rear. The property is split into two and benefits from an office area and a warehouse. The office benefits from a reception area, large kitchen/breakout area, toilet accommodation, private office and boardroom with feature windows facing the fields. Cat5 cabling, Cat2 lighting, some floor boxes, air conditioning and fresh air heat exchange system, fibre broadband, carpeting and a large kitchen with base units, wall units and space for a table are also provided. The warehouse is accessed via a roller shutter door to the front and the rear with high level LED lights, oil fired boiler, concrete floor with a plastic overfloor, small office in the corner of the warehouse and a separate office with air conditioning in the centre of the warehouse. Externally the property has hedges to the side of the boundary and excellent signage opportunities.
- Use Class: B2
- Includes 2,622 sq ft of dedicated office space
- Metal clad, steel portal framed warehouse
Property Overview
The property is located between Granborough and North Marston which is equidistant between Buckingham and Aylesbury. Whilst the property is in a rural location, easy access is available to either town and public transport is available with a bus stop outside the property.
Warehouse Facility Facts
Presented by
Hart Hill Barn | Granborough Rd
Hmm, there seems to have been an error sending your message. Please try again.
Thanks! Your message was sent.







