Your email has been sent.
The Courtyard Heath Rd 819 - 1,750 sq ft of Retail Space Available in Petersfield GU31 4DX



Highlights
- Attractive market town
- Situated in a busy area near public transport and carpark
- Strategically located on the A3
Space Availability (2)
Display Rent as
- Space
- Size
- Term
- Rate
- Type
| Space | Size | Term | Rate | Type | ||
| Ground, Ste Left | 931 sq ft | Negotiable | £20.95 /sq ft pa £1.75 /sq ft pcm £19,500 pa £1,625 pcm | Fully Repairing & Insuring | ||
| Ground, Ste Right | 819 sq ft | Negotiable | £23.81 /sq ft pa £1.98 /sq ft pcm £19,500 pa £1,625 pcm | Fully Repairing & Insuring |
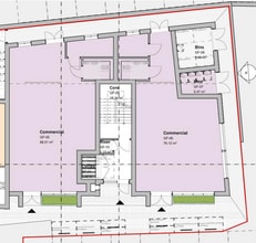
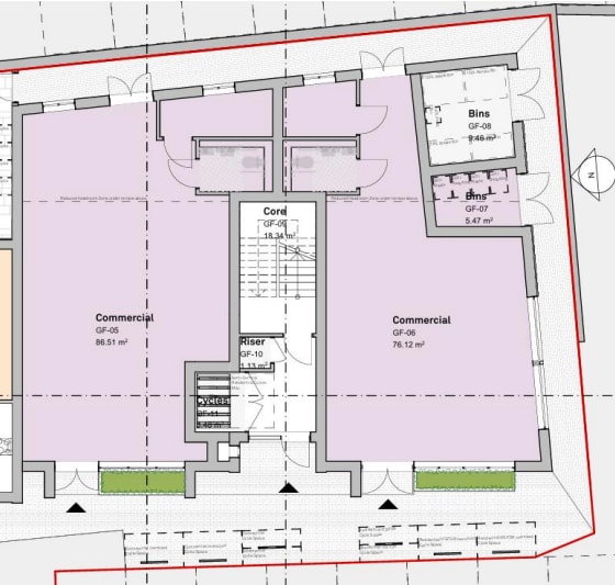
Ground, Ste Left
Upon compleon, the development will comprise two newly constructed ground floor commercial retail units finished to a shell condion with services capped. Praccal compleon is ancipated in Spring 2027. The property is available to let by way of a new full repairing and insuring lease for a term to be agreed at a commencing rent of £19,500 per unit, per annum exclusive.
- Use Class: E
- Highly Desirable End Cap Space
- Can be combined with additional space(s) for up to 1,750 sq ft of adjacent space
- Private Restrooms
- Open plan accommodaon
- To be finished to shell with services capped
- Brand new unit
Ground, Ste Right
Upon compleon, the development will comprise two newly constructed ground floor commercial retail units finished to a shell condion with services capped. Praccal compleon is ancipated in Spring 2027. The property is available to let by way of a new full repairing and insuring lease for a term to be agreed at a commencing rent of £19,500 per unit, per annum exclusive.
- Use Class: E
- Highly Desirable End Cap Space
- Can be combined with additional space(s) for up to 1,750 sq ft of adjacent space
- Private Restrooms
- Open plan accommodaon
- To be finished to shell with services capped
- Brand new unit
Service Types
The rent amount and service type that the tenant (lessee) will be responsible to pay to the landlord (lessor) throughout the lease term is negotiated prior to both parties signing a lease agreement. The service type will vary depending upon the services provided. Contact the listing agent for a full understanding of any associated costs or additional expenses for each service type.
1. Fully Repairing & Insuring: All obligations for repairing and insuring the property (or their share of the property) both internally and externally.
2. Internal Repairing Only: The tenant is responsible for internal repairs only. The landlord is responsible for structural and external repairs.
3. Internal Repairing & Insuring: The tenant is responsible for internal repairs and insurance for internal parts of the property only. The landlord is responsible for structural and external repairs.
4. Negotiable or TBD: This is used when the leasing contact does not provide the service type.
Property Facts
| Total Space Available | 1,750 sq ft | Net Internal Area (NIA) | 1,750 sq ft |
| Property Type | Retail | Year Built | 2027 |
| Property Subtype | Shopfront Retail / Residential | Construction Status | Proposed |
| Total Space Available | 1,750 sq ft |
| Property Type | Retail |
| Property Subtype | Shopfront Retail / Residential |
| Net Internal Area (NIA) | 1,750 sq ft |
| Year Built | 2027 |
| Construction Status | Proposed |
About the Property
This schemes comprises 4 townhouses, 4 apartments and 2 commercial/retail units. Petersfield is an attractive market town strategically located on the A3 London to Portsmouth trunk road approximately 18 miles to the north of Portsmouth and 25 miles to the south of Guildford. Road communications are excellent and in addition Petersfield benefits from a fast frequent train service to London Waterloo and to Portsmouth and the South Coast. The property is situated on The Courtyard, opposite the open air swimming pool and Petersfield festival theatre, a short walk into the town centre. The town offers a wide range of retail and food & beverage including Waitrose, Gails Bakery, Mint Velvet, Crew Clothing, Cafe Nero and Annie Jones.
- Bus Route
- Security System
Nearby Major Retailers
Presented by
The Courtyard | Heath Rd
Hmm, there seems to have been an error sending your message. Please try again.
Thanks! Your message was sent.


