Log In/Sign up
Your email has been sent.
Investment Highlights
- Number of development sites which are fully serviced and platformed
- Provides affordable green heat energy via a district heating network
- Located on the Business Park
Executive Summary
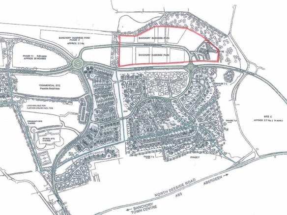
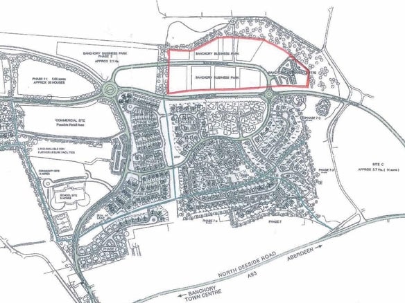
The subjects comprise of a number of development sites which are fully serviced and platformed and consequently could accommodate development upon the granting of the appropriate site specific detailed planning consent. The sites have access to main services via Burn O'Bennie Road. The Hill of Banchory Biomass Energy Centre is located on the Business Park and provides affordable green heat energy via a district heating network.
Property Facts
| Sale Type | Investment | Property Type | Land |
| Tenure | Freehold | Property Subtype | Commercial |
| No. Plots | 1 | Total Plot Size | 9.37 ac |
| Sale Type | Investment |
| Tenure | Freehold |
| No. Plots | 1 |
| Property Type | Land |
| Property Subtype | Commercial |
| Total Plot Size | 9.37 ac |
1 Plot Available
Plot
| Total Plot Size | 9.37 ac |
| Total Plot Size | 9.37 ac |
The subjects comprise of a number of development sites which are fully serviced and platformed and consequently could accommodate development upon the granting of the appropriate site specific detailed planning consent. The sites have access to main
1 1
1 of 2
Videos
Matterport 3D Exterior
Matterport 3D Tour
Photos
Street View
Street
Map
1 of 1
Presented by
Hill Of Banchory - Banchory Business Park
Already a member? Log In
Hmm, there seems to have been an error sending your message. Please try again.
Thanks! Your message was sent.

