Log In/Sign up
Enter your email to login or create a free account
This feature is unavailable at the moment.
We apologize, but the feature you are trying to access is currently unavailable. We are aware of this issue and our team is working hard to resolve the matter.
Please check back in a few minutes. We apologize for the inconvenience.
- LoopNet Team
This Property is no longer advertised on LoopNet.co.uk.
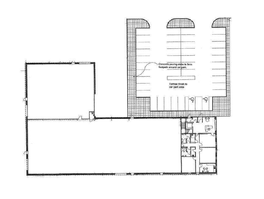
Hill Of Tramaud
Bridge Of Don AB23 8BQ
Industrial Unit · Property To Rent

Highlights
- Brand new industrial unit with office space
- Great Transport Links.
- Car Parking
Property Overview
A two storey industrial property of steel frame construction.
Property Facts
| Property Type | Industrial | Net Internal Area (NIA) | 20,073 sq ft |
| Property Subtype | Warehouse | Construction Status | Proposed |
| Property Type | Industrial |
| Property Subtype | Warehouse |
| Net Internal Area (NIA) | 20,073 sq ft |
| Construction Status | Proposed |
Features and Amenities
- Yard
- Roller Shutters
- Air Conditioning
- Raised Floor System
Utilities
- Lighting
- Water - City
- Sewer - City
Links
Listing ID: 4244979
Date on Market: 25/09/2016
Last Updated:
Address: Hill Of Tramaud, Bridge Of Don AB23 8BQ
The Industrial Property at Hill Of Tramaud, Bridge Of Don, AB23 8BQ is no longer being advertised on LoopNet.co.uk. Contact the agent for information on availability.
INDUSTRIAL PROPERTIES IN NEARBY NEIGHBOURHOODS
- South Of Dee Commercial Properties
- Dyce & Bucksburn Commercial Properties
- Aberdeen West End Commercial Properties
- Westhill & Kingswells Commercial Properties
- Bucksburn Commercial Properties
- Nigg Commercial Properties
- Woodside Aberdeen City Commercial Properties
- Potterton Commercial Properties
- Findon Aberdeenshire Commercial Properties
- Altens Commercial Properties
- Kingswells Commercial Properties
NEARBY LISTINGS
- 51 Victoria Rd, Aberdeen
- 218 Rosemount Pl, Aberdeen
- 89 Skene Sq, Aberdeen
- Woodside Rd, Aberdeen
- 55 Holburn St, Aberdeen
- 23-25 Union St, Aberdeen
- 29 Holland St, Aberdeen
- 415 Great Northern Rd, Aberdeen
- 115 Holburn St, Aberdeen
- 18 Marywell St, Aberdeen
- Howe Moss Dr, Dyce
- 27 Denmore Rd, Bridge Of Don
- 47-49 Huntly St, Aberdeen
- 47 Regent Quay, Aberdeen
1 of 1
Videos
Matterport 3D Exterior
Matterport 3D Tour
Photos
Street View
Street
Map

Link copied
Your LoopNet account has been created!
Thank you for your feedback.
Please Share Your Feedback
We welcome any feedback on how we can improve LoopNet to better serve your needs.X
{{ getErrorText(feedbackForm.starRating, "rating") }}
255 character limit ({{ remainingChars() }} charactercharacters remainingover)
{{ getErrorText(feedbackForm.msg, "rating") }}
{{ getErrorText(feedbackForm.fname, "first name") }}
{{ getErrorText(feedbackForm.lname, "last name") }}
{{ getErrorText(feedbackForm.phone, "phone number") }}
{{ getErrorText(feedbackForm.phonex, "phone extension") }}
{{ getErrorText(feedbackForm.email, "email address") }}
You can provide feedback any time using the Help button at the top of the page.