Your email has been sent.
Investment Highlights
- Parking
- Versatile layout
- Roller shutter access
Executive Summary
Brand-new development of high-quality hybrid workshop and office units ideally located at Hutton Bank, Ripon.
3 Units Available
Unit 1
| Unit Size | 1,900 sq ft | Unit Use | Industrial |
| Price | £285,000 | Sale Type | Owner Occupier |
| Price Per sq ft | £150.00 | Tenure | Freehold |
| Unit Size | 1,900 sq ft |
| Price | £285,000 |
| Price Per sq ft | £150.00 |
| Unit Use | Industrial |
| Sale Type | Owner Occupier |
| Tenure | Freehold |
Description
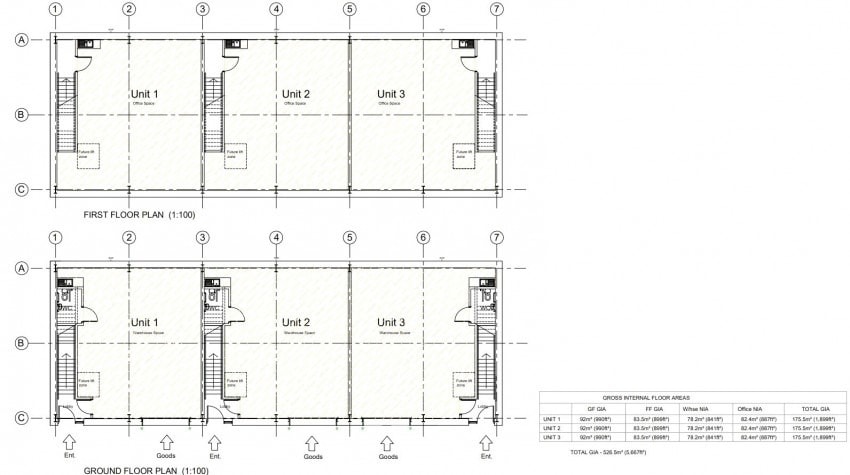
Ground Floor: Dedicated workshop/storage area with roller shutter access
First Floor: Well-appointed office accommodation with natural light and versatile layout.
A brand-new development of a high-quality hybrid workshop and office unit.
Sale Notes
Available Spring 2026 – For Sale or To Let.
This is an exceptional opportunity to secure modern, energy-efficient business space in a sought-after North Yorkshire location, just minutes from Ripon city centre and with excellent transport links.
Interior Photo
Interior Photo
Floor Plan
Floor Plan
Floor Plan
Unit 2
| Unit Size | 1,900 sq ft | Unit Use | Industrial |
| Price | £285,000 | Sale Type | Owner Occupier |
| Price Per sq ft | £150.00 | Tenure | Freehold |
| Unit Size | 1,900 sq ft |
| Price | £285,000 |
| Price Per sq ft | £150.00 |
| Unit Use | Industrial |
| Sale Type | Owner Occupier |
| Tenure | Freehold |
Description
Ground Floor: Dedicated workshop/storage area with roller shutter access
First Floor: Well-appointed office accommodation with natural light and versatile layout.
A brand-new development of a high-quality hybrid workshop and office unit.
Sale Notes
Available Spring 2026 – For Sale or To Let.
This is an exceptional opportunity to secure modern, energy-efficient business space in a sought-after North Yorkshire location, just minutes from Ripon city centre and with excellent transport links.
Interior Photo
Interior Photo
Floor Plan
Floor Plan
Floor Plan
Unit 3
| Unit Size | 1,900 sq ft | Unit Use | Industrial |
| Price | £285,000 | Sale Type | Owner Occupier |
| Price Per sq ft | £150.00 | Tenure | Freehold |
| Unit Size | 1,900 sq ft |
| Price | £285,000 |
| Price Per sq ft | £150.00 |
| Unit Use | Industrial |
| Sale Type | Owner Occupier |
| Tenure | Freehold |
Description
Ground Floor: Dedicated workshop/storage area with roller shutter access
First Floor: Well-appointed office accommodation with natural light and versatile layout.
A brand-new development of a high-quality hybrid workshop and office unit.
Sale Notes
Available Spring 2026 – For Sale or To Let.
This is an exceptional opportunity to secure modern, energy-efficient business space in a sought-after North Yorkshire location, just minutes from Ripon city centre and with excellent transport links.
Interior Photo
Interior Photo
Floor Plan
Floor Plan
Floor Plan
Property Facts
| Total Property Size | 5,700 sq ft | Floors | 2 |
| Property Type | Industrial | Typical Floor Size | 3,003 sq ft |
| Property Subtype | Distribution Warehouses | Year Built | 2026 |
| Costar Property Class | B |
| Total Property Size | 5,700 sq ft |
| Property Type | Industrial |
| Property Subtype | Distribution Warehouses |
| Costar Property Class | B |
| Floors | 2 |
| Typical Floor Size | 3,003 sq ft |
| Year Built | 2026 |
Amenities
- Courtyard
- Security System
- Storage Space
- Smoke Detector
Utilities
- Lighting
- Water
- Sewer
- Heating
Presented by
Hutton Bank
Hmm, there seems to have been an error sending your message. Please try again.
Thanks! Your message was sent.




