Your email has been sent.
Land at Park Road - Consented Mixed-Use Development Opportunity 0.94 Acres of Commercial Land in Faringdon SN7 7FU



Investment Highlights
- The site is approximately 0.94acres comprising of grassland
- The site benefits from planning permission (P17/V2407/FUL)
- Offers invited on an Unconditional or Subject to Planning offers basis
- Bought to the market on behalf of Ede Holdings Limited and Howard Tenens Distribution Limited
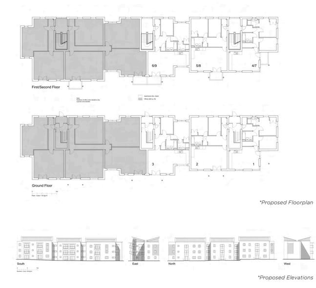
Executive Summary
Property Facts
| Sale Type | Investment | Property Subtype | Commercial |
| Tenure | Freehold | Proposed Use | Office |
| No. Plots | 1 | Total Plot Size | 0.94 ac |
| Property Type | Land |
| Sale Type | Investment |
| Tenure | Freehold |
| No. Plots | 1 |
| Property Type | Land |
| Property Subtype | Commercial |
| Proposed Use | Office |
| Total Plot Size | 0.94 ac |
1 Plot Available
Plot
| Total Plot Size | 0.94 ac |
| Total Plot Size | 0.94 ac |
The site is approximately 0.94acres comprising of grassland which is broadly rectangular in shape.
Description
The Site is approximately 0.94 acres (0.38 ha) of grassland which is broadly rectangular in shape. The north-west part of the site was previously occupied by two houses(numbers. 33 and 35 Park Road) which were demolished a number of years ago to enable the redevelopment of the site. The site is therefore considered to be previously developed (or brownfield) land. The site is accessed off Park Road, off the access that was constructed as part of the residential Ede Homes scheme on adjoining land to the south-east. To the north and west of the site there is a well established industrial park, which can be accessed via Pioneer Road. Occupiers of these industrial units include: Toolstation Faringdon, Protyre Faringdon, DMW Landscapes and Aspect Woodworking. To the south of the site is the Bloor Homes residential development ‘Oriel Gardens’. Whilst part of this development is still under construction, there are some units now available for purchase. Included within the wider outline application for the Bloor Homes scheme was an extra care facility. This is 60apartment Extra Care facility is currently under construction by Housing 21.
Presented by
Land at Park Road - Consented Mixed-Use Development Opportunity
Hmm, there seems to have been an error sending your message. Please try again.
Thanks! Your message was sent.
