Your email has been sent.
Land South of Funtley Rd 0.32 Acres of Residential Land Offered at £215,000 in Fareham PO15 6DL


Investment Highlights
- Custom-build development
- Growing Residency
- South of Funtley Road
Executive Summary
Property Facts
| Price | £215,000 | Property Type | Land |
| Sale Type | Investment | Property Subtype | Residential |
| Sale Condition | Redevelopment Project | Proposed Use | Single Family Development |
| Tenure | Freehold | Total Plot Size | 0.32 ac |
| No. Plots | 1 |
| Price | £215,000 |
| Sale Type | Investment |
| Sale Condition | Redevelopment Project |
| Tenure | Freehold |
| No. Plots | 1 |
| Property Type | Land |
| Property Subtype | Residential |
| Proposed Use | Single Family Development |
| Total Plot Size | 0.32 ac |
1 Plot Available
Plot
| Price | £215,000 | Total Plot Size | 0.32 ac |
| Price Per ac | £671,875.00 |
| Price | £215,000 |
| Price Per ac | £671,875.00 |
| Total Plot Size | 0.32 ac |
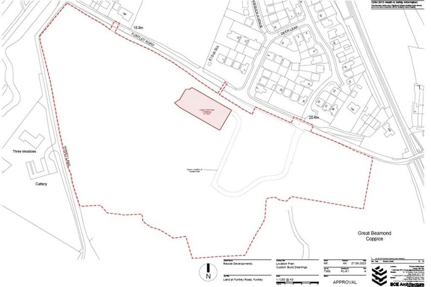
The surrounding land will be developed with a scheme of 119 affordable rented and shared ownership dwellings. The access to the custom build plots will be via the wider development site.
Description
A well-positioned parcel of land located to the south of Funtley Road, within the semi-rural village of Funtley, in the borough of Fareham, Hampshire. The site benefits from a desirable setting on the northern edge of Fareham, offering a balance of countryside character and accessibility to nearby urban amenities. Surrounded by a mix of open green space and established residential development, the land is situated in an area with a semi-rural feel while being within close proximity to key transport links, including the M27 motorway and Fareham railway station. The surrounding landscape includes mature trees, hedgerows, and open views, providing a scenic and tranquil environment. The land lies within an area that has seen steady residential growth and ongoing interest for potential development, subject to the necessary planning permissions. Its location within Hampshire places it within easy reach of the Solent coastline, Portsmouth, Southampton, and the South Downs National Park.
Presented by
Land South of Funtley Rd
Hmm, there seems to have been an error sending your message. Please try again.
Thanks! Your message was sent.
