Log In/Sign up
Your email has been sent.
Highlights
- The Studio - 710 sq ft.
- The Granary 594 sq ft.
All Available Space(1)
Display Rent as
- Space
- Size
- Term
- Rate
- Space Use
- Fit-Out
- Available
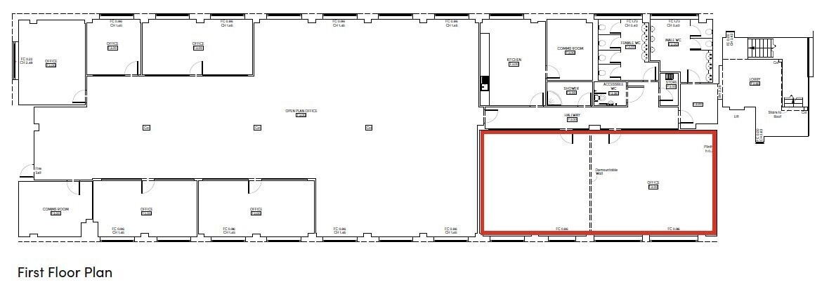
The first floor is an open plan office space ideal for a call centre or could be partitioned off into smaller suites.
- Use Class: E
- Fits 1 - 56 People
- Fully fitted kitchen
- Mostly Open Floor Plan Layout
- WC/Shower facilities
- Ceiling mounted light fittings
| Space | Size | Term | Rate | Space Use | Fit-Out | Available |
| 1st Floor | 1,000-6,929 sq ft | Negotiable | £12.00 /sq ft pa £1.00 /sq ft pcm £83,148 pa £6,929 pcm | Office | Shell And Core | 30 Days |
1st Floor
| Size |
| 1,000-6,929 sq ft |
| Term |
| Negotiable |
| Rate |
| £12.00 /sq ft pa £1.00 /sq ft pcm £83,148 pa £6,929 pcm |
| Space Use |
| Office |
| Fit-Out |
| Shell And Core |
| Available |
| 30 Days |
1st Floor
| Size | 1,000-6,929 sq ft |
| Term | Negotiable |
| Rate | £12.00 /sq ft pa |
| Space Use | Office |
| Fit-Out | Shell And Core |
| Available | 30 Days |
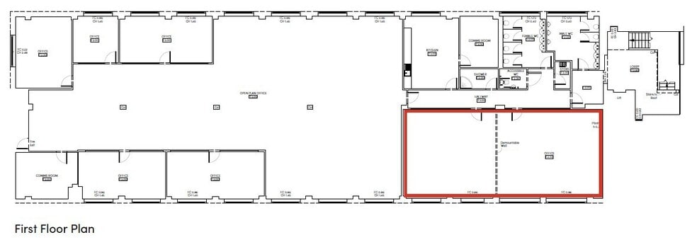
The first floor is an open plan office space ideal for a call centre or could be partitioned off into smaller suites.
- Use Class: E
- Mostly Open Floor Plan Layout
- Fits 1 - 56 People
- WC/Shower facilities
- Fully fitted kitchen
- Ceiling mounted light fittings
Property Overview
The Stiltz Building is located on Ledson Road, close to its junction of Southmoor Road, Roundthorn. The surrounding area is a mix of office and warehouse properties. Ledson Road is approximately 2 miles from Junction 3 of the M56 and 3 miles from Junction 5 of the M60.
- Security System
- EPC - C
- Central Heating
- DDA Compliant
- Demised WC facilities
- Perimeter Trunking
- Air Conditioning
Property Facts
Property Type
Office
Year Built/Renovated
1975/2009
Number of Floors
2
Property Size
12,614 sq ft
Costar Property Class
B
Typical Floor Size
6,125 sq ft
Clear Internal Height
9 ft
Parking
35 Surface Parking Spaces
Select Tenants
- Floor
- Tenant Name
- Industry
- GRND
- Edge Property Management Company Ltd
- Real Estate
- GRND
- Nexus Incentives Ltd
- Professional, Scientific, and Technical Services
- Multiple
- NHS Foundation Trust
- Health Care and Social Assistance
1 1
1 of 16
Videos
Matterport 3D Exterior
Matterport 3D Tour
Photos
Street View
Street
Map
1 of 1
Presented by
Company Not Provided
The Stiltz Building | Ledson Rd
Already a member? Log In
Hmm, there seems to have been an error sending your message. Please try again.
Thanks! Your message was sent.



