Your email has been sent.
69005 Lyon 1,636 sq ft Office Unit Offered at £237,433
Some information has been automatically translated.
Investment Highlights
- Quartier dynamique
Executive Summary
This property is located in a well-maintained condominium built in 1988, providing a functional and professional work environment. The premises, in good overall condition, offer numerous advantages such as excellent natural light and a flexible layout. The Point du Jour area is renowned for its accessibility and the presence of numerous shops and services.
1 Unit Available
Unit Lot 1
| Unit Size | 1,636 sq ft | Unit Use | Office |
| Price | £237,433 | Sale Type | Investment or Owner Occupier |
| Price Per sq ft | £145.13 | Agency Fee | 3.90% of sale price |
| Unit Size | 1,636 sq ft |
| Price | £237,433 |
| Price Per sq ft | £145.13 |
| Unit Use | Office |
| Sale Type | Investment or Owner Occupier |
| Agency Fee | 3.90% of sale price |
Description
Vente Bureaux 152 m²
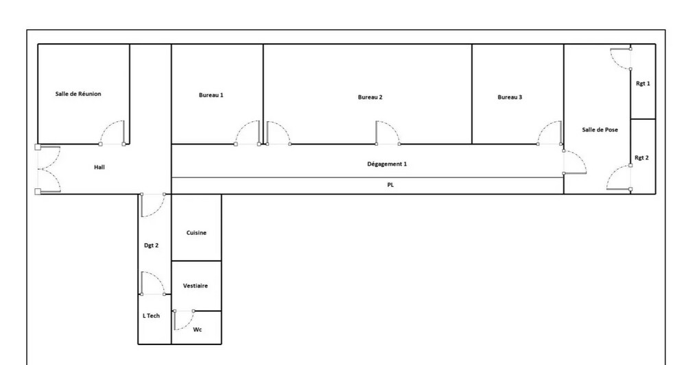
Vente d’un local professionnel situé en rez-de-chaussée, dans un secteur calme du 5e arrondissement de Lyon, à proximité du Point du Jour. Ce bien lumineux de 152 m² est parfaitement adapté aux professions libérales. Il se compose d’une salle d'attente, d’une salle de réunion, d’un open space, de 3 bureaux, d’une cuisine indépendante, d’un espace d'archivage et de WC indépendants. Deux garages sont disponibles en sus pour 20 000 € chacun.
Sale Notes
Le prix de vente est de 305 000 €, avec des honoraires d'agence à la charge de l’acquéreur (3,9 %).
Intérieur
Intérieur
Intérieur
Intérieur
Intérieur
Intérieur
Intérieur
Intérieur
Intérieur
Plan
Property Facts
| Total Property Size | > 50,000 sq ft | Floors | 4 |
| Property Type | Build-to-Rent (Unit) | Year Built | 1980 - 1989 |
| Property Subtype | Apartment | Tenancy | Single |
| Costar Property Class | C |
| Total Property Size | > 50,000 sq ft |
| Property Type | Build-to-Rent (Unit) |
| Property Subtype | Apartment |
| Costar Property Class | C |
| Floors | 4 |
| Year Built | 1980 - 1989 |
| Tenancy | Single |
Presented by
"69005 Lyon"
Hmm, there seems to have been an error sending your message. Please try again.
Thanks! Your message was sent.
