Your email has been sent.
69001 Lyon 1,313 sq ft Office / Retail Unit Offered at £561,204
Some information has been automatically translated.
Investment Highlights
- Climatisation
- Belle hauteur sous-plafond : 3,16 m
- Meublé
Executive Summary
Located in the heart of Lyon, this site offers an exceptional setting for a business looking to relocate to an environment that is both dynamic and prestigious. Nestled along the banks of the Saône River, it provides a pleasant workspace with stunning views of the water and immediate proximity to the city center. The area is particularly attractive for businesses, featuring a dense and diverse economic fabric that ranges from start-ups to major institutions. Accessibility is a key advantage, with efficient public transportation, self-service bike stations, and close access to major roadways. A variety of services are just steps away: restaurants, cafés, coworking spaces, and shops, making daily life easier for employees. This location perfectly combines the elegance of a historic district with the economic vibrancy of a major metropolis, offering an ideal setting for a company seeking visibility and comfort.
1 Unit Available
| Unit Size | 1,313 sq ft | Unit Use | Office / Retail |
| Price | £561,204 | Sale Type | Investment or Owner Occupier |
| Price Per sq ft | £427.42 | Agency Fee | 3.90% of sale price |
| Unit Size | 1,313 sq ft |
| Price | £561,204 |
| Price Per sq ft | £427.42 |
| Unit Use | Office / Retail |
| Sale Type | Investment or Owner Occupier |
| Agency Fee | 3.90% of sale price |
Description
Ce bureau de 122 m², entièrement rénové, offre un cadre de travail élégant et fonctionnel. Situé au rez-de-chaussée d’un immeuble de caractère, il bénéficie d’une entrée indépendante depuis la rue, facilitant l’accès et offrant une visibilité optimale. La belle hauteur sous plafond de 3,16 mètres accentue la sensation d’espace et de luminosité, tandis que la climatisation assure un confort optimal. L’aménagement moderne et soigné en fait un lieu idéal pour une activité professionnelle nécessitant à la fois une adresse prestigieuse et un environnement agréable.
Sale Notes
Proposé à la vente au prix de 650 000 €, ce bien représente une opportunité rare pour une acquisition pérenne. Son état impeccable et ses prestations de qualité garantissent une installation immédiate, sans travaux à prévoir. L'achat inclut une quote-part au sein d’une copropriété bien entretenue, ajoutant une dimension patrimoniale sécurisée à cet investissement.
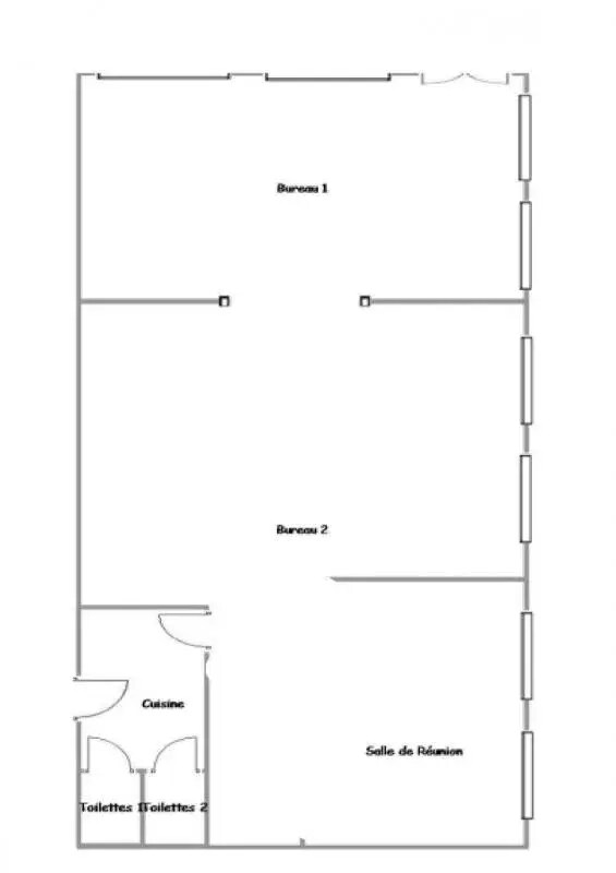
Plan
Property Facts
| Total Property Size | 10,000 - 60,000 sq ft | Costar Property Class | B |
| Property Type | Build-to-Rent (Unit) | Floors | 7 |
| Property Subtype | Apartment | Year Built | 1870 - 1879 |
| Total Property Size | 10,000 - 60,000 sq ft |
| Property Type | Build-to-Rent (Unit) |
| Property Subtype | Apartment |
| Costar Property Class | B |
| Floors | 7 |
| Year Built | 1870 - 1879 |
Amenities
Site Amenities
- Waterfront
- Key Fob Entry
Presented by
"69001 Lyon"
Hmm, there seems to have been an error sending your message. Please try again.
Thanks! Your message was sent.
