Your email has been sent.
69006 Lyon Light Industrial Unit Offered at £561,204



Some information has been automatically translated.
Description
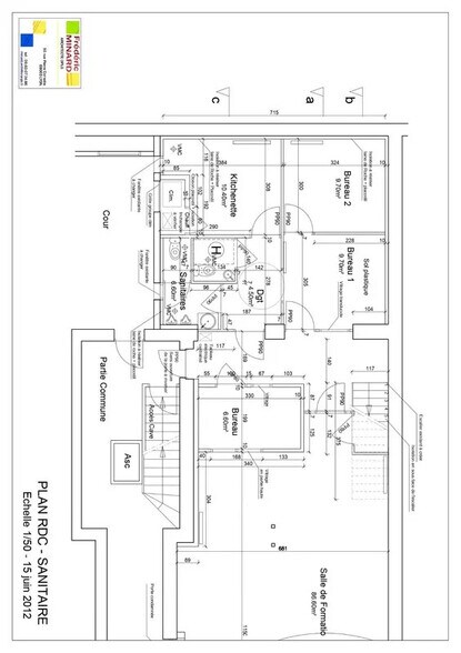
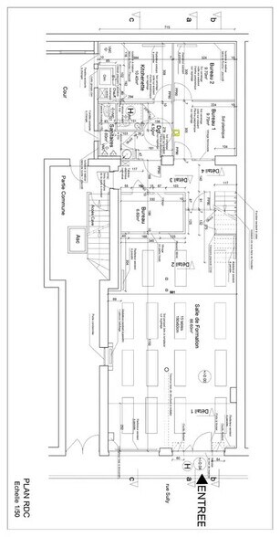
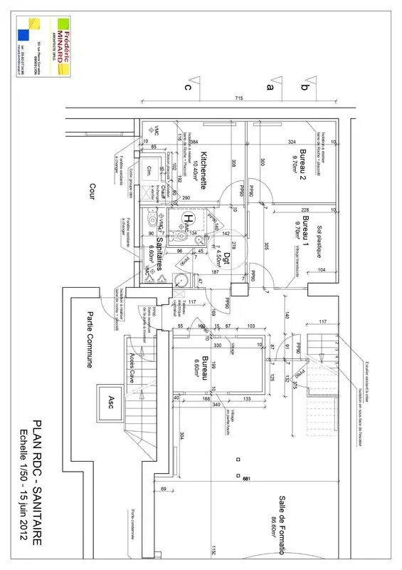
Vente Mur Lyon 6ème Centre Formation Kiné 6 Pièces Principal Année Construction 1900 191M2 650000€ FAI Local / Bureaux / Immobilier 24 Rue Sully 69006 Date Construction 1900 Surface loi Carrez totale : 191,04 m² Surface au sol totale : 203,98 m² Surface des locaux : 200 m2 . Rez-de-chaussée : Salle de formation, bureau, box, kitchenette, sanitaires. Mezzanine : Salle de formation, bureau. Effectif : 50 personnes + 2 personnels dont 30 personnes en rez-de-chaussée et 20 personnes à l'étage. Activité Pratiquer : Centre de Formation Kiné Proche Metro A Foch Bus Commerce Ecole 650000€ FAI Taxe Foncière 2050€ Annuel Charges Locative 1200€ Annuel Ca 2023- 33600€ loyer Pratiquer Annuel 32400€ Copropriété 2135€13 Annuel Ass Multirisque 309€19 DESCRIPTION Complète 6 Pièces Principal Total 14 Pièces Clim Réversible , Thermostat , Volet roulant * Range Vélo Sur cours Carrez Surface - Salle d'eau 2,75 m2 - Wc 1 .1,12 m2 - Wc 2. 1,9 1m2 - Hall .12,21 m2 Embrasure de porte +emmarchement - Bureau 1. 8,2 m2 - Salle 1.- 75,5 m2 Hauteur de moins de 1,80m - Dégagement 4,07 m2 - Cuisine 11,9 m2 - Bureau 2. 11,63 m2 - Bureau 3 .7,5 m2 - Palier 2,31m2 - Salle 2 .36,6 m2 Hauteur de moins de 1,80m -Salle 3. 15,35 m2 -Combles - Grenier 0 .8,15 M2 Moins de 8 M2 à une hauteur de plus de 1,80m Sous-Sol - Cave 0 - 40,9M2 Nombre de lots de la copropriété: 1, Montant moyen de la quote-part annuelle de charges (budget prévisionnel) : 2135€ soit 177€ par mois. Les honoraires sont à la charge du vendeur. Les informations sur les risques auxquels ce bien est exposé sont disponibles sur le site Géorisques : www. georisques. gouv. fr. Contactez Esther BOMPARD Entrepreneur Individuel, Agent commercial OptimHome (RSAC N°813 332 483 Greffe de VIENNE) 07 45 05 51 25 (réf. 587953 )
Property Facts
| Price | £561,204 | Total Property Size | 2,185 sq ft |
| Unit Size | 2,185 sq ft | Property Type | Light Industrial (Unit) |
| No. Units | 1 | Sale Type | Owner Occupier |
| Price | £561,204 |
| Unit Size | 2,185 sq ft |
| No. Units | 1 |
| Total Property Size | 2,185 sq ft |
| Property Type | Light Industrial (Unit) |
| Sale Type | Owner Occupier |
1 Unit Available
| Unit Size | 2,185 sq ft | Unit Use | Light Industrial |
| Price | £561,204 | Sale Type | Owner Occupier |
| Price Per sq ft | £256.84 | Property Tax | £0.81 /sq ft pa |
| Unit Size | 2,185 sq ft |
| Price | £561,204 |
| Price Per sq ft | £256.84 |
| Unit Use | Light Industrial |
| Sale Type | Owner Occupier |
| Property Tax | £0.81 /sq ft pa |
Presented by
Optimhome
"69006 Lyon"
Hmm, there seems to have been an error sending your message. Please try again.
Thanks! Your message was sent.
