Your email has been sent.
54000 Nancy 1,227 sq ft Retail Unit Offered at £213,379



Some information has been automatically translated.
Description
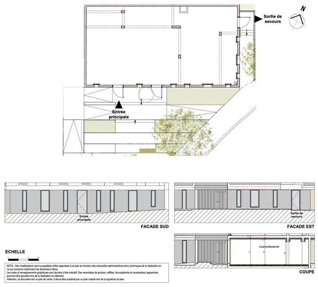
Advenis Lorraine is offering a unique opportunity to acquire a ground-floor retail unit in a residential building to be constructed in the vibrant city of Nancy. With a total area of approximately 113.76 m² (1,224 sq. ft.), this space offers excellent potential for a wide range of commercial activities, benefiting from exceptional visibility on a highly trafficked thoroughfare. Its strategic location and layout make it an ideal space to attract both local customers and passersby. This retail unit is a smart choice for investors or entrepreneurs looking to establish their business in a rapidly growing area. In addition to its high visibility, the property also includes two private parking spaces available as an add-on, providing added convenience for customers or staff. These parking spots are a rare and valuable asset, especially in an urban area where parking can be limited. The location of this retail unit is another standout feature. Situated in a neighborhood of Nancy, near the Grande Sapinière, the address is particularly well-connected. It benefits from close proximity to public transportation, making it easily accessible for both local residents and visitors. Additionally, quick access to major highways, including the A31 and A33, ensures seamless connectivity to other parts of the region. This advantageous geographic position enhances the site's potential foot traffic and appeal for future occupants. The unit is scheduled for delivery in the second quarter of 2025 and will be handed over in a shell condition. This allows future owners or tenants to customize the interior layout to meet their specific needs and the requirements of their business. A shell delivery provides the flexibility to design the space optimally, whether for retail, services, or even office use, ensuring compliance with industry standards or current market trends. In summary, this retail unit offered by Advenis Lorraine represents an ideal opportunity to establish a presence in a dynamic area of Nancy, combining visibility, accessibility, and adaptability. With delivery slated for 2025, this property is ready to accommodate a variety of business ventures and adapt to the vision of its future owners.
Property Facts
| Price | £213,379 | Property Type | Retail (Unit) |
| Unit Size | 1,227 sq ft | Sale Type | Owner Occupier |
| No. Units | 1 |
| Price | £213,379 |
| Unit Size | 1,227 sq ft |
| No. Units | 1 |
| Property Type | Retail (Unit) |
| Sale Type | Owner Occupier |
1 Unit Available
| Unit Size | 1,227 sq ft | Unit Use | Retail |
| Price | £213,379 | Sale Type | Owner Occupier |
| Price Per sq ft | £173.90 | Agency Fee | 7.00% of sale price |
| Unit Size | 1,227 sq ft |
| Price | £213,379 |
| Price Per sq ft | £173.90 |
| Unit Use | Retail |
| Sale Type | Owner Occupier |
| Agency Fee | 7.00% of sale price |
Presented by
"54000 Nancy"
Hmm, there seems to have been an error sending your message. Please try again.
Thanks! Your message was sent.
