Log In/Sign up
Enter your email to login or create a free account
This feature is unavailable at the moment.
We apologize, but the feature you are trying to access is currently unavailable. We are aware of this issue and our team is working hard to resolve the matter.
Please check back in a few minutes. We apologize for the inconvenience.
- LoopNet Team
This Property is no longer advertised on LoopNet.co.uk.
Ohio Ave
Salford M50 2GT
Property To Rent

Highlights
- Located within MediaCity UK
- Rent on Application
- Ground Floor Reception
Property Overview
Central Park is sited in an excellent location within MediaCityUK and close to Manchester City Centre’s bustling business district.
- Fenced Lot
- Security System
- Signage
- Wheelchair Accessible
- Accent Lighting
- Reception
- Demised WC facilities
- Perimeter Trunking
- Suspended Ceilings
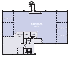
Property Facts
Property Type
Office
Year Built
1987
Number of Floors
2
Property Size
9,232 sq ft
Costar Property Class
C
Typical Floor Size
4,616 sq ft
Parking
32 Surface Parking Spaces
Listing ID: 8229567
Date on Market: 20/07/2017
Last Updated:
Address: Ohio Ave, Salford M50 2GT
The Office Property at Ohio Ave, Salford, M50 2GT is no longer being advertised on LoopNet.co.uk. Contact the agent for information on availability.
OFFICE PROPERTIES IN NEARBY NEIGHBOURHOODS
NEARBY LISTINGS
- 1 Exchange Quay, Manchester
- Anchorage Quay, Salford
- 19 Mason St, Manchester
- 55 Princess St, Manchester
- 55 King St, Manchester
- 101 Princess St, Manchester
- Plymouth Grove, Manchester
- 188 Moorside Rd, Manchester
- Vale Park Way, Manchester
- Chester Rd, Manchester
- 321 Liverpool Rd, Manchester
- 1 Cross St, Sale
- 34 John Dalton St, Manchester
- 22 St John St, Manchester
- 49 Church St, Manchester
1 of 1
Videos
Matterport 3D Exterior
Matterport 3D Tour
Photos
Street View
Street
Map

Link copied
Your LoopNet account has been created!
Thank you for your feedback.
Please Share Your Feedback
We welcome any feedback on how we can improve LoopNet to better serve your needs.X
{{ getErrorText(feedbackForm.starRating, "rating") }}
255 character limit ({{ remainingChars() }} charactercharacters remainingover)
{{ getErrorText(feedbackForm.msg, "rating") }}
{{ getErrorText(feedbackForm.fname, "first name") }}
{{ getErrorText(feedbackForm.lname, "last name") }}
{{ getErrorText(feedbackForm.phone, "phone number") }}
{{ getErrorText(feedbackForm.phonex, "phone extension") }}
{{ getErrorText(feedbackForm.email, "email address") }}
You can provide feedback any time using the Help button at the top of the page.