Log In/Sign up
Your email has been sent.
Investment Highlights
- Large Detached Public House
- First Floor Living Accommodation
- Fronting the A6144 in Greater Manchester
- Ground Floor Trading Accommodation
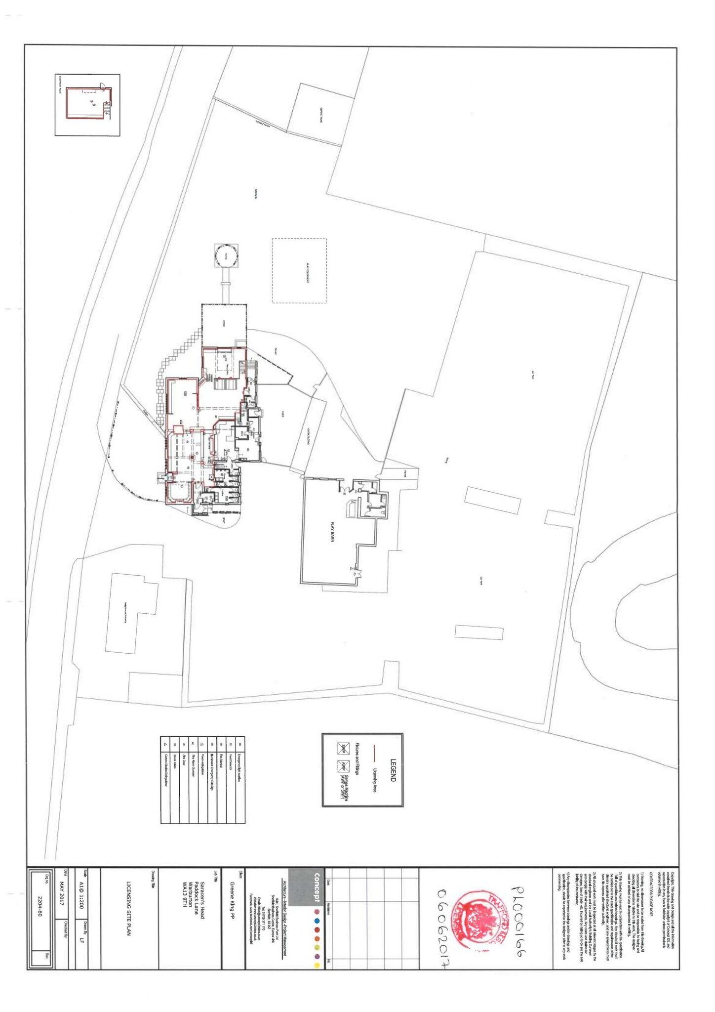
- Play Barn, Beer Garden and Car Parking
- The Site Extends to 3.3 Acres
Executive Summary
The Property comprises a detached two storey public house of brick elevations, set beneath a pitched slate and tile covered roof. To the side and rear there are single storey extensions, beneath a variety of pitched and flats roofs. Externally there are two outbuildings, one providing a children’s play barn, the other storage. To the front there is a beer patio and to the side is a large beer garden with further play areas. The car park to the rear is extensive, with approximately 120 spaces. Overall the site extends to 3.3 acres.
Property Facts Sale Pending
Sale Type
Investment
Property Type
Retail
Tenure
Freehold
Property Subtype
Bar
Property Size
2,500 sq ft
Year Built
1910
Price
£850,000
Price per sq ft
£340
Tenancy
Single
Number of Floors
1
Plot ratio
0.02
Total Plot Size
3.31 ac
Parking
120 Spaces (48 Spaces per 1,000 sq ft Leased)
Amenities
- Courtyard
- Storage Space
- Smoke Detector
1 1
1 of 19
Videos
Matterport 3D Exterior
Matterport 3D Tour
Photos
Street View
Street
Map
1 of 1
Presented by
Saracens Head | Paddock Ln
Already a member? Log In
Hmm, there seems to have been an error sending your message. Please try again.
Thanks! Your message was sent.



