Log In/Sign up
Your email has been sent.
75016 Paris Office Unit Offered at £7,511,503



Some information has been automatically translated.
Description
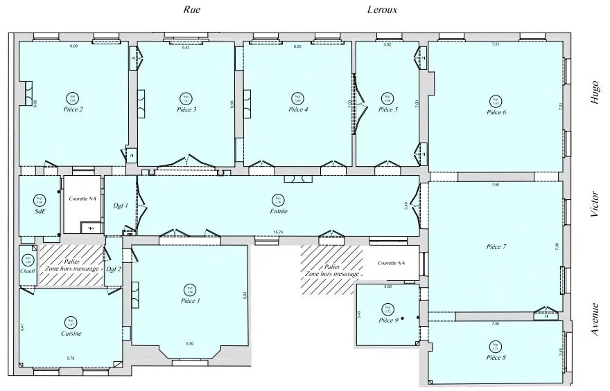
Between Place de l'Étoile and Place Victor Hugo, in a Haussmannian building, Consult'im offers a 435m² office space for sale on the 1st floor. **FEATURES OF THE OFFER** - A gallery entrance - 4 open spaces - 2 offices - 2 meeting rooms - A large equipped kitchen - 4 restrooms - A shower **FINANCIAL TERMS** - Sale price: €8,700,000 net seller - Fees: 5% excluding VAT of the net sale price - Sale of SCI shares possible
Property Facts
| Price | £7,511,503 | Total Property Size | 4,682 sq ft |
| Unit Size | 4,682 sq ft | Property Type | Office (Unit) |
| No. Units | 1 | Sale Type | Owner Occupier |
| Price | £7,511,503 |
| Unit Size | 4,682 sq ft |
| No. Units | 1 |
| Total Property Size | 4,682 sq ft |
| Property Type | Office (Unit) |
| Sale Type | Owner Occupier |
1 Unit Available
| Unit Size | 4,682 sq ft | Unit Use | Office |
| Price | £7,511,503 | Sale Type | Owner Occupier |
| Price Per sq ft | £1,604.34 |
| Unit Size | 4,682 sq ft |
| Price | £7,511,503 |
| Price Per sq ft | £1,604.34 |
| Unit Use | Office |
| Sale Type | Owner Occupier |
1 1
1 of 10
Videos
Matterport 3D Exterior
Matterport 3D Tour
Photos
Street View
Street
Map
1 of 1
Presented by
"75016 Paris"
Already a member? Log In
Hmm, there seems to have been an error sending your message. Please try again.
Thanks! Your message was sent.
