Your email has been sent.
75014 Paris 1,345 sq ft Retail Unit Offered at £831,231



Some information has been automatically translated.
Description
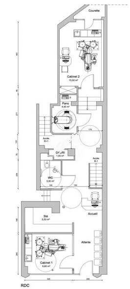
Local commercial - Avenue du Maine - Paris 14ème À proximité immédiate de la Mairie du 14ème, nous vous proposons à la vente les murs d'un local commercial de 125 m² (dont 122 m² Carrez) répartis sur trois niveaux. Situé sur l'avenue du Maine, ce local bénéficie d'un environnement dynamique et recherché. Actuellement occupé par un cabinet dentaire, il dispose d'une configuration optimisée et sécurisée, offrant de nombreuses possibilités d'aménagement. Idéal pour une activité médicale, paramédicale, de bureaux ou toute autre profession libérale. Prix de vente : 964 000 € FAI Pour toute information complémentaire ou pour organiser une visite, contactez-moi au 06 70 67 56 57. DPE en cours. Les informations sur les risques auxquels ce bien est exposé sont disponibles sur le site Géorisques : georisques.gouv.fr. Votre conseiller De ferla immobilier : Alexandre Boscher Agent commercial (Entreprise individuelle)
Property Facts
| Price | £831,231 | Property Type | Retail (Unit) |
| Unit Size | 1,345 sq ft | Sale Type | Owner Occupier |
| No. Units | 1 |
| Price | £831,231 |
| Unit Size | 1,345 sq ft |
| No. Units | 1 |
| Property Type | Retail (Unit) |
| Sale Type | Owner Occupier |
1 Unit Available
| Unit Size | 1,345 sq ft | Unit Use | Retail |
| Price | £831,231 | Sale Type | Owner Occupier |
| Price Per sq ft | £618.02 |
| Unit Size | 1,345 sq ft |
| Price | £831,231 |
| Price Per sq ft | £618.02 |
| Unit Use | Retail |
| Sale Type | Owner Occupier |
Presented by
"75014 Paris"
Hmm, there seems to have been an error sending your message. Please try again.
Thanks! Your message was sent.
