Your email has been sent.
Shuttleworth Ct - Elm Farm Industrial Estate 1,144 sq ft Light Industrial Unit Offered at £150,000 in Bedford MK41 0EN



Investment Highlights
- Prominent Business Location
- High Eaves
- Solid Transport Links
Executive Summary
This property comprises industrial accommodation of masonry construction.
1 Unit Available
Unit 9
| Unit Size | 1,144 sq ft | Unit Use | Light Industrial |
| Price | £150,000 | Sale Type | Investment or Owner Occupier |
| Price Per sq ft | £131.12 | Tenure | Freehold |
| Unit Size | 1,144 sq ft |
| Price | £150,000 |
| Price Per sq ft | £131.12 |
| Unit Use | Light Industrial |
| Sale Type | Investment or Owner Occupier |
| Tenure | Freehold |
Description
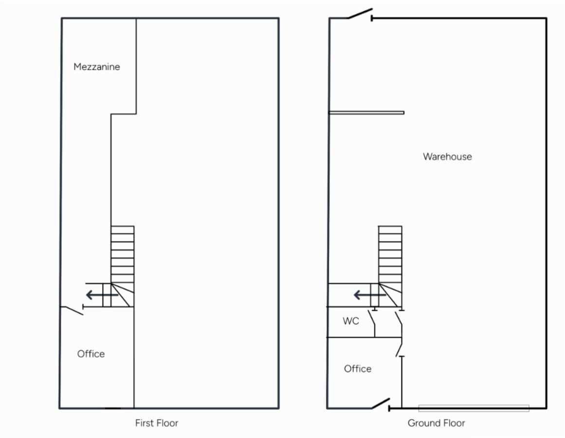
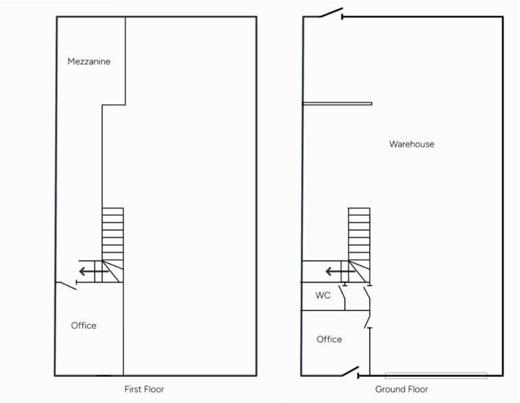
This is a mid-terrace industrial unit of steel portal frame construction available to purchase with vacant possession. There is a personnel door and a roller
shutter loading access to the front elevation. Unit 9, Shuttleworth Court
Internally the unit has a ground and first floor office and an open plan warehouse space with a concrete floor. There is a kitchen area and WC facilities also. The unit has an internal minimum eaves height of 4.5m rising to a maximum eaves height of 5.8m. Externally the unit has parking immediately to the front of the property and a single additional parking space within a bank of spaces to the far left of Shuttleworth Court.
Sale Notes
This property is available to purchase freehold at a guide price of £150,000 exclusive of VAT.
Unit 9 Floor Plan
Unit 9
Unit 9
Unit 9
Unit 9
Property Facts
| Total Property Size | 5,574 sq ft | Floors | 1 |
| Property Type | Industrial (Unit) | Typical Floor Size | 5,574 sq ft |
| Property Subtype | Service | Year Built | 1980 |
| Costar Property Class | B | Total Plot Size | 0.19 ac |
| Total Property Size | 5,574 sq ft |
| Property Type | Industrial (Unit) |
| Property Subtype | Service |
| Costar Property Class | B |
| Floors | 1 |
| Typical Floor Size | 5,574 sq ft |
| Year Built | 1980 |
| Total Plot Size | 0.19 ac |
Amenities
- Security System
- Yard
- Roller Shutters
Utilities
- Water
- Sewer
- Heating
Presented by
Shuttleworth Ct - Elm Farm Industrial Estate
Hmm, there seems to have been an error sending your message. Please try again.
Thanks! Your message was sent.

