Your email has been sent.
Investment Highlights
- Allocated car parking spaces.
- Detached grade A office building
- Close to A45/A46 Tollbar Island interchange
Executive Summary
The property comprises a detached and self-contained two floor office building which forms part of a business park. The building is of modern steel frame construction with external walls clad in cavity brickwork under a pitched tile covered roof. The property is located within Phase 1 of the Courtyard Office Scheme known as Cobalt Centre situated on the south eastern corner of Middlemarch Park with direct access from Siskin Parkway East which forms part of the main circulatory road of the estate. Middlemarch Business Park is situated just off the intersection of the A45 and A46 trunk roads at Toll Bar End, this being on the south eastern side of Coventry and close to Coventry Airport. The access provides excellent communications to the Midlands Motorway Network including the M45, M1, M6, M42 and M69 which are all within easy reach.
1 Unit Available
- Unit
- Unit Size
- Unit Use
- Price
- NOI
| Sale Type | Owner Occupier | Tenure | Freehold |
| Sale Type | Owner Occupier |
| Tenure | Freehold |
established office park on Middlemarch Business Park, known as The Cobalt
Centre. The offices are self-contained and benefit from a high quality fit
out including glazed boardroom. There is a ceiling mounted heating /
cooling system and full access raised floors with floor boxes, power and
data in situ.
| Unit | Unit Size | Unit Use | Price | NOI |
| Unit 6 | 1,635 sq ft | Office | Upon Request | - |
Unit 6
| Unit Size |
| 1,635 sq ft |
| Unit Use |
| Office |
| Price |
| Upon Request |
| NOI |
| - |
Unit 6
| Unit Size | 1,635 sq ft |
| Unit Use | Office |
| Price | Upon Request |
| NOI | - |
| Sale Type | Owner Occupier |
| Tenure | Freehold |
| Description | |
| Modern detached two storey office building, forming part of the<br> established office park on Middlemarch Business Park, known as The Cobalt<br> Centre. The offices are self-contained and benefit from a high quality fit<br> out including glazed boardroom. There is a ceiling mounted heating /<br> cooling system and full access raised floors with floor boxes, power and<br> data in situ.</li></ul> | |
| Sale Notes | |
| Price on application</li></ul> |
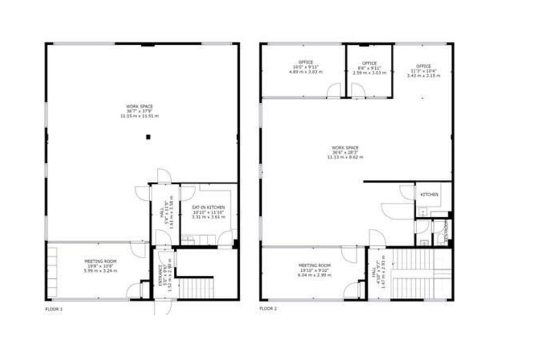
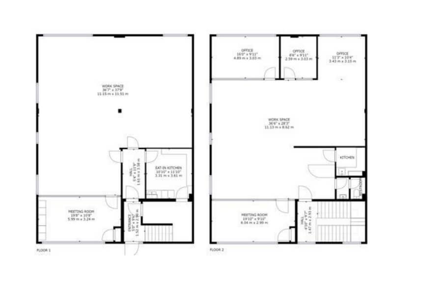
Property Facts
| Total Property Size | 3,178 sq ft | Typical Floor Size | 1,564 sq ft |
| Property Type | Office (Unit) | Year Built | 2008 |
| Costar Property Class | B | Total Plot Size | 0.11 ac |
| Floors | 2 |
| Total Property Size | 3,178 sq ft |
| Property Type | Office (Unit) |
| Costar Property Class | B |
| Floors | 2 |
| Typical Floor Size | 1,564 sq ft |
| Year Built | 2008 |
| Total Plot Size | 0.11 ac |
Amenities
- Courtyard
- Security System
- EPC - C
- Air Conditioning
- Raised Floor System
Presented by
Siskin Pky E - The Cobalt Centre
Hmm, there seems to have been an error sending your message. Please try again.
Thanks! Your message was sent.





